新築戸建 倉敷市沖 大高小学校・南中学校エリア
掲載情報更新日:2025年10月30日 次回更新予定日:2025年11月13日
- 3,600万円
-
- 借入ご希望金額
万円 - 借入期間
年 - 借入金利
% - 月々のお支払い金額
円
- 借入ご希望金額
※ 月々のお支払例は目安の試算となりますので、実際の金額とは異なる場合がございます。詳しくは店舗までお問合わせください。
- 倉敷市沖
-
JR山陽本線『倉敷』 徒歩27分 (約2160m)
新築戸建 倉敷市沖 大高小学校・南中学校エリア一戸建て | 物件情報
オール電化!水回り設計や動線の工夫で、コンパクトながらも生活しやすく暮らしにフィットするお家を実現☆
◎ネットからご来店予約でQuoカード1000円分プレゼント!
☆オール電化住宅で家事・家計を効率的にサポート♪
☆水回り集中設計で動線も無駄なし♪
\*おすすめPOINT*/
・人気の対面キッチンでご家族団らん♪
・ウッドデッキでリビングの可能性を拡張♪
・各階トイレあり♪全居室収納あり♪
★周辺環境★
水島臨海鉄道/球場前 徒歩約15分(1200m)
中洲小学校 徒歩約12分(900m)
西中学校 徒歩約5分(350m)
『全国700店舗展開の情報ネットワーク!』
◆物件見学・オープンハウス随時開催!◆
◇資金計画、住宅ローン、リフォーム、火災保険
◇弊社提携の銀行員や税理士による無料相談
◇店内にキッズコーナー
◇ドリンクサービス充実
お一人でのご来店、お子様を連れてのご来店も可能です
お気軽にお問い合わせください♪
☆―ご予約・お問合せ―☆
ハウスドゥ総社:0866-95-2775
までお問い合わせください!
物件の設備
- 電気
- オール電化
- 上水道
- 下水道
- 給湯
- 食器洗浄乾燥機
- IHクッキングヒータ
- カウンターキッチン
- システムキッチン
- バス
- オートバス
- 追焚機能
- 浴室暖房
- 浴室乾燥機
- トイレ
- トイレ2箇所
- 温水洗浄便座
- タンクレストイレ
- 室内洗濯機置場
- 洗面所独立
- 冷房
- エアコン
- エアコン2基
- 照明器具
- 省エネ給湯器
- ディンプルキー
- ダブルロックキー
- モニタ付インターホン
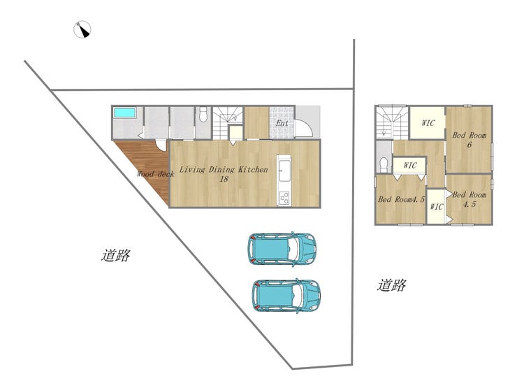
- LDK18畳以上
- 2面採光
- 複層ガラス
- 全居室複層ガラス
- フローリング
- 全室フローリング
- 24時間換気システム
- ウォークインクローゼット
- 全居室収納
- シューズインクローク
物件の特徴
- 高断熱住宅
- ノンホルムアルデヒド
- 地盤調査済
- 耐震構造
- 前道6m以上
- スーパーが近い
- 市街地が近い
- 2階建
- 外壁サイディング
- 建築確認完了検査済証
- 新築
- 増改築設計図書
物件詳細情報
| 価格 | 3,600万円 | 間取り | 3LDK |
|---|---|---|---|
| 物件種別 | 新築一戸建て | ||
| 所在地 | 岡山県倉敷市沖 | ||
| アクセス |
|
||
| 建物面積 | 88.59㎡ | 駐車場 | あり 普通:2台 |
| 築年月 | 2024年(令和6年)11月築 | 建築確認 | 第HP04-3918548号 |
| 建物構造 | 木造 2階建 | 工法 | |
| 主要採光 | バルコニー | ||
| 保証・評価 | |||
| 土地面積 | 147.61㎡(44.65坪) | 接道 | 南東側(公道)幅 約6.6m 間口 約14.50m 南西側(公道)幅 約4.9m 間口 約17.60m |
| 私道 | セットバック | ||
| 地目 | 宅地 | 地勢 | |
| 権利 | 所有権 |
||
| 都市計画 | 市街化区域 |
用途地域 | 準工業 |
| 建ぺい/容積率 | 60% / 200% | 土地国土法 | |
| 許可番号 | 建築基準法 | ||
| 法令制限 | |||
| 小学区 | 大高小学校 徒歩20分 (約1600m) | 中学区 | 南中学校 徒歩28分 (約2200m) |
| 現況 | 空 | 引渡 | 相談 |
| その他費用 | |||
| 備考 | ・水道負担金:550,000円(税込)別途必要 安江住宅遊園まで徒歩4分(250m)、ローソン 倉敷沖店まで徒歩5分(350m)、水島臨海鉄道球場前駅まで徒歩8分(550m)、マルナカ 老松店まで徒歩8分(550m)、中洲保育園徒歩10分(700m)、倉敷成人病センターまで車で7分(2000m)、イオンモール倉敷まで車で7分(2300m)、三井アウトレットパーク 倉敷まで車で8分(3000m)、倉敷中央病院まで車で12分(3300m) |
||
| 物件番号 | 4229502 | 取引態様 | 媒介 |
取扱店舗情報
| 電話番号 | 0866-95-2775 |
|---|---|
| 所在地 | 〒719-1131 岡山県総社市中央1丁目21-101 |
| 営業時間 | 10:00~18:00 |
| 定休日 | 火曜日、水曜日、年末年始 |
| 宅建免許番号 | 岡山県知事(2)第5846号 |
| アクセス | 店舗への地図はこちら |

来店ご予約
岡山県倉敷市で価格が似ている物件はこちら
- 岡山県
マイページ物件数 - 4,362件
岡山県新築一戸建て新着物件
- お近くの店舗を探す
-
おすすめ物件
-
-

-
- 新築一戸建て
- 2,950万円
-
岡山市北区今保
-
JR山陽本線庭瀬
-
-
-

-
- 新築一戸建て
- 2,880万円
-
岡山市南区福富中2丁目
-
JR宇野線備前西市
-
-
-

-
- 新築一戸建て
- 2,880万円
-
岡山市中区山崎
-
JR赤穂線大多羅
-
-
-

-
- 新築一戸建て
- 2,780万円
-
岡山市中区湊
-
岡山電軌東山本線東山岡電ミュージアム
-
-
-

-
- 新築一戸建て
- 2,880万円
-
岡山市中区湊
-
岡山電軌東山本線東山岡電ミュージアム
-
-
-

-
- 新築一戸建て
- 3,380万円
-
岡山市北区撫川
-
JR山陽本線庭瀬
-
-
-

-
- 新築一戸建て
- 4,980万円
-
総社市中央1丁目
-
JR伯備線総社
-
-
-

-
- 新築一戸建て
- 2,598万円
-
津山市高野本郷
-
JR因美線高野
-
-
-

-
- 新築一戸建て
- 3,080万円
-
岡山市北区庭瀬
-
JR山陽本線庭瀬
-






















担当エージェント:吉長 紘輝
★初めてお問い合わせいただくお客様へ
1.物件について詳細をご説明します。(オンライン可)
2.お客様のご希望をどうぞお聞かせください♪
3.今後の流れを具体的にご案内
所要時間:約30分~1時間
★物件を見に行こう
所要時間: 1時間~1時間半(移動時間を除く)
気になる物件をじっくりとご確認いただけます。
現地で実際に確かめてください♪
周辺環境など実際の生活を想定したご案内をします。
+‥‥▼お電話でのご予約、ご質問・ご要望はこちらまで▼‥‥+
TEL:0866-95-2775
ハウスドゥ 総社
◆ご売却◆
売却相談、査定も承っております。
相続やお住み替え、リースバック
不用品の処分や片付けも対応!
ご売却までの流れなどお気軽にご相談ください。