新築戸建 岡山市北区一宮 中山小学校・中山中学校エリア
NEW 10.23掲載情報更新日:2025年10月23日 次回更新予定日:2025年11月06日
- 3,548万円
-
- 借入ご希望金額
万円 - 借入期間
年 - 借入金利
% - 月々のお支払い金額
円
- 借入ご希望金額
※ 月々のお支払例は目安の試算となりますので、実際の金額とは異なる場合がございます。詳しくは店舗までお問合わせください。
- 岡山市北区辛川市場
-
JR吉備線『備前一宮』 徒歩5分 (約400m)
新築戸建 岡山市北区一宮 中山小学校・中山中学校エリア一戸建て | 物件情報
物件の設備
- 電気
- 上水道
- 下水道
- 給湯
- 食器洗浄乾燥機
- カウンターキッチン
- システムキッチン
- バス
- バス1坪以上
- トイレ
- トイレ2箇所
- モニタ付インターホン
- LDK20畳以上
- 2面採光
- フローリング
- クローゼット
- ウォークインクローゼット2箇所
- 床下収納
- シューズボックス
物件の特徴
- 駅まで平坦
- 前道6m以上
- 南側道路面す
- 緑豊かな住宅地
- スーパーが近い
- 閑静な住宅街
- 市街地が近い
- 山が見える
- 2階建
- 平坦地
- フラット35Sに対応
物件詳細情報
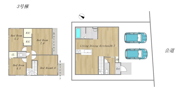
| 価格 | 3,548万円 | 間取り | 4LDK |
|---|---|---|---|
| 物件種別 | 新築一戸建て | ||
| 所在地 | 岡山県岡山市北区辛川市場 3号棟 | ||
| アクセス |
|
||
| 建物面積 | 103.09㎡ | 駐車場 | あり 普通:2台 |
| 築年月 | 2026年(令和8年)03月予定 | 建築確認 | 2024岡セ確建第002656号 |
| 建物構造 | 木造 2階建 | 工法 | |
| 主要採光 | バルコニー | ||
| 保証・評価 | |||
| 土地面積 | 144.7㎡(43.77坪) | 接道 | 南側(公道)幅 約9.9m 間口 約8.60m |
| 私道 | セットバック | ||
| 地目 | 宅地 | 地勢 | 平坦 |
| 権利 | 所有権 |
||
| 都市計画 | 市街化区域 |
用途地域 | 1種中高(一部2種住居 含む) |
| 建ぺい/容積率 | 60%(一部60% 含む) / 200%(一部200% 含む) | 土地国土法 | |
| 許可番号 | 建築基準法 | ||
| 法令制限 | 景観法・法22条区域 | ||
| 小学区 | 中山小学校 徒歩9分 (約700m) | 中学区 | 中山中学校 徒歩4分 (約300m) |
| 現況 | 空 | 引渡 | 相談 |
| その他費用 | |||
| 備考 | ・フラット35ご利用の場合、別途申請手数料が必要となります。 ・TVアンテナ、網戸、照明、カーテンレールはオプションとなります。 ・図面と現状が異なる場合は現状を優先とさせていただきます。 ・司法書士、土地家屋調査士は売主指定となります。 岡山市北区役所 一宮地域センターまで徒歩1分(18m) 熊代眼科医院まで徒歩3分(180m) もりかわ歯科クリニックまで徒歩7分(550m) ザグザグ 一宮店まで徒歩9分(600m) 岡山辛川郵便局まで徒歩10分(700m) セブン-イレブン 岡山西辛川店まで徒歩11分(750m) |
||
| 物件番号 | 4460510 | 取引態様 | 媒介 |
取扱店舗情報
| 電話番号 | 0866-95-2775 |
|---|---|
| 所在地 | 〒719-1131 岡山県総社市中央1丁目21-101 |
| 営業時間 | 10:00~18:00 |
| 定休日 | 火曜日、水曜日、年末年始 |
| 宅建免許番号 | 岡山県知事(2)第5846号 |
| アクセス | 店舗への地図はこちら |

来店ご予約
岡山県岡山市北区で価格が似ている物件はこちら
- 岡山県
マイページ物件数 - 4,343件
最近見た物件
-
-

-
- 中古マンション
- 1,990万円
-
豊中市東豊中町4丁目
-
大阪モノレール少路
-
-
-

-
- 中古マンション
- 1,980万円
-
大阪市城東区今福西2丁目
-
大阪市長堀鶴見緑地線蒲生四丁目
-
-
-

-
- 新築一戸建て
- 2,699万円
-
岡山市東区広谷
-
JR赤穂線大多羅
-
岡山県新築一戸建て新着物件
- お近くの店舗を探す
-
おすすめ物件
-
-

-
- 新築一戸建て
- 2,950万円
-
岡山市北区今保
-
JR山陽本線庭瀬
-
-
-

-
- 新築一戸建て
- 4,980万円
-
総社市中央1丁目
-
JR伯備線総社
-
-
-

-
- 新築一戸建て
- 3,380万円
-
岡山市北区撫川
-
JR山陽本線庭瀬
-
-
-

-
- 新築一戸建て
- 2,598万円
-
津山市高野本郷
-
JR因美線高野
-
-
-

-
- 新築一戸建て
- 3,080万円
-
岡山市北区庭瀬
-
JR山陽本線庭瀬
-
-
-

-
- 新築一戸建て
- 2,880万円
-
岡山市南区福富中2丁目
-
JR宇野線備前西市
-
-
-

-
- 新築一戸建て
- 2,780万円
-
岡山市中区湊
-
岡山電軌東山本線東山岡電ミュージアム
-
-
-

-
- 新築一戸建て
- 2,880万円
-
岡山市中区山崎
-
JR赤穂線大多羅
-
-
-

-
- 新築一戸建て
- 2,880万円
-
岡山市中区湊
-
岡山電軌東山本線東山岡電ミュージアム
-
-
-

-
- 新築一戸建て
- 2,880万円
-
岡山市南区浜野4丁目
-
JR宇野線備前西市
-





