NEW♪ クレイドルガーデン周南市大神第3 全4棟
掲載情報更新日:2026年02月15日 次回更新予定日:2026年03月01日
- 2,580万円
-
- 借入ご希望金額
万円 - 借入期間
年 - 借入金利
% - 月々のお支払い金額
円
- 借入ご希望金額
※ 月々のお支払例は目安の試算となりますので、実際の金額とは異なる場合がございます。詳しくは店舗までお問合わせください。
- 周南市大神2丁目
-
JR山陽本線『新南陽』 車6分(約1.9km)
NEW♪ クレイドルガーデン周南市大神第3 全4棟一戸建て | 物件情報
2026年2月完成予定!人気エリアに新築建売がでました♪
◇駐車2台可
◆インナーバルコニー付き!外からの視線を気にせず、ゆったりと寛げるプライベート空間です。
◇各部屋収納完備
◆料理をしながら家族と会話を楽しめる対面キッチン
◇LDKは広々18帖!家具をゆったり配置しても余裕があり、開放感あふれる空間です。
◆安心と快適を約束!5分野7項目で最高等級評価のプレミアムな住まいがあなたのものに!
物件の設備
- 電気
- 公営水道
- 下水道
- 公共下水
- 都市ガス
- 給湯
- 浄水器
- コンロ一口
- コンロ二口
- コンロ三口
- カウンターキッチン
- システムキッチン
- バス
- オートバス
- 浴室暖房
- 浴室乾燥機
- 浴室に窓
- トイレ
- トイレ2箇所
- 温水洗浄便座
- 室内洗濯機置場
- 洗髪洗面化粧台
- 洗面所独立
- 人感照明センサー
- モニタ付インターホン
- 防犯カメラ
- LDK15畳以上
- LDK18畳以上
- 複層ガラス
- フローリング
- クローゼット
- クローゼット2箇所
- クローゼット3箇所
- 床下収納
- 全居室収納
- シューズボックス
- バルコニー
- 南面バルコニー
- 庭
物件の特徴
- 制震構造
- スーパーが近い
- 閑静な住宅街
- 通風良好
- 陽当り良好
- 2階建
物件詳細情報
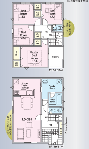
| 価格 | 2,580万円 | 間取り | 4LDK |
|---|---|---|---|
| 物件種別 | 新築一戸建て | ||
| 所在地 | 山口県周南市大神2丁目 ③号棟 | ||
| アクセス |
|
||
| 建物面積 | 100.44㎡ | 駐車場 | あり 普通:2台 |
| 築年月 | 2026年(令和8年)02月予定 | 建築確認 | 第R07SHC110145号 |
| 建物構造 | 木造 2階建 | 工法 | |
| 主要採光 | 南向 | バルコニー | 南向4.86㎡ |
| 保証・評価 | |||
| 分譲情報 | |||
| 土地面積 | 142.01㎡(42.95坪) | 接道 | |
| 私道 | セットバック | ||
| 地目 | 宅地 | 地勢 | |
| 権利 | 所有権 |
||
| 都市計画 | 市街化区域 |
用途地域 | 1種中高 |
| 建ぺい/容積率 | 60% / 200% | 土地国土法 | |
| 許可番号 | 建築基準法 | ||
| 法令制限 | 法22条区域 | ||
| 小学区 | 富田西小学校 徒歩20分 (約1580m) | 中学区 | 富田中学校 徒歩19分 (約1450m) |
| 現況 | 建築中 | 引渡 | 期日指定:2026年02月以降 |
| その他費用 | |||
| 周辺環境 | 富田西小学校 徒歩20分 (約1580m) 富田中学校 徒歩19分 (約1450m) クスリ岩崎チェーン 永源山公園店 徒歩4分 (約310m) ローソン 新南陽土井一丁目店 徒歩13分 (約990m) フジ 新南陽店 徒歩19分 (約1520m) |
||
| 備考 | ※敷地面積はセットバック部分を含みます。 ※敷地内に電柱及び支線が入る場合があります。 ※網戸・面格子・シャッター・フェンス・カーテンレールは別途見積となります ※図面と現況が異なる場合は現況優先となります |
||
| 物件番号 | 4480567 | 取引態様 | 媒介 |
取扱店舗情報
ハウスドゥ 周南城ケ丘 株式会社田村ビルズ 店舗詳細ページへ
| 電話番号 | 0834-34-1107 |
|---|---|
| 所在地 | 〒745-0807 山口県周南市城ケ丘1丁目2-32 |
| 営業時間 | 9:30~18:00 |
| 定休日 | 水曜日、第2・第3・第4・第5木曜日 |
| 宅建免許番号 | 国土交通大臣(2)第9501号 |
| アクセス | 店舗への地図はこちら |

来店ご予約
山口県周南市で価格が似ている物件はこちら
- 山口県
マイページ物件数 - 3,210件
最近見た物件
山口県新築一戸建て新着物件
-
-

-
- 新築一戸建て
- 2,388万円
-
山口市吉敷上東1丁目
-
JR山口線湯田温泉駅
-
-
-

-
- 新築一戸建て
- 2,188万円
-
山口市吉敷上東1丁目
-
JR山口線湯田温泉駅
-
-
-

-
- 新築一戸建て
- 2,480万円
-
光市中央4丁目
-
JR山陽本線光駅
-
-
-

-
- 新築一戸建て
- 3,295万円
-
周南市上遠石町
-
JR山陽本線徳山駅
-
-
-

-
- 新築一戸建て
- 2,480万円
-
光市中央4丁目
-
JR山陽本線光駅
-
-
-

-
- 新築一戸建て
- 2,480万円
-
光市中央4丁目
-
JR山陽本線光駅
-
-
-

-
- 新築一戸建て
- 4,280万円
-
下松市せせらぎ町1丁目
-
JR山陽本線下松駅
-
- お近くの店舗を探す
-
おすすめ物件
-
-

-
- 新築一戸建て
- 3,498万円
-
山口市円政寺町
-
JR山口線上山口
-
-
-

-
- 新築一戸建て
- 3,198万円
-
山口市矢原
-
JR山口線矢原
-
-
-

-
- 新築一戸建て
- 2,798万円
-
宇部市大小路2丁目
-
JR宇部線東新川
-
-
-

-
- 新築一戸建て
- 2,380万円
-
防府市開出
-
JR山陽本線防府
-
-
-

-
- 新築一戸建て
- 3,298万円
-
山口市円政寺町
-
JR山口線上山口
-
-
-

-
- 新築一戸建て
- 2,798万円
-
防府市大字牟礼
-
JR山陽本線防府
-
-
-

-
- 新築一戸建て
- 3,098万円
-
宇部市草江3丁目
-
JR宇部線草江
-
-
-

-
- 新築一戸建て
- 3,298万円
-
下関市川中本町
-
JR山陰本線綾羅木
-
-
-

-
- 新築一戸建て
- 1,988万円
-
山陽小野田市赤崎2丁目
-
JR小野田線小野田港
-
-
-

-
- 新築一戸建て
- 2,998万円
-
山口市吉敷中東1丁目
-
JR山口線湯田温泉
-



















担当エージェント:松尾 翔
人感センサー付玄関灯、モニター付インターホン、防犯カメラなど、あると嬉しい設備も!
いつでも現地をご案内できます!建築中のため、参考物件をご案内致します。