福山市神辺町字下御領の新築戸建
掲載情報更新日:2026年05月11日 次回更新予定日:2026年05月25日
- 2,280万円
-
- 借入ご希望金額
万円 - 借入期間
年 - 借入金利
% - 月々のお支払い金額
円
- 借入ご希望金額
※ 月々のお支払例は目安の試算となりますので、実際の金額とは異なる場合がございます。詳しくは店舗までお問合わせください。
- 福山市神辺町字下御領
-
井原鉄道『御領』 徒歩7分 (約560m)
福山市神辺町字下御領一戸建て | 物件情報
〇駐車場3台可能、ファミリーに嬉しい収納充実の3LDK♪
物件の設備
- 電気
- オール電化
- 上水道
- 公営水道
- 浄化槽
- 個別浄化槽
- 浄水器
- カウンターキッチン
- システムキッチン
- トイレ2箇所
- 温水洗浄便座
- 室内洗濯機置場
- 洗髪洗面化粧台
- 省エネ給湯器
- モニタ付インターホン
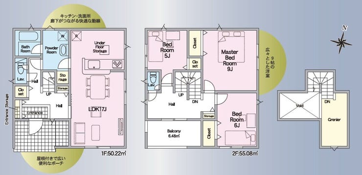
- LDK15畳以上
- クローゼット3箇所
- 全居室収納
- インナーバルコニー
物件の特徴
- 南向
- セットバック済
- 南側道路面す
- 2階建
- フラット35Sに対応
物件詳細情報
| 価格 | 2,280万円 | 間取り | 3LDK |
|---|---|---|---|
| 物件種別 | 新築一戸建て | ||
| 所在地 | 広島県福山市神辺町字下御領705-13付近(地番705-3) 3号棟 | ||
| アクセス |
|
||
| 建物面積 | 公105.3㎡ | 駐車場 | あり 普通:3台 |
| 築年月 | 2026年(令和8年)02月予定 | 建築確認 | 第R07SHC117537号 |
| 建物構造 | 木造 2階建 | 工法 | |
| 主要採光 | 南向 | バルコニー | |
| 保証・評価 | |||
| 土地面積 | 公257.63㎡(77.93坪) | 接道 | 南側(公道)幅 約3.2m 間口 約11.10m |
| 私道 | セットバック | 済 | |
| 地目 | 宅地 | 地勢 | 平坦 |
| 権利 | 所有権 |
||
| 都市計画 | 市街化区域 |
用途地域 | 1種住居 |
| 建ぺい/容積率 | 60% / 160% | 土地国土法 | |
| 許可番号 | 建築基準法 | ||
| 法令制限 | |||
| 小学区 | 御野小学校 徒歩9分 (約650m) | 中学区 | 神辺東中学校 徒歩23分 (約1800m) |
| 現況 | 完工済 | 引渡 | 相談 |
| その他費用 | |||
| 備考 | 〇駐車場3台可能、ファミリーに嬉しい収納充実の3LDK♪ | ||
| 物件番号 | 4503179 | 取引態様 | 媒介 |
取扱店舗情報
ハウスドゥ 福山東インター南 株式会社HOME’S 店舗詳細ページへ
| 電話番号 | 084-959-3566 |
|---|---|
| 所在地 | 〒721-0961 広島県福山市明神町2丁目8-2 |
| 営業時間 | 10:30~17:30 |
| 定休日 | 水曜日、GW、お盆休み、年末年始 |
| 宅建免許番号 | 広島県知事(4)第9856号 |
| アクセス | 店舗への地図はこちら |

来店ご予約
広島県福山市で価格が似ている物件はこちら
- 広島県
マイページ物件数 - 4,617件
広島県新築一戸建て新着物件
-
-

-
- 新築一戸建て
- 2,890万円
-
東広島市高屋町高屋東
-
JR山陽本線白市駅
-
-
-

-
- 新築一戸建て
- 3,190万円
-
東広島市高屋町高屋東
-
JR山陽本線白市駅
-
-
-

-
- 新築一戸建て
- 3,546万円
-
福山市北吉津町4丁目
-
JR山陽本線福山駅
-
-
-

-
- 新築一戸建て
- 2,380万円
-
安芸郡熊野町城之堀1丁目
-
熊野萩原車庫前バス停
-
-
-

-
- 新築一戸建て
- 2,580万円
-
安芸郡熊野町城之堀1丁目
-
熊野萩原車庫前バス停
-
-
-

-
- 新築一戸建て
- 2,580万円
-
安芸郡熊野町城之堀1丁目
-
熊野萩原車庫前バス停
-
-
-

-
- 新築一戸建て
- 2,890万円
-
福山市水呑町
-
JR山陽本線福山駅
-
- お近くの店舗を探す
-
おすすめ物件
-
-

-
- 新築一戸建て
- 3,280万円
-
福山市長者町
-
JR福塩線備後本庄
-
-
-

-
- 新築一戸建て
- 2,890万円
-
福山市山手町3丁目
-
JR福塩線備後本庄
-
-
-

-
- 新築一戸建て
- 2,990万円
-
福山市新涯町4丁目
-
JR山陽本線福山
-
-
-

-
- 新築一戸建て
- 3,090万円
-
福山市新涯町4丁目
-
JR山陽本線福山
-
-
-

-
- 新築一戸建て
- 3,080万円
-
福山市本庄町中3丁目
-
JR福塩線備後本庄
-
-
-

-
- 新築一戸建て
- 2,380万円
-
福山市神辺町字下御領
-
井原鉄道御領
-
-
-

-
- 新築一戸建て
- 3,380万円
-
福山市草戸町4丁目
-
JR山陽本線福山
-
-
-

-
- 新築一戸建て
- 3,290万円
-
福山市新涯町4丁目
-
JR山陽本線福山
-
-
-

-
- 新築一戸建て
- 3,850万円
-
福山市水呑町三新田1丁目
-
JR山陽本線福山
-
























