名古屋市港区惟信町4丁目の新築戸建
掲載情報更新日:2026年04月20日 次回更新予定日:2026年05月04日
- 3,090万円
-
- 借入ご希望金額
万円 - 借入期間
年 - 借入金利
% - 月々のお支払い金額
円
- 借入ご希望金額
※ 月々のお支払例は目安の試算となりますので、実際の金額とは異なる場合がございます。詳しくは店舗までお問合わせください。
- 名古屋市港区惟信町4丁目
-
名古屋臨海高速鉄道『荒子川公園』 徒歩22分 (約1730m)
名古屋臨海高速鉄道『港北』 徒歩34分 (約2680m)
名古屋臨海高速鉄道『稲永』 徒歩35分 (約2790m)
名古屋市港区惟信町4丁目一戸建て | 物件情報
【広々約20畳のLDK×パントリー付♪】家事ラク動線の住まいです ◎1号棟◎
━━━━━━━━━━━━━━━━━━
◆ 住まい探しはお任せください ◆
━━━━━━━━━━━━━━━━━━
豊富な物件情報から、お客様のご希望に合った住まいをご提案します。
お客様目線を大切に、住宅ローンも含めて丁寧にサポートいたします。
豊富な物件情報から、お客様のご希望に合った住まいをご提案します。
お客様目線を大切に、住宅ローンも含めて丁寧にサポートいたします。
ハウスドゥ荒子川公園
◆広々LDKでゆとりある暮らし
◆パントリー付きで食品や日用品もすっきり収納
◆まとめ買いにも便利で家計管理もしやすい
◆家事動線が良く毎日の負担を軽減
◆キッチンまわりが片付きやすく生活感を抑えられる
◆駐車2台可能でご夫婦それぞれの利用にも対応
◆お子様の送迎や日々のお買い物にも便利
◆来客時にも安心の駐車スペース確保
◆忙しいご家庭に嬉しい使い勝手の良い間取り
◆快適な暮らしをサポートするおすすめの一邸
◆神宮寺小学校・宝神中学校学区
― 長期優良住宅対象物件(G-STAGEシリーズ) ―
物件の設備
- 電気
- 上水道
- 下水道
- 都市ガス
- 浄水器
- 食器乾燥機
- 食器洗浄乾燥機
- コンロ三口
- カウンターキッチン
- システムキッチン
- オートバス
- 追焚機能
- 浴室暖房
- 浴室乾燥機
- 浴室に窓
- トイレ2箇所
- 温水洗浄便座
- 洗髪洗面化粧台
- ダウンライト
- 省エネ給湯器
- ディンプルキー
- モニタ付インターホン
- 火災警報器/報知機
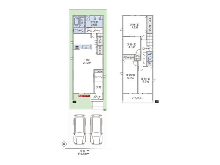
- LDK20畳以上
- 複層ガラス
- 全室フローリング
- シャッター雨戸
- 電動シャッター
- クローゼット
- 床下収納
- 全居室収納
- 庭
物件の特徴
- 南向
- 南側道路面す
- 2階建
物件詳細情報
| 価格 | 3,090万円 | 間取り | 4LDK |
|---|---|---|---|
| 物件種別 | 新築一戸建て | ||
| 所在地 | 愛知県名古屋市港区惟信町4丁目 | ||
| アクセス |
|
||
| 建物面積 | 公105.3㎡ | 駐車場 | あり 普通:2台 |
| 築年月 | 2026年(令和8年)06月予定 | 建築確認 | 第KS125-0420-59435号 |
| 建物構造 | 木造 2階建 | 工法 | |
| 主要採光 | 南向 | バルコニー | |
| 保証・評価 | |||
| 土地面積 | 公119.06㎡(36.01坪) | 接道 | 南側(公道)幅 約5.5m |
| 私道 | セットバック | ||
| 地目 | 宅地 | 地勢 | |
| 権利 | 所有権 |
||
| 都市計画 | 用途地域 | 1種住居 | |
| 建ぺい/容積率 | 60% / 200% | 土地国土法 | |
| 許可番号 | 建築基準法 | ||
| 法令制限 | |||
| 小学区 | 神宮寺小学校 徒歩13分 (約1010m) | 中学区 | 宝神中学校 徒歩23分 (約1830m) |
| 現況 | 建築中 | 引渡 | 未記入 |
| その他費用 | |||
| 周辺環境 | 神宮寺小学校 徒歩13分 (約1010m) 宝神中学校 徒歩23分 (約1830m) いしん保育園 徒歩6分 (約470m) ポートウォークみなと 徒歩14分 (約1060m) ヤマナカ みなと当知店 徒歩15分 (約1180m) スギ薬局 油屋店 徒歩12分 (約950m) あおなみ線 荒子川公園駅 徒歩22分 (約1730m) 早瀬内科クリニック 徒歩4分 (約320m) 十六銀行 港支店 徒歩9分 (約690m) 神宮寺公園 徒歩16分 (約1220m) |
||
| 備考 | |||
| 物件番号 | 4513095 | 取引態様 | 媒介 |
取扱店舗情報
ハウスドゥ 荒子川公園 株式会社アーズコミュニケーションズ 店舗詳細ページへ
| 電話番号 | 052-655-6255 |
|---|---|
| 所在地 | 〒455-0815 愛知県名古屋市港区油屋町3丁目28番地3 エスポアクインズコート1階 |
| 営業時間 | 10:00~18:00 |
| 定休日 | 水曜日、年末年始 |
| 宅建免許番号 | 愛知県知事(1)第26233号 |
| アクセス | 店舗への地図はこちら |

来店ご予約
愛知県名古屋市港区で価格が似ている物件はこちら
- 愛知県
マイページ物件数 - 32,372件
最近見た物件
-
-

-
- 中古一戸建て
- 2,799万円
-
仙台市青葉区南吉成2丁目
-
JR仙山線国見
-
-
-

-
- 中古一戸建て
- 2,980万円
-
高松市藤塚町3丁目
-
JR高徳線栗林
-
-
-

-
- 中古一戸建て
- 6,000万円
-
松江市西津田5丁目
-
JR山陰本線松江
-
愛知県新築一戸建て新着物件
-
-

-
- 新築一戸建て
- 2,980万円
-
一宮市木曽川町玉ノ井字寺東
-
名鉄尾西線玉ノ井駅
-
-
-

-
- 新築一戸建て
- 2,980万円
-
一宮市木曽川町玉ノ井字寺東
-
名鉄尾西線玉ノ井駅
-
-
-

-
- 新築一戸建て
- 2,580万円
-
海部郡蟹江町西之森9丁目
-
JR関西本線永和駅
-
-
-

-
- 新築一戸建て
- 3,190万円
-
岡崎市上地町字丸根
-
JR東海道本線岡崎駅
-
-
-

-
- 新築一戸建て
- 4,999万円
-
名古屋市中村区角割町4丁目
-
近鉄名古屋線烏森駅
-
-
-

-
- 新築一戸建て
- 4,290万円
-
尾張旭市東本地ケ原町2丁目
-
名鉄瀬戸線尾張旭駅
-
-
-

-
- 新築一戸建て
- 3,880万円
-
豊田市新町3丁目
-
愛知環状鉄道新豊田駅
-
- お近くの店舗を探す
-
おすすめ物件
-
-

-
- 新築一戸建て
- 4,999万円
-
名古屋市緑区浦里5丁目
-
名鉄名古屋本線本星崎
-
-
-

-
- 新築一戸建て
- 6,080万円
-
豊田市寿町4丁目
-
名鉄三河線土橋
-
-
-

-
- 新築一戸建て
- 4,380万円
-
豊田市高岡本町南
-
名鉄三河線若林
-
-
-

-
- 新築一戸建て
- 3,999万円
-
名古屋市中川区供米田3丁目
-
近鉄名古屋線戸田
-
-
-

-
- 新築一戸建て
- 3,790万円
-
名古屋市千種区東千種台
-
名古屋市名城線茶屋ヶ坂
-
-
-

-
- 新築一戸建て
- 2,990万円
-
知多郡東浦町大字石浜字青木
-
JR武豊線石浜
-
-
-

-
- 新築一戸建て
- 2,980万円
-
一宮市三条字山
-
名鉄尾西線二子
-
-
-

-
- 新築一戸建て
- 5,499万円
-
名古屋市瑞穂区本願寺町1丁目
-
名古屋市桜通線瑞穂区役所
-
-
-

-
- 新築一戸建て
- 3,850万円
-
名古屋市瑞穂区惣作町1丁目
-
名鉄名古屋本線堀田
-
-
-

-
- 新築一戸建て
- 3,830万円
-
一宮市木曽川町黒田字北宿五の切
-
名鉄名古屋本線黒田
-






担当エージェント:後藤 夕子
ゆとりある暮らしの主役となるのは、約20帖の広々としたLDK。開放的な空間設計により、家族全員がのびのびと過ごせるリビングを実現しました。キッチンまわりには便利なパントリーを設け、買い置き品もスマートに管理。出し入れしやすく、忙しい毎日の家事効率をぐんと高めてくれます。
また、駐車スペースは出し入れしやすい並列2台分を確保。日々の送り迎えやお買い物もスムーズです。使い勝手の良い間取りが、共働きや子育て世帯の多様なライフスタイルを優しくサポートします。
長期優良住宅対象物件(G-STAGEシリーズ)として、将来の資産価値や安心感も備えた一邸。心地よい光と風が抜ける住まいを、ぜひ現地でご体感ください。