倉敷市茶屋町の新築戸建
NEW 12.14掲載情報更新日:2025年12月14日 次回更新予定日:2025年12月28日
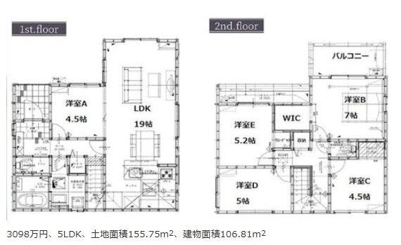
- 3,098万円
-
- 借入ご希望金額
万円 - 借入期間
年 - 借入金利
% - 月々のお支払い金額
円
- 借入ご希望金額
※ 月々のお支払例は目安の試算となりますので、実際の金額とは異なる場合がございます。詳しくは店舗までお問合わせください。
- 倉敷市茶屋町
-
JR本四備讃線『茶屋町』 徒歩10分 (約800m)
下電バス『磯崎民亀記念館前』 徒歩8分 (約640m)
倉敷市茶屋町一戸建て | 物件情報
●茶屋町駅まで徒歩10分
●スーパー、ドラッグストア、公園まで徒歩10分圏内
●駐車スペース最大並列3台可能(車種による)
●5LDK+WIC
※建築基準法第22条区域・景観法・都市再生特別措置法
物件の設備
- 電気
- 上水道
- 公営水道
- 下水道
- 公共下水
- 個別プロパン
- 食器洗浄乾燥機
- システムキッチン
- オートバス
- バス1坪以上
- 浴室乾燥機
- トイレ2箇所
- 温水洗浄便座
- 洗髪洗面化粧台
- 省エネ給湯器
- モニタ付インターホン
- LDK18畳以上
- ウォークインクローゼット
- 床下収納
物件の特徴
- 駅まで平坦
- スーパーが近い
- 2階建
- 平坦地
- 整形地
- 即入居可
物件詳細情報
| 価格 | 3,098万円 | 間取り | 5LDK |
|---|---|---|---|
| 物件種別 | 新築一戸建て | ||
| 所在地 | 岡山県倉敷市茶屋町 | ||
| アクセス |
|
||
| 建物面積 | 公106.81㎡ | 駐車場 | あり |
| 築年月 | 2025年(令和7年)11月築 | 建築確認 | 2025岡セ第000332号 |
| 建物構造 | 木造 2階建 | 工法 | |
| 主要採光 | バルコニー | ||
| 保証・評価 | |||
| 土地面積 | 公155.75㎡(47.11坪) | 接道 | 北側(公道)幅 約4.1m |
| 私道 | セットバック | ||
| 地目 | 宅地 | 地勢 | |
| 権利 | 所有権 |
||
| 都市計画 | 用途地域 | 1種低層 | |
| 建ぺい/容積率 | 50% / 100% | 土地国土法 | |
| 許可番号 | 建築基準法 | ||
| 法令制限 | |||
| 小学区 | 茶屋町小学校 徒歩18分 (約1400m) | 中学区 | 東陽中学校 徒歩15分 (約1200m) |
| 現況 | 完工済 | 引渡 | 即 |
| その他費用 | |||
| 周辺環境 | 倉敷市立茶屋町西幼稚園 徒歩6分 (約460m) 倉敷市茶屋町保育園 徒歩6分 (約440m) Cプラッツチャチャ 徒歩7分 (約530m) 茶屋町郵便局 徒歩9分 (約710m) 茶屋町交番 徒歩10分 (約790m) 中国銀行茶屋町支店 徒歩11分 (約830m) 茶屋町駅 徒歩11分 (約860m) ドラッグセイムス茶屋町店 徒歩12分 (約900m) スーパードラッグひまわり茶屋町店 徒歩13分 (約970m) ホームセンタージュンテンドー茶屋町店 徒歩13分 (約970m) |
||
| 備考 | ●茶屋町駅まで徒歩10分 ●スーパー、ドラッグストア、公園まで徒歩10分圏内 ●駐車スペース最大並列3台可能(車種による) ●5LDK+WIC ※建築基準法第22条区域・景観法・都市再生特別措置法 |
||
| 物件番号 | 4526011 | 取引態様 | 媒介 |
取扱店舗情報
ハウスドゥ 倉敷駅東 株式会社アールイープロジェクト 店舗詳細ページへ
| 電話番号 | 086-424-6400 |
|---|---|
| 所在地 | 〒710-0003 岡山県倉敷市平田681-4 |
| 営業時間 | 9:00~18:00 |
| 定休日 | 水曜日、年末年始 |
| 宅建免許番号 | 岡山県知事(2)第5855号 |
| アクセス | 店舗への地図はこちら |

来店ご予約
岡山県倉敷市で価格が似ている物件はこちら
- 岡山県
マイページ物件数 - 4,457件
最近見た物件
-
-

-
- 新築一戸建て
- 3,680万円
-
岡山市中区藤原光町2丁目
-
JR山陽本線高島
-
-
-

-
- 中古一戸建て
- 3,980万円
-
田原市赤羽根町新笹
-
豊橋鉄道渥美線三河田原
-
-
-

-
- 中古マンション
- 1,850万円
-
東海市高横須賀町浜田
-
名鉄常滑線尾張横須賀
-
岡山県新築一戸建て新着物件
-
-

-
- 新築一戸建て
- 3,098万円
-
倉敷市茶屋町
-
JR本四備讃線茶屋町駅
-
-
-

-
- 新築一戸建て
- 3,198万円
-
倉敷市青江
-
JR山陽本線倉敷駅
-
-
-

-
- 新築一戸建て
- 3,680万円
-
岡山市中区藤原光町2丁目
-
JR山陽本線高島駅
-
-
-

-
- 新築一戸建て
- 3,180万円
-
倉敷市中島
-
JR山陽本線西阿知駅
-
-
-

-
- 新築一戸建て
- 3,480万円
-
倉敷市中島
-
JR山陽本線西阿知駅
-
-
-

-
- 新築一戸建て
- 3,680万円
-
岡山市中区藤原光町2丁目
-
JR山陽本線高島駅
-
-
-

-
- 新築一戸建て
- 2,499万円
-
岡山市中区福泊
-
JR山陽本線岡山駅
-
- お近くの店舗を探す
-






























