岡山市東区広谷の新築戸建
NEW 12.16掲載情報更新日:2025年12月16日 次回更新予定日:2025年12月30日
- 4,560万円
-
- 借入ご希望金額
万円 - 借入期間
年 - 借入金利
% - 月々のお支払い金額
円
- 借入ご希望金額
※ 月々のお支払例は目安の試算となりますので、実際の金額とは異なる場合がございます。詳しくは店舗までお問合わせください。
- 岡山市東区広谷
-
JR赤穂線『大多羅』 徒歩22分 (約1690m)
岡山市東区広谷一戸建て | 物件情報
物件の設備
- 電気
- 公営水道
- 公共下水
- プロパンガス
- IHクッキングヒータ
物件の特徴
- 前道6m以上
- 2階建
物件詳細情報
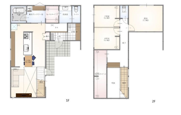
| 価格 | 4,560万円 | 間取り | 3LDK |
|---|---|---|---|
| 物件種別 | 新築一戸建て | ||
| 所在地 | 岡山県岡山市東区広谷 | ||
| アクセス |
|
||
| 建物面積 | 101.5㎡ | 駐車場 | あり 普通:2台 |
| 築年月 | 2025年(令和7年)08月築 | 建築確認 | |
| 建物構造 | 木造 2階建 | 工法 | |
| 主要採光 | バルコニー | ||
| 保証・評価 | |||
| 土地面積 | 158.17㎡(47.84坪) | 接道 | 南東側幅 約6.0m 北東側幅 約6.0m |
| 私道 | セットバック | ||
| 地目 | 宅地 | 地勢 | 平坦 |
| 権利 | 所有権 |
||
| 都市計画 | 市街化区域 |
用途地域 | 1種低層 |
| 建ぺい/容積率 | 50% / 100% | 土地国土法 | |
| 許可番号 | 建築基準法 | ||
| 法令制限 | |||
| 小学区 | 芥子山小学校 徒歩13分 (約1030m) | 中学区 | 旭東中学校 徒歩30分 (約2390m) |
| 現況 | 完工済 | 引渡 | 相談 |
| その他費用 | |||
| 周辺環境 | 西大寺中央クリニック 徒歩5分 (約370m) 西大寺広谷郵便局 徒歩7分 (約510m) ニシナフードバスケット西大寺店 徒歩7分 (約520m) 中国銀行 松崎支店 徒歩7分 (約540m) ウエルシア岡山富士見店 徒歩9分 (約680m) セブンイレブン岡山西大寺松崎店 徒歩12分 (約890m) おおみち耳鼻咽喉科医院 徒歩13分 (約1010m) エディオン西大寺店 徒歩15分 (約1150m) 岡山市立芥子山小学校 徒歩13分 (約1030m) 社会福祉法人あじさい くまの子保育園 徒歩14分 (約1100m) |
||
| 備考 | |||
| 物件番号 | 4528796 | 取引態様 | 媒介 |
取扱店舗情報
ハウスドゥ 岡山西大寺松崎 日笠REC株式会社 店舗詳細ページへ
| 電話番号 | 086-230-1702 |
|---|---|
| 所在地 | 〒704-8183 岡山県岡山市東区西大寺松崎162-5 |
| 営業時間 | 10:00~18:00 |
| 定休日 | 水曜日、年末年始 |
| 宅建免許番号 | 岡山県知事(1)第6175号 |
| アクセス | 店舗への地図はこちら |

来店ご予約
岡山県岡山市東区で価格が似ている物件はこちら
- 岡山県
マイページ物件数 - 4,490件
最近見た物件
-
-

-
- 新築一戸建て
- 3,098万円
-
北九州市八幡西区木屋瀬東2丁目
-
筑豊電気鉄道木屋瀬
-
-
-

-
- 新築一戸建て
- 3,080万円
-
浜松市中央区本郷町
-
JR東海道本線浜松
-
-
-

-
- 新築一戸建て
- 4,198万円
-
春日市弥生7丁目
-
JR博多南線博多南
-
岡山県新築一戸建て新着物件
- お近くの店舗を探す
-





























