岡山市東区西大寺東2丁目の新築戸建
NEW 01.13掲載情報更新日:2026年01月18日 次回更新予定日:2026年02月01日
- 4,687万円
-
- 借入ご希望金額
万円 - 借入期間
年 - 借入金利
% - 月々のお支払い金額
円
- 借入ご希望金額
※ 月々のお支払例は目安の試算となりますので、実際の金額とは異なる場合がございます。詳しくは店舗までお問合わせください。
- 岡山市東区西大寺東2丁目
-
JR赤穂線『西大寺』 徒歩14分 (約1080m)
岡山市東区西大寺東2丁目一戸建て | 物件情報
物件の設備
- 電気
- オール電化
- 上水道
- 下水道
- 側溝
- 給湯
- IHクッキングヒータ
- オープンキッチン
- オートバス
- 追焚機能
- 浴室暖房
- 浴室乾燥機
- トイレ2箇所
- 温水洗浄便座
- 室内洗濯機置場
- 洗髪洗面化粧台
- 洗面所独立
- 全室エアコン
- 照明器具
- ダウンライト
- 太陽光発電システム
- EV車充電設備
- モニタ付インターホン
- 火災警報器/報知機
- LDK20畳以上
- 全室フローリング
- クローゼット
- ウォークインクローゼット
- 床下収納
- 全居室収納
- シューズボックス
- ワイドバルコニー
物件の特徴
- 前道6m以上
- スーパーが近い
- 閑静な住宅街
- 陽当り良好
- 2階建
- 角地
- 平坦地
- 整形地
- 開発分譲地内
- フラット35Sに対応
物件詳細情報
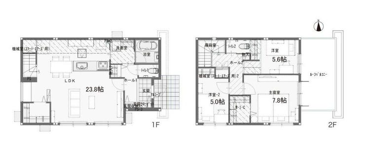
| 価格 | 4,687万円 | 間取り | 3LDK |
|---|---|---|---|
| 物件種別 | 新築一戸建て | ||
| 所在地 | 岡山県岡山市東区西大寺東2丁目 | ||
| アクセス |
|
||
| 建物面積 | 100.41㎡ | 駐車場 | あり 普通:3台 |
| 築年月 | 2026年(令和8年)03月予定 | 建築確認 | 第ERI-25033351号 |
| 建物構造 | 軽量鉄骨 2階建 | 工法 | |
| 主要採光 | バルコニー | ||
| 保証・評価 | |||
| 土地面積 | 180.81㎡(54.69坪) | 接道 | 北側(公道)幅 約6.0m 東側(公道)幅 約6.0m |
| 私道 | セットバック | 無 | |
| 地目 | 宅地 | 地勢 | |
| 権利 | 所有権 |
||
| 都市計画 | 市街化区域 |
用途地域 | 1種住居 |
| 建ぺい/容積率 | 60% / 200% | 土地国土法 | |
| 許可番号 | 建築基準法 | ||
| 法令制限 | |||
| 小学区 | 西大寺小学校 徒歩18分 (約1410m) | 中学区 | 西大寺中学校 徒歩19分 (約1480m) |
| 現況 | 建築中 | 引渡 | 期日指定:2026年03月下旬 |
| その他費用 | |||
| 周辺環境 | おかやまコープ西大寺店 徒歩10分 (約750m) 西大寺駅 徒歩14分 (約1080m) 岡山市立西大寺中学校 徒歩19分 (約1480m) 岡山市立西大寺小学校 徒歩18分 (約1410m) 岡山一心堂病院 徒歩18分 (約1440m) トマト銀行 西大寺支店 徒歩20分 (約1570m) マルナカ西大寺店 徒歩21分 (約1680m) 岡山市東区役所 徒歩24分 (約1850m) ケーズデンキ岡山西大寺店 徒歩26分 (約2020m) 西大寺緑化公園 徒歩24分 (約1920m) |
||
| 備考 | ★長期優良住宅認定通知書・住宅性能評価書・フラット35 S適合証明書 ★太陽光発電システム・EV車充電設備・インターネット対応 ★全室照明・エアコン付 ★カーテン付 ★駅まで徒歩14分 ★角地で陽当たり良好です♪ |
||
| 物件番号 | 4552366 | 取引態様 | 媒介 |
取扱店舗情報
ハウスドゥ 岡山西大寺松崎 日笠REC株式会社 店舗詳細ページへ
| 電話番号 | 086-230-1702 |
|---|---|
| 所在地 | 〒704-8183 岡山県岡山市東区西大寺松崎162-5 |
| 営業時間 | 10:00~18:00 |
| 定休日 | 水曜日、年末年始 |
| 宅建免許番号 | 岡山県知事(1)第6175号 |
| アクセス | 店舗への地図はこちら |

来店ご予約
- 岡山県
マイページ物件数 - 4,462件
最近見た物件
-
-

-
- 新築一戸建て
- 2,590万円
-
甲府市貢川2丁目
-
JR中央本線甲府
-
-
-

-
- 中古マンション
- 2,980万円
-
品川区西五反田1丁目
-
JR山手線五反田
-
-
-

-
- 土地
- 2,820万円
-
松江市学園1丁目
-
JR山陰本線松江
-
岡山県新築一戸建て新着物件
- お近くの店舗を探す
-





















