グランドコート親水公園 足立区舎人5丁目の中古マンション
掲載情報更新日:2026年02月09日 次回更新予定日:2026年02月23日
- 1,750万円
-
- 借入ご希望金額
万円 - 借入期間
年 - 借入金利
% - 月々のお支払い金額
円
- 借入ご希望金額
※ 月々のお支払例は目安の試算となりますので、実際の金額とは異なる場合がございます。詳しくは店舗までお問合わせください。
- 足立区舎人5丁目
-
日暮里舎人ライナー『見沼代親水公園』 徒歩1分 (約80m)
日暮里舎人ライナー『舎人』 徒歩14分 (約1050m)
足立区舎人5丁目マンション | 物件情報
★人気エリアのマンションが登場です★オーナーチェンジ★
人気エリアにマンションが登場です!
◆オーナーチェンジ
◆表面利回り4.98%
※サブリース中
物件の設備
- B/T別室
- 室内洗濯機置場
- エアコン
- オートロック
- モニタ付インターホン
- バルコニー
- 宅配BOX
- エレベーター
物件の特徴
- 管理人巡回
物件詳細情報
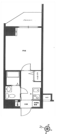
| 価格 | 1,750万円 | 間取り | 1K |
|---|---|---|---|
| 物件種別 | 中古マンション(収益) | ||
| 所在地 | 東京都足立区舎人5丁目 | ||
| アクセス |
|
||
| 専有面積 | 壁芯 25.30㎡ | 所在階 | 10階建/9階部分 |
| 主要採光 | 東向 | バルコニー | 東向3.00㎡ |
| その他 | |||
| 権利 | 所有権 |
||
| 保証・評価 | |||
| リフォーム | |||
| 総戸数 | 47戸 | 面積 | |
| 築年月 | 2014年(平成26年)05月築 | 建物構造 | RC |
| 施工会社 | |||
| 管理会社 | ワークス合人社 | 管理方式 | 全部委託 巡回管理 |
| 駐車場 | |||
| 都市計画 | 用途地域 | 近隣商業 | |
| 建ぺい/容積率 | 土地国土法 | ||
| 法令制限 | |||
| 小学区 | 舎人第一小学校 徒歩8分 (約600m) | 中学区 | 入谷南中学校 徒歩19分 (約1450m) |
| 現況 | 賃貸中 | 引渡 | 相談 |
| 管理費 | 5,100円/月 | 修繕積立金 | 1,300円/月 |
| その他費用 | |||
| 収益情報 | 表面利回り:4.98% 家賃収入:0円 |
||
| 周辺環境 | セブンイレブン足立舎人2丁目店 徒歩2分 (約120m) 日暮里舎人ライナー 見沼代親水公園駅 徒歩2分 (約120m) 見沼代親水公園駅 徒歩2分 (約120m) 竹の塚警察署 見沼代親水公園駅前交番 徒歩2分 (約160m) 博慈会田園クリニック 徒歩3分 (約200m) 舎人児童遊園 徒歩3分 (約240m) ウェルパーク足立舎人店 徒歩3分 (約210m) とねり伊藤幼稚園 徒歩5分 (約390m) 島忠 ホームズ草加舎人店 徒歩7分 (約490m) ビッグエー足立舎人店 徒歩9分 (約710m) |
||
| 備考 | |||
| 物件番号 | 4376136 | 取引態様 | 媒介 |
※利回りとは、当該不動産の1年間の予定賃料収入の不動産取得対価に対する割合であり、公租公課その他当該物件を維持するために必要な費用の控除前のものです。また、予定賃料収入が確実に得られる事を保証するものではありません。
※利回り、想定年収に関する詳しい内容は、直接店舗までお問い合わせ下さい。
取扱店舗情報
ハウスドゥ 鳩ヶ谷坂下町 株式会社ウェルカムホーム 店舗詳細ページへ
| 電話番号 | 048-242-5180 |
|---|---|
| 所在地 | 〒334-0003 埼玉県川口市坂下町3丁目32-21 |
| 営業時間 | 9:00~18:00 |
| 定休日 | 火曜日、水曜日、年末年始 |
| 宅建免許番号 | 埼玉県知事(1)第25389号 |
| アクセス | 店舗への地図はこちら |

来店ご予約
- 東京都
マイページ物件数 - 5,289件
東京都事業用・収益物件新着物件
-
-

-
- 収益
- 3,280万円
-
千代田区飯田橋1丁目
-
JR総武・中央緩行線飯田橋駅
-
-
-

-
- 収益
- 2,200万円
-
渋谷区神山町
-
JR山手線渋谷駅
-
-
-

-
- 収益
- 2,880万円
-
港区赤坂2丁目
-
東京メトロ千代田線赤坂駅
-
-
-

-
- 収益
- 2,380万円
-
中央区日本橋蛎殻町2丁目
-
東京メトロ半蔵門線水天宮前駅
-
-
-

-
- 収益
- 3,980万円
-
港区西麻布4丁目
-
東京メトロ日比谷線広尾駅
-
-
-

-
- 収益
- 1億9,500万円
-
中央区新富2丁目
-
東京メトロ有楽町線新富町駅
-
-
-

-
- 収益
- 7,200万円
-
港区南青山4丁目
-
東京メトロ銀座線表参道駅
-
- お近くの店舗を探す
-
おすすめ物件
-
-

-
- 収益
- 2,080万円
-
江戸川区東葛西1丁目
-
東京メトロ東西線葛西
-
-
-

-
- 収益
- 7,450万円
-
大田区南蒲田1丁目
-
京急本線京急蒲田
-
-
-

-
- 事業用
- 3,980万円
-
三戸郡南部町大字小向字小田沢
-
青い森鉄道諏訪ノ平
-
-
-

-
- 収益
- 780万円
-
葛飾区金町3丁目
-
JR千代田・常磐緩行線金町
-




担当エージェント:富重 隆文
お客様に「寄り添う」会社です。不動産の購入は金額も大きく、不安なことがたくさんあると思います。ぜひ、一度ご連絡ください。不動産に関するプロとして、お客様の課題に一つ一つ向き合っていきます。