港区芝2丁目の収益物件
掲載情報更新日:2026年01月26日 次回更新予定日:2026年02月09日
- 5,300万円
-
- 借入ご希望金額
万円 - 借入期間
年 - 借入金利
% - 月々のお支払い金額
円
- 借入ご希望金額
※ 月々のお支払例は目安の試算となりますので、実際の金額とは異なる場合がございます。詳しくは店舗までお問合わせください。
- 港区芝2丁目
-
都営三田線『芝公園』 徒歩3分 (約240m)
都営浅草線『三田』 徒歩8分 (約640m)
港区芝2丁目の収益物件 | 物件情報
三田・芝公園エリアで叶う洗練された都市生活。 上質な外観とホテルのような共用部が魅力です。
ザ・パークワンズ芝公園は、落ち着いた街並みが広がる芝公園エリアに建つ洗練された都市型レジデンスです。外観は白を基調とした上品なデザインで、ホテルライクなエントランスが住まう方を上質に迎え入れます。共用部にはオートロック、防犯カメラ、宅配ボックスを備え、日々の暮らしに安心と利便性をプラス。駐車場はターンテーブル式で、車をお持ちの方にもストレスのない動線を確保しています。周辺には芝公園や増上寺があり、緑と歴史が調和した落ち着いた住環境。さらに、三田・浜松町・大門など複数路線が利用可能でアクセス性も良好です。シンプルで洗練された共用部と利便性の高い立地が魅力の、都心生活に最適なレジデンスです。
物件の設備
- コンロ一口
- バス
- トイレ
- B/T別室
- 室内洗濯機置場
- 洗髪洗面化粧台
- オートロック
- クローゼット
- バルコニー
- 南面バルコニー
- 宅配BOX
- エレベーター
物件の特徴
- 管理人日勤
物件詳細情報
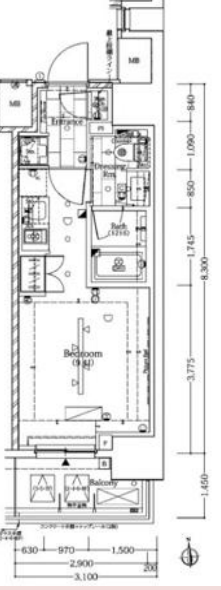
| 価格 | 5,300万円 | 間取り | 1K |
|---|---|---|---|
| 物件種別 | 事業用(マンション・収益・区分所有) | ||
| 所在地 | 東京都港区芝2丁目 | ||
| アクセス |
|
||
| 専有面積 | 壁芯 25.33㎡ | 所在階 | 12階建/4階部分 |
| 主要採光 | 南向 | バルコニー | 南向4.20㎡ |
| その他 | |||
| 権利 | 所有権 |
||
| 保証・評価 | |||
| リフォーム | |||
| 総戸数 | 面積 | ||
| 築年月 | 2018年(平成30年)04月築 | 建物構造 | RC |
| 施工会社 | |||
| 管理会社 | 三菱地所コミュニティ | 管理方式 | 全部委託 日勤管理 |
| 駐車場 | |||
| 都市計画 | 用途地域 | ||
| 建ぺい/容積率 | 土地国土法 | ||
| 法令制限 | |||
| 小学区 | 芝小学校 徒歩4分 (約290m) | 中学区 | 三田中学校 徒歩19分 (約1500m) |
| 現況 | 賃貸中 | 引渡 | 相談 |
| 管理費 | 10,290円/月 | 修繕積立金 | 3,170円/月 |
| その他費用 | |||
| 収益情報 | 表面利回り:3.28% 家賃収入:1,740,000円 |
||
| 備考 | |||
| 物件番号 | 4494607 | 取引態様 | 媒介 |
※利回りとは、当該不動産の1年間の予定賃料収入の不動産取得対価に対する割合であり、公租公課その他当該物件を維持するために必要な費用の控除前のものです。また、予定賃料収入が確実に得られる事を保証するものではありません。
※利回り、想定年収に関する詳しい内容は、直接店舗までお問い合わせ下さい。
取扱店舗情報
| 電話番号 | 03-5544-9070 |
|---|---|
| 所在地 | 〒106-0032 東京都港区六本木5丁目18番2号 大昌第2ビル6階 |
| 営業時間 | 10:00~18:00 |
| 定休日 | 水曜日、日曜日、年末年始 |
| 宅建免許番号 | 東京都知事(1)第111695号 |
| アクセス | 店舗への地図はこちら |

来店ご予約
- 東京都
マイページ物件数 - 5,207件
最近見た物件
-
-

-
- 中古マンション
- 2,780万円
-
大阪市住吉区東粉浜3丁目
-
阪堺電気軌道阪堺線住吉
-
東京都事業用・収益物件新着物件
-
-

-
- 収益
- 3,630万円
-
港区芝浦1丁目
-
都営三田線三田駅
-
-
-

-
- 収益
- 8,380万円
-
港区芝浦2丁目
-
JR山手線田町駅
-
-
-

-
- 収益
- 1,180万円
-
江戸川区西篠崎2丁目
-
都営新宿線篠崎駅
-
-
-

-
- 事業用
- 2,000万円
-
練馬区関町東2丁目
-
西武新宿線武蔵関駅
-
-
-

-
- 収益
- 3,980万円
-
渋谷区恵比寿南3丁目
-
JR山手線恵比寿駅
-
-
-

-
- 収益
- 2,970万円
-
港区赤坂9丁目
-
東京メトロ千代田線乃木坂駅
-
-
-

-
- 収益
- 8,480万円
-
港区白金台2丁目
-
都営浅草線高輪台駅
-
- お近くの店舗を探す
-
おすすめ物件
-
-

-
- 収益
- 780万円
-
葛飾区金町3丁目
-
JR千代田・常磐緩行線金町
-
-
-

-
- 事業用
- 3,980万円
-
三戸郡南部町大字小向字小田沢
-
青い森鉄道諏訪ノ平
-
-
-

-
- 収益
- 2,080万円
-
江戸川区東葛西1丁目
-
東京メトロ東西線葛西
-
-
-

-
- 収益
- 7,450万円
-
大田区南蒲田1丁目
-
京急本線京急蒲田
-








ザ・パークワンズ芝公園は、実際に現地を訪れると“上質さと落ち着き”を強く感じるマンションです。エントランスは派手さを抑えながらも高級感があり、清潔感や管理状態の良さが随所に感じられます。共用部は必要な設備をしっかりと備え、単身者やDINKSの方にとっても使い勝手の良い仕様になっています。特に立地の良さは大きな魅力で、芝公園や増上寺周辺の落ち着いた環境と、三田・浜松町エリアの利便性を同時に享受できる点は希少です。また、都心でありながら住環境が良く、賃貸需要も高いため、自己居住用・投資用どちらにも適した資産性の高いマンションです。写真以上に現地で感じる雰囲気が良い物件ですので、ぜひ一度ご見学いただきたいと思います。