苫小牧市桜木町4丁目の事業用物件
掲載情報更新日:2026年05月08日 次回更新予定日:2026年05月22日
- 5,000万円
-
- 借入ご希望金額
万円 - 借入期間
年 - 借入金利
% - 月々のお支払い金額
円
- 借入ご希望金額
※ 月々のお支払例は目安の試算となりますので、実際の金額とは異なる場合がございます。詳しくは店舗までお問合わせください。
- 苫小牧市桜木町4丁目
-
JR室蘭本線『青葉』 徒歩18分 (約1440m)
JR室蘭本線『糸井』 徒歩19分 (約1520m)
道南バス『「桜木3丁目」』 徒歩1分 (約60m)
苫小牧市桜木町4丁目の事業用物件 | 物件情報
LINEでのお問い合わせはこちらの物件NOをお知らせください→4551036 桜木町事務所・倉庫
苫小牧市桜木町で理想的な物件をご紹介★2003年9月に外壁と屋根を塗装したこちらの事務所・倉庫は、ビジネスの拠点としてぴったり★荷物運搬用エレベーターが備え付けられており、日々の業務をスムーズに進めることができます★エアコンや暖房器具も完備されていますので、どんな季節でも快適にお使いいただけます★※敷地境界について、既在のブロック塀や庭木等の越境がある場合はその越境を解消できない可能性があり、その場合は現状でのお引き渡しとなります。物件の詳細や不動産査定・不動産売却についてはハウスドゥ苫小牧までお気軽にお問合せください!!
物件の設備
- 電気
- 上水道
- 下水道
- トイレ
- 男女別トイレ
- 石油暖房
- エアコン
- エレベーター
物件の特徴
- 閑静な住宅街
- 整形地
物件詳細情報
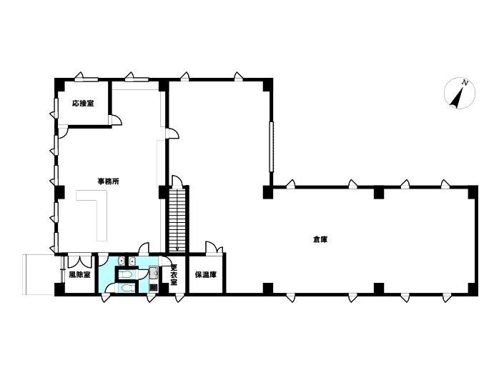
| 価格 | 5,000万円 | 間取り | |
|---|---|---|---|
| 物件種別 | 事業用(事務所・一棟所有) | ||
| 所在地 | 北海道苫小牧市桜木町4丁目13-10 13-10 | ||
| アクセス |
|
||
| 建物面積 | 公530.5㎡ | 駐車場 | |
| 築年月 | 1990年(平成2年)10月築 | ||
| 建物構造 | 鉄骨 2階建 | 工法 | |
| 主要採光 | バルコニー | ||
| 保証・評価 | |||
| リフォーム | 【外装】2003年09月 外壁 ・屋根 |
||
| 土地面積 | 公584.6㎡(176.84坪) | 接道 | 南西側(公道)幅 約25.0m 間口 約16.74m 北東側(公道)幅 約6.5m 間口 約16.74m |
| 私道 | セットバック | 無 | |
| 地目 | 宅地 | 地勢 | 平坦 |
| 権利 | 所有権 |
||
| 都市計画 | 市街化区域 |
用途地域 | 1種住居 |
| 建ぺい/容積率 | 60% / 200% | 土地国土法 | |
| 許可番号 | 建築基準法 | ||
| 法令制限 | 水防法・景観法 | ||
| 小学区 | 北星小学校 徒歩10分 (約740m) | 中学区 | 啓北中学校 徒歩14分 (約1110m) |
| 現況 | 空 | 引渡 | 相談 |
| その他費用 | 不動産仲介手数料 所有権移転費用 |
||
| 収益情報 | |||
| 周辺環境 | しのじま皮膚科クリニック 徒歩4分 (約250m) 柴田内科循環器科 徒歩6分 (約430m) ビックバン 桜木店 徒歩6分 (約430m) 桜木郵便局 徒歩8分 (約630m) ツルハドラッグ桜木店 徒歩8分 (約630m) 豊巻歯科医院 徒歩8分 (約630m) 豊川コミュニティセンター 徒歩8分 (約620m) 三好内科胃腸科クリニック 徒歩9分 (約670m) 豊川総合福祉会館 徒歩10分 (約790m) 喜早眼科 徒歩10分 (約760m) |
||
| 備考 | 苫小牧市桜木町で理想的な物件をご紹介★2003年9月に外壁と屋根を塗装したこちらの事務所・倉庫は、ビジネスの拠点としてぴったり★荷物運搬用エレベーターが備え付けられており、日々の業務をスムーズに進めることができます★エアコンや暖房器具も完備されていますので、どんな季節でも快適にお使いいただけます★※敷地境界について、既在のブロック塀や庭木等の越境がある場合はその越境を解消できない可能性があり、その場合は現状でのお引き渡しとなります。物件の詳細や不動産査定・不動産売却についてはハウスドゥ苫小牧までお気軽にお問合せください!! | ||
| 物件番号 | 4551036 | 取引態様 | 媒介 |
取扱店舗情報
ハウスドゥ 苫小牧東 有限会社山地不動産企画 店舗詳細ページへ
| 電話番号 | 0144-61-1171 |
|---|---|
| 所在地 | 〒053-0041 北海道苫小牧市美園町1丁目3-6 |
| 営業時間 | 9:30-18:30 |
| 定休日 | 不定休 |
| 宅建免許番号 | 北海道知事 胆振(9)第690号 |
| アクセス | 店舗への地図はこちら |

来店ご予約
北海道苫小牧市で価格が似ている物件はこちら
- 北海道
マイページ物件数 - 6,429件
最近見た物件
-
-

-
- 土地
- 500万円
-
香南市野市町西野
-
土佐くろしお鉄道ごめん・なはり線のいち
-
-
-

-
- 土地
- 545万円
-
常滑市大野町6丁目
-
名鉄常滑線大野町
-
-
-

-
- 新築一戸建て
- 3,298万円
-
熊本市北区清水新地1丁目
-
熊本電気鉄道堀川
-
北海道事業用・収益物件新着物件
-
-

-
- 収益
- 7,934万円
-
恵庭市柏陽町4丁目
-
JR千歳線恵み野駅
-
-
-

-
- 事業用
- 1,480万円
-
恵庭市黄金中央2丁目
-
JR千歳線恵庭駅
-
-
-

-
- 収益
- 2,880万円
-
千歳市錦町4丁目
-
JR千歳線千歳駅
-
-
-

-
- 収益
- 6,980万円
-
札幌市白石区本通16丁目南
-
札幌市東西線南郷13丁目駅
-
-
-

-
- 収益
- 2,200万円
-
旭川市永山十二条2丁目
-
JR石北本線南永山駅
-
-
-

-
- 事業用
- 900万円
-
帯広市西一条南28丁目
-
JR根室本線帯広駅
-
-
-

-
- 事業用
- 900万円
-
帯広市西一条南28丁目
-
JR根室本線帯広駅
-
- お近くの店舗を探す
-
おすすめ物件
-
-

-
- 収益
- 430万円
-
札幌市西区琴似二条6丁目
-
札幌市東西線琴似
-
-
-

-
- 収益
- 8,900万円
-
札幌市白石区東札幌四条3丁目
-
札幌市東西線東札幌
-
-
-

-
- 収益
- 600万円
-
中川郡幕別町緑町
-
JR根室本線幕別
-
-
-

-
- 収益
- 650万円
-
札幌市南区澄川六条11丁目
-
札幌市南北線澄川
-
-
-

-
- 収益
- 5億4,000万円
-
札幌市中央区南十条西13丁目
-
札幌市軌道線西線11条
-
-
-

-
- 事業用
- 600万円
-
小樽市花園3丁目
-
JR函館本線南小樽
-









担当エージェント:遠藤 裕太
幅広い層のお客様にとてもお世話になり気づけば10年以上不動産業界に携わっております。苫小牧市、白老町、登別市、室蘭市をメインに 戸建、マンション、土地、投資物件を年間120件以上不動産売買のお手伝いをさせて頂いております。物件選びも大事ですが、一緒に不動産売買を行うパートナー(営業担当)選びもすごく重要だと思います。不動産のプロとして、パートナーとして、お客様のご希望、ご要望等お伺いし、対応が早くすこしでも高い目標へ、お客様を導けるよう心がけております。 不動産売買ついては何でもご相談ください!