岐阜市益屋町の土地
掲載情報更新日:2026年04月07日 次回更新予定日:2026年04月21日
- 680万円
-
- 借入ご希望金額
万円 - 借入期間
年 - 借入金利
% - 月々のお支払い金額
円
- 借入ご希望金額
※ 月々のお支払例は目安の試算となりますので、実際の金額とは異なる場合がございます。詳しくは店舗までお問合わせください。
- 岐阜市益屋町
-
名鉄名古屋本線『名鉄岐阜』 バス乗車10分 岐阜バス 本町1丁目(岐阜市) 停 徒歩3分 (約240m)
JR東海道本線『岐阜』 徒歩42分 (約3320m)
名鉄各務原線『田神』 徒歩42分 (約3360m)
岐阜市益屋町土地 | 物件情報
岐阜市の不動産のことなら、【ハウスドゥ岐阜西】にお任せください!
\\\ 見るだけ・聞くだけOK ///
―――<<ハウスドゥ 岐阜西>>―――
全国700店舗以上展開中のハウスドゥだからできる、
不動産のワンストップサービスをご提供いたします。
おうち探しの疑問・質問に丁寧にご対応させていただきますので、
初めての方もご安心ください♪
スタッフ一同全力でお客様に寄り添っておうち探しをサポートいたします!
□■□■□住宅ローン無料相談受付中□■□■□
お客様のご希望や条件に合う最適な住宅ローン商品のご提案をさせていただきます。
「いくらまで借りれるんだろう??」
「頭金がなくても買えるの??」
「転職したばかりだけど、、、」
「車のローンが残っている、、、」
「携帯の支払い遅れたことがある、、、」
「家族に内緒の借り入れがある、、、」
「過去に審査が通らなかった、、、」
などなど、少しでも不安のある方はぜひ一度ご相談ください!
経験豊富な担当者がお客様のお悩みにお応えいたします♪
【0120-820-500】までお気軽にお問い合わせください!
物件の設備
- 上水道
- 公営水道
- 下水道
- 公共下水
- 都市ガス
物件の特徴
- 小学校徒歩10分以内
- スーパーが近い
- 都市近郊
- IT重説
- 建築条件無
物件詳細情報
| 価格 | 680万円 | 坪単価 | 坪26.7万円 |
|---|---|---|---|
| 物件種別 | 土地 | ||
| 所在地 | 岐阜県岐阜市益屋町 | ||
| アクセス |
|
||
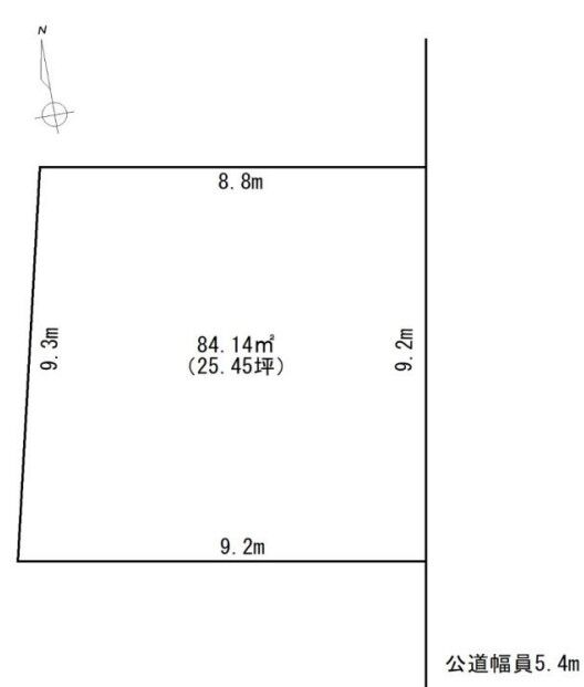
| 土地面積 | 84.14㎡(25.45坪) | 接道 | 東側(公道)幅 約5.4m 間口 約9.20m |
| 私道 | セットバック | ||
| 最適用途 | 住宅用地 | 造成完了時期 | |
| 地目 | 宅地 | 地勢 | |
| 権利 | 所有権 |
||
| 都市計画 | 市街化区域 |
用途地域 | 商業 |
| 建ぺい/容積率 | 80% / 324% | 土地国土法 | |
| 許可番号 | 建築基準法 | ||
| 法令制限 | 岐阜市景観計画(金華区域)B地区 | ||
| 小学区 | 岐阜小学校 徒歩9分 (約700m) | 中学区 | 岐阜中央中学校 徒歩26分 (約2080m) |
| 現況 | 更地 | 引渡 | 相談 |
| 建築条件 | 建築条件なし | ||
| その他費用 | |||
| 周辺環境 | 岐阜市立岐阜小学校 徒歩9分 (約700m) 岐阜市立 岐阜中央中学校 徒歩26分 (約2080m) 明照幼稚園 徒歩14分 (約1080m) ファミリーマート 岐阜公園前店 徒歩7分 (約490m) セブンイレブン 岐阜早田東町6丁目店 徒歩18分 (約1440m) 江戸屋 徒歩4分 (約290m) ザ・ビッグエクスプレス 岐阜早田店 徒歩18分 (約1390m) スギ薬局 早田東店 徒歩21分 (約1630m) 岐阜材木町郵便局 徒歩4分 (約260m) 川出医院 徒歩3分 (約200m) |
||
| 備考 | |||
| 物件番号 | 4617379 | 取引態様 | 媒介 |
取扱店舗情報
| 電話番号 | 058-214-8580 |
|---|---|
| 所在地 | 〒500-8309 岐阜県岐阜市都通5丁目17番地1 |
| 営業時間 | 9:30~18:30 |
| 定休日 | 水曜日 |
| 宅建免許番号 | 国土交通大臣(2)第9483号 |
| アクセス | 店舗への地図はこちら |

来店ご予約
岐阜県岐阜市で価格が似ている物件はこちら
- 岐阜県
マイページ物件数 - 4,970件
最近見た物件
-
-

-
- 土地
- 1,143.82万円
-
倉敷市粒江
-
JR宇野線茶屋町
-
-
-

-
- 土地
- 430万円
-
鹿児島市喜入町
-
JR指宿枕崎線喜入
-
-
-

-
- 収益
- 1,900万円
-
河東郡音更町新通7丁目
-
しらかばバス
-
岐阜県土地新着物件
- お近くの店舗を探す
-
おすすめ物件
-
-

-
- 土地
- 980万円
-
岐阜市領下
-
名鉄各務原線細畑
-
-
-

-
- 土地
- 1,000万円
-
多治見市上町3丁目
-
JR中央本線多治見
-
-
-

-
- 土地
- 430万円
-
美濃加茂市蜂屋町下蜂屋
-
長良川鉄道加茂野
-
-
-

-
- 土地
- 720万円
-
本巣市上真桑
-
樽見鉄道北方真桑
-
-
-

-
- 土地
- 728万円
-
美濃加茂市本郷町4丁目
-
JR高山本線古井
-
-
-

-
- 土地
- 313.44万円
-
揖斐郡揖斐川町谷汲長瀬
-
ふれあいバス山田
-
-
-

-
- 土地
- 500万円
-
関市池尻
-
関シティバス池尻停
-
-
-

-
- 土地
- 550万円
-
揖斐郡大野町大字黒野
-
岐阜バス黒野八幡町
-
-
-

-
- 土地
- 1,700万円
-
多治見市旭ケ丘10丁目
-
JR中央本線多治見
-
-
-

-
- 土地
- 1,500万円
-
関市平賀町4丁目
-
岐阜バス東町停
-










担当エージェント:後藤 龍臣
地域密着!多数物件を取り扱っております♪
リフォームや資金計画、住宅ローンについても丁寧にご説明いたします!
売却・買替えをご検討の方もお気軽にご相談ください☆