大津市南郷1丁目の中古戸建
掲載情報更新日:2026年04月24日 次回更新予定日:2026年05月08日
- 3,480万円
-
- 借入ご希望金額
万円 - 借入期間
年 - 借入金利
% - 月々のお支払い金額
円
- 借入ご希望金額
※ 月々のお支払例は目安の試算となりますので、実際の金額とは異なる場合がございます。詳しくは店舗までお問合わせください。
- 大津市南郷1丁目
-
JR東海道線『石山』 バス乗車17分 赤川 停 徒歩2分 (約160m)
京阪電鉄石山坂本線『京阪石山』 バス乗車17分 赤川 停 徒歩2分 (約160m)
大津市南郷1丁目一戸建て | 物件情報
★店舗付き住宅★リフォーム履歴有★
物件の設備
- 電気
- 上水道
- 公営水道
- 下水道
- 公共下水
- 都市ガス
- プロパンガス
- 浴室に窓
- トイレ
- トイレ2箇所
- 室内洗濯機置場
- 洗面所独立
- LDK18畳以上
- 和室
- 全居室6畳以上
- フローリング
- クローゼット
- バルコニー
- エレベーター
物件の特徴
- 小学校徒歩10分以内
- 前道6m以上
- 南側道路面す
- スーパーが近い
- 3階建以上
物件詳細情報
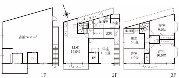
| 価格 | 3,480万円 | 間取り | 5LDK |
|---|---|---|---|
| 物件種別 | 中古一戸建て | ||
| 所在地 | 滋賀県大津市南郷1丁目 | ||
| アクセス |
|
||
| 建物面積 | 223.83㎡ | 駐車場 | あり 普通:4台 |
| 築年月 | 1986年(昭和61年)08月築 | ||
| 建物構造 | RC 3階建 | 工法 | |
| 主要採光 | バルコニー | ||
| 保証・評価 | |||
| リフォーム | |||
| 土地面積 | 公189.86㎡(57.43坪) | 接道 | 南側(公道)幅 約6.5m 間口 約21.90m |
| 私道 | セットバック | ||
| 地目 | 宅地 | 地勢 | |
| 権利 | 所有権 |
||
| 都市計画 | 市街化区域 |
用途地域 | 2種住居 |
| 建ぺい/容積率 | 60% / 200% | 土地国土法 | |
| 許可番号 | 建築基準法 | ||
| 法令制限 | |||
| 小学区 | 南郷小学校 徒歩7分 (約560m) | 中学区 | 南郷中学校 徒歩18分 (約1400m) |
| 現況 | 居住中 | 引渡 | 相談 |
| その他費用 | |||
| 周辺環境 | 南郷こども園 徒歩12分 (約950m) 南郷幼稚園 徒歩15分 (約1130m) フレンドマート南郷店 徒歩2分 (約130m) ローソン 大津南郷一丁目店 徒歩5分 (約350m) ドラッグユタカ南郷店 徒歩3分 (約230m) |
||
| 備考 | ■平成31年リフォーム履歴有 キッチン・浴室・洗面・トイレ・クロス(一部)・フローリング(一部) ■現状有姿 ■売主の契約不適合責任免責 ■引き渡し後売主賃貸希望:月額232,000円(想定表面利回り8%) ■店舗プロパンガス、住居都市ガス |
||
| 物件番号 | 4369508 | 取引態様 | 一般媒介 |
取扱店舗情報
ハウスドゥ 家・不動産買取専門店 大津 株式会社マキ不動産販売 店舗詳細ページへ
| 電話番号 | 077-531-0120 |
|---|---|
| 所在地 | 〒520-0821 滋賀県大津市湖城が丘1番13号 マキトラストビル膳所 |
| 営業時間 | 9:00~18:30 |
| 定休日 | 第3火曜日、水曜日 |
| 宅建免許番号 | 滋賀県知事(5)第3019号 |
| アクセス | 店舗への地図はこちら |

来店ご予約
滋賀県大津市で価格が似ている物件はこちら
- 滋賀県
マイページ物件数 - 2,878件
最近見た物件
滋賀県中古一戸建て新着物件
- お近くの店舗を探す
-
おすすめ物件
-
-

-
- 中古一戸建て
- 1,890万円
-
彦根市日夏町
-
JR東海道線河瀬
-
-
-

-
- 中古一戸建て
- 700万円
-
甲賀市甲賀町毛枚
-
JR草津線油日
-
-
-

-
- 中古一戸建て
- 2,640万円
-
野洲市三上
-
JR東海道線野洲
-
-
-

-
- 中古一戸建て
- 2,200万円
-
大津市島の関
-
JR東海道線大津
-
-
-

-
- 中古一戸建て
- 2,900万円
-
大津市堅田1丁目
-
JR湖西線堅田
-
-
-

-
- 中古一戸建て
- 3,480万円
-
草津市上笠4丁目
-
JR東海道線草津
-
-
-

-
- 中古一戸建て
- 450万円
-
長浜市徳山町
-
JR北陸本線虎姫
-
-
-

-
- 中古一戸建て
- 750万円
-
大津市稲葉台
-
京阪京津線追分
-
-
-

-
- 中古一戸建て
- 3,800万円
-
米原市顔戸
-
JR北陸本線坂田
-
-
-

-
- 中古一戸建て
- 1,480万円
-
大津市南志賀3丁目
-
京阪電鉄石山坂本線南滋賀
-

















