中古戸建 倉敷市片島町 西阿知小学校・倉敷第一中学校エリア
掲載情報更新日:2025年10月23日 次回更新予定日:2025年11月06日
- 2,630万円
-
- 借入ご希望金額
万円 - 借入期間
年 - 借入金利
% - 月々のお支払い金額
円
- 借入ご希望金額
※ 月々のお支払例は目安の試算となりますので、実際の金額とは異なる場合がございます。詳しくは店舗までお問合わせください。
- 倉敷市片島町
-
JR山陽本線『西阿知』 車11分(約4.4km)
中古戸建 倉敷市片島町 西阿知小学校・倉敷第一中学校エリア一戸建て | 物件情報
家族の笑顔を守る、安心のオール電化◎クリーンで静かな暮らしが叶う、家族想いのお家です♪
◎ネットからご来店予約でQuoカード1000円分プレゼント!
☆家族構成の変化にもゆとりを持って対応できる設計♪
☆日当たり良好、閑静な住宅街!
\*おすすめPOINT*/
・付帯設備設備が充実♪オール電化◎
・収納スペースが豊富なお住まい!住空間もすっきり♪
・普通車3台駐車可能♪
★周辺環境★
ファミリーマート 倉敷片島店 徒歩約6分(400m)
片島町上ノ町公園 徒歩約6分(450m)
連島北保育園 徒歩約18分(1300m)
『全国700店舗展開の情報ネットワーク!』
◆物件見学・オープンハウス随時開催!◆
◇資金計画、住宅ローン、リフォーム、火災保険
◇弊社提携の銀行員や税理士による無料相談
◇店内にキッズコーナー
◇ドリンクサービス充実
お一人でのご来店、お子様を連れてのご来店も可能です
お気軽にお問い合わせください♪
☆―ご予約・お問合せ―☆
ハウスドゥ総社:0866-95-2775
までお問い合わせください!
物件の設備
- 電気
- オール電化
- 上水道
- 浄化槽
- 側溝
- カウンターキッチン
- バス
- 浴室に窓
- トイレ
- トイレ2箇所
物件の特徴
- 前道6m以上
- 2階建
物件詳細情報
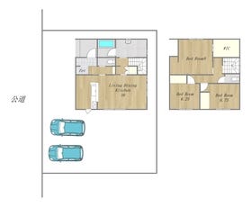
| 価格 | 2,630万円 | 間取り | 4LDK |
|---|---|---|---|
| 物件種別 | 中古一戸建て | ||
| 所在地 | 岡山県倉敷市片島町 | ||
| アクセス |
|
||
| 建物面積 | 100.19㎡ | 駐車場 | あり 普通:3台 |
| 築年月 | 2015年(平成27年)05月築 | ||
| 建物構造 | 木造 2階建 | 工法 | |
| 主要採光 | バルコニー | ||
| 保証・評価 | |||
| リフォーム | |||
| 土地面積 | 公205.26㎡(62.09坪) | 接道 | 東側(公道)幅 約6.0m 間口 約12.00m |
| 私道 | セットバック | ||
| 地目 | 宅地 | 地勢 | 平坦 |
| 権利 | |||
| 都市計画 | 市街化区域 |
用途地域 | 準工業 |
| 建ぺい/容積率 | 60% / 200% | 土地国土法 | |
| 許可番号 | 建築基準法 | ||
| 法令制限 | 景観法・宅地造成工事規制区域・法22条区域・屋外広告物第3種許可地域・大規模集客施設地区 | ||
| 小学区 | 西阿知小学校 徒歩20分 (約1600m) | 中学区 | 倉敷第一中学校 徒歩27分 (約2100m) |
| 現況 | 空 | 引渡 | 相談 |
| その他費用 | |||
| 周辺環境 | ファミリーマート 倉敷片島店 徒歩6分 (約420m) 2号線 中島片島町線入口 徒歩10分 (約780m) 片島保育園 徒歩13分 (約1040m) 三谷原内科医院 徒歩17分 (約1360m) 倉敷大橋郵便局 徒歩25分 (約1930m) 玉島信用金庫 西阿知支店 徒歩22分 (約1750m) 玉島インターチェンジ 徒歩69分 (約5450m) |
||
| 備考 | 現状有姿取引(現況と相違ある場合には現況を優先とします) ・上水20mm、汚水:浄化槽(下水の引込あり・下水への費用は別途費用掛ります) ・太陽光3.72kw(2015年5月設置。売電定額設定は2025年5月に終了いたしました。蓄電池なし。保証一部引き継ぎ有。) ・司法書士売主指定 ミサワホーム施工 |
||
| 物件番号 | 4407072 | 取引態様 | 媒介 |
取扱店舗情報
| 電話番号 | 0866-95-2775 |
|---|---|
| 所在地 | 〒719-1131 岡山県総社市中央1丁目21-101 |
| 営業時間 | 10:00~18:00 |
| 定休日 | 火曜日、水曜日、年末年始 |
| 宅建免許番号 | 岡山県知事(2)第5846号 |
| アクセス | 店舗への地図はこちら |

来店ご予約
岡山県倉敷市で価格が似ている物件はこちら
- 岡山県
マイページ物件数 - 4,334件
最近見た物件
-
-

-
- 中古一戸建て
- 2,950万円
-
倉敷市福田町古新田
-
水島臨海鉄道弥生
-
岡山県中古一戸建て新着物件
-
-

-
- 中古一戸建て
- 500万円
-
倉敷市中畝2丁目
-
水島臨海鉄道水島駅
-
-
-

-
- 中古一戸建て
- 3,280万円
-
倉敷市玉島中央町1丁目
-
JR山陽本線新倉敷駅
-
-
-

-
- 中古一戸建て
- 1,980万円
-
小田郡矢掛町江良
-
井原鉄道矢掛駅
-
-
-

-
- 中古一戸建て
- 2,500万円
-
高梁市落合町阿部
-
JR伯備線備中高梁駅
-
-
-

-
- 中古一戸建て
- 480万円
-
加賀郡吉備中央町粟井谷
-
JR津山線福渡駅
-
-
-

-
- 中古一戸建て
- 1,298万円
-
岡山市中区藤崎
-
JR山陽本線岡山駅
-
-
-

-
- 中古一戸建て
- 2,280万円
-
倉敷市児島元浜町
-
JR本四備讃線児島駅
-
- お近くの店舗を探す
-
おすすめ物件
-
-

-
- 中古一戸建て
- 370万円
-
倉敷市児島柳田町
-
JR本四備讃線上の町
-
-
-

-
- 中古一戸建て
- 300万円
-
倉敷市児島味野5丁目
-
JR本四備讃線児島
-
-
-

-
- 中古一戸建て
- 1,380万円
-
倉敷市上富井
-
水島臨海鉄道西富井
-
-
-

-
- 中古一戸建て
- 500万円
-
倉敷市山地
-
JR山陽本線中庄
-
-
-

-
- 中古一戸建て
- 2,390万円
-
高梁市川上町臘数
-
JR伯備線備中高梁
-
-
-

-
- 中古一戸建て
- 2,400万円
-
倉敷市児島稗田町
-
JR本四備讃線上の町
-
-
-

-
- 中古一戸建て
- 2,800万円
-
岡山市北区今保
-
JR山陽本線北長瀬
-
-
-

-
- 中古一戸建て
- 1,600万円
-
岡山市南区新保
-
JR宇野線備前西市
-
-
-

-
- 中古一戸建て
- 350万円
-
久米郡美咲町宮山
-
JR姫新線美作大崎
-
-
-

-
- 中古一戸建て
- 2,650万円
-
倉敷市白楽町
-
JR山陽本線倉敷
-


















担当エージェント:増田 健太
西阿知小学校・倉敷第一中学校の学区内。住宅街として落ち着きがありながら、生活に必要な商業施設や公共施設にも近く、子育て世帯にも安心の環境です。JR山陽本線「西阿知駅」車約11分(約4.4 km)。国道・幹線道路へのアクセスも良好で、通勤・通学・ドライブどれも快適な立地です。
★初めてお問い合わせいただくお客様へ
1.物件について詳細をご説明します。(オンライン可)
2.お客様のご希望をどうぞお聞かせください♪
3.今後の流れを具体的にご案内
所要時間:約30分~1時間
★物件を見に行こう
所要時間: 1時間~1時間半(移動時間を除く)
気になる物件をじっくりとご確認いただけます。
現地で実際に確かめてください♪
周辺環境など実際の生活を想定したご案内をします。
+‥‥▼お電話でのご予約、ご質問・ご要望はこちらまで▼‥‥+
TEL:0866-95-2775
ハウスドゥ 総社
◆ご売却◆
売却相談、査定も承っております。
ご売却までの流れなどお気軽にご相談ください。