田川北1丁目 中古戸建
掲載情報更新日:2026年02月13日 次回更新予定日:2026年02月27日
- 3,280万円
-
- 借入ご希望金額
万円 - 借入期間
年 - 借入金利
% - 月々のお支払い金額
円
- 借入ご希望金額
※ 月々のお支払例は目安の試算となりますので、実際の金額とは異なる場合がございます。詳しくは店舗までお問合わせください。
- 大阪市淀川区田川北1丁目
-
阪急電鉄神戸線『十三』 徒歩13分 (約1040m)
田川北1丁目 中古戸建一戸建て | 物件情報
◆ハウスドゥ天六駅前おすすめ物件です♪
◆阪急神戸線「十三』駅徒歩13分
物件の設備
- 電気
- 上水道
- 下水道
- 都市ガス
- システムキッチン
- 室内洗濯機置場
- 洗面所独立
物件の特徴
- 3階建以上
物件詳細情報
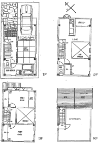
| 価格 | 3,280万円 | 間取り | 3LDK |
|---|---|---|---|
| 物件種別 | 中古一戸建て | ||
| 所在地 | 大阪府大阪市淀川区田川北1丁目 | ||
| アクセス |
|
||
| 建物面積 | 公96.46㎡ | 駐車場 | なし |
| 築年月 | 1997年(平成9年)10月築 | ||
| 建物構造 | 鉄骨 3階建 | 工法 | |
| 主要採光 | バルコニー | ||
| 保証・評価 | |||
| リフォーム | |||
| 土地面積 | 公44.5㎡(13.46坪) | 接道 | |
| 私道 | 別:公6.81㎡ | セットバック | |
| 地目 | 宅地 | 地勢 | |
| 権利 | 所有権 |
||
| 都市計画 | 市街化区域 |
用途地域 | 準工業 |
| 建ぺい/容積率 | 60% / 200% | 土地国土法 | |
| 許可番号 | 建築基準法 | ||
| 法令制限 | |||
| 小学区 | 中学区 | ||
| 現況 | 居住中 | 引渡 | 相談 |
| その他費用 | |||
| 備考 | |||
| 物件番号 | 4479030 | 取引態様 | 媒介 |
取扱店舗情報
| 電話番号 | 06-6881-4360 |
|---|---|
| 所在地 | 〒531-0041 大阪府大阪市北区天神橋7丁目3-2 大山ビル6F |
| 営業時間 | 10:00~19:00 |
| 定休日 | 火曜日・水曜日 |
| 宅建免許番号 | 大阪府知事(3)第56923号 |
| アクセス | 店舗への地図はこちら |

来店ご予約
大阪府大阪市淀川区で価格が似ている物件はこちら
- 大阪府
マイページ物件数 - 17,097件
最近見た物件
大阪府中古一戸建て新着物件
-
-

-
- 中古一戸建て
- 5,180万円
-
大阪市東住吉区田辺6丁目
-
近鉄南大阪線今川駅
-
-
-

-
- 中古一戸建て
- 5,780万円
-
箕面市彩都粟生北7丁目
-
大阪モノレール彩都彩都西駅
-
-
-

-
- 中古一戸建て
- 3,480万円
-
大阪市鶴見区茨田大宮1丁目
-
大阪市長堀鶴見緑地線門真南駅
-
-
-

-
- 中古一戸建て
- 3,299万円
-
箕面市新稲6丁目
-
阪急電鉄箕面線牧落駅
-
-
-

-
- 中古一戸建て
- 3,299万円
-
箕面市新稲6丁目
-
阪急電鉄箕面線牧落駅
-
-
-

-
- 中古一戸建て
- 3,880万円
-
大阪市住之江区御崎4丁目
-
大阪市四つ橋線住之江公園駅
-
-
-

-
- 中古一戸建て
- 1,980万円
-
大阪市淀川区東三国2丁目
-
大阪市御堂筋線東三国駅
-
- お近くの店舗を探す
-
おすすめ物件
-
-

-
- 中古一戸建て
- 580万円
-
河内長野市楠ケ丘
-
南海電鉄高野線三日市町
-
-
-

-
- 中古一戸建て
- 2,320万円
-
高槻市赤大路町
-
JR東海道線摂津富田
-
-
-

-
- 中古一戸建て
- 3,980万円
-
大阪市都島区友渕町3丁目
-
JRおおさか東線城北公園通
-
-
-

-
- 中古一戸建て
- 4,490万円
-
大阪市住吉区万代東2丁目
-
大阪市御堂筋線西田辺
-
-
-

-
- 中古一戸建て
- 2,980万円
-
高槻市真上町5丁目
-
JR東海道線高槻
-
-
-

-
- 中古一戸建て
- 1,800万円
-
大阪市淀川区三国本町3丁目
-
阪急電鉄宝塚線三国
-
-
-

-
- 中古一戸建て
- 2,890万円
-
高槻市西真上2丁目
-
JR東海道線高槻
-
-
-

-
- 中古一戸建て
- 999万円
-
高槻市津之江北町
-
JR東海道線高槻
-
-
-

-
- 中古一戸建て
- 3,280万円
-
大阪市西成区鶴見橋2丁目
-
JR大阪環状線今宮
-
-
-

-
- 中古一戸建て
- 490万円
-
大阪市住之江区御崎6丁目
-
大阪市四つ橋線住之江公園
-






担当エージェント:藤島 大斗
◆お気軽にお問い合わせください♪