シティタワー梅田東
掲載情報更新日:2025年10月13日 次回更新予定日:2025年10月27日
- 1億7,800万円
-
- 借入ご希望金額
万円 - 借入期間
年 - 借入金利
% - 月々のお支払い金額
円
- 借入ご希望金額
※ 月々のお支払例は目安の試算となりますので、実際の金額とは異なる場合がございます。詳しくは店舗までお問合わせください。
- 大阪市北区本庄西1丁目
-
大阪市谷町線『中崎町』 徒歩6分 (約480m)
大阪市谷町線『天神橋筋六丁目』 徒歩6分 (約480m)
阪急電鉄千里線『天神橋筋六丁目』 徒歩6分 (約480m)
シティタワー梅田東マンション | 物件情報
◆ハウスドゥ天六駅前おすすめ物件です♪
◆大阪メトロ谷町線「中崎町」駅徒歩5分
◆ペット飼育可能♪
物件の設備
- 公営水道
- 下水道
- 都市ガス
- システムキッチン
- 室内洗濯機置場
- 洗面所独立
- バルコニー
- エレベーター
物件の特徴
- 管理人常駐
- 2沿線利用可
- 3沿線以上利用可
- ペット相談
物件詳細情報
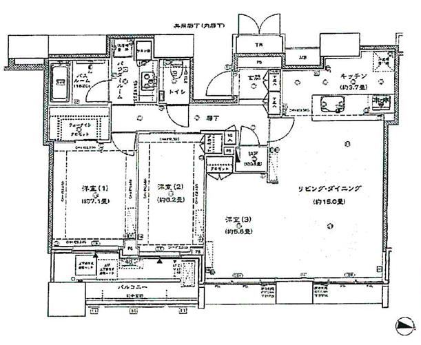
| 価格 | 1億7,800万円 | 間取り | 2LDK |
|---|---|---|---|
| 物件種別 | 中古マンション | ||
| 所在地 | 大阪府大阪市北区本庄西1丁目 | ||
| アクセス |
|
||
| 専有面積 | 壁芯 87.47㎡ | 所在階 | 44階建/43階部分 |
| 主要採光 | バルコニー | 東向8.41㎡ | |
| その他 | |||
| 権利 | 所有権 |
||
| 保証・評価 | |||
| リフォーム | |||
| 総戸数 | 面積 | ||
| 築年月 | 2016年(平成28年)10月築 | 建物構造 | RC |
| 施工会社 | |||
| 管理会社 | 住友不動産建物サービス株式会社 | 管理方式 | 全部委託 常駐管理 |
| 駐車場 | |||
| 都市計画 | 市街化区域 |
用途地域 | 商業(一部準工業 含む) |
| 建ぺい/容積率 | 80%(一部60% 含む) / 600%(一部300% 含む) | 土地国土法 | |
| 法令制限 | |||
| 小学区 | 豊崎本庄小学校 徒歩4分 (約250m) | 中学区 | 豊崎中学校 徒歩12分 (約900m) |
| 現況 | 空 | 引渡 | 相談 |
| 管理費 | 19,495円/月 | 修繕積立金 | 7,170円/月 |
| その他費用 | |||
| 備考 | |||
| 物件番号 | 4324328 | 取引態様 | 媒介 |
取扱店舗情報
| 電話番号 | 06-6881-4360 |
|---|---|
| 所在地 | 〒531-0041 大阪府大阪市北区天神橋7丁目3-2 大山ビル6F |
| 営業時間 | 10:00~19:00 |
| 定休日 | 火曜日・水曜日 |
| 宅建免許番号 | 大阪府知事(3)第56923号 |
| アクセス | 店舗への地図はこちら |

来店ご予約
- 大阪府
マイページ物件数 - 14,853件
大阪府中古マンション新着物件
-
-

-
- 中古マンション
- 3,190万円
-
吹田市春日2丁目
-
北大阪急行南北線緑地公園駅
-
-
-

-
- 収益
- 2,040万円
-
吹田市垂水町3丁目
-
大阪市御堂筋線江坂駅
-
-
-

-
- 収益
- 1,940万円
-
吹田市垂水町3丁目
-
大阪市御堂筋線江坂駅
-
-
-

-
- 収益
- 2,690万円
-
吹田市垂水町3丁目
-
大阪市御堂筋線江坂駅
-
-
-

-
- 中古マンション
- 3,395万円
-
堺市堺区中安井町3丁
-
南海電鉄高野線堺東駅
-
-
-

-
- 中古マンション
- 4,980万円
-
大阪市東成区中道1丁目
-
JR大阪環状線森ノ宮駅
-
-
-

-
- 中古マンション
- 3,090万円
-
豊中市北緑丘3丁目
-
北大阪急行南北線箕面船場阪大前駅
-
- お近くの店舗を探す
-
おすすめ物件
-
-

-
- 中古マンション
- 3,200万円
-
大阪市港区池島3丁目
-
大阪市中央線朝潮橋
-
-
-

-
- 中古マンション
- 950万円
-
泉大津市尾井千原町
-
南海電鉄本線北助松
-
-
-

-
- 中古マンション
- 5,198万円
-
吹田市芳野町
-
大阪市御堂筋線江坂
-
-
-

-
- 中古マンション
- 3,280万円
-
西宮市小松東町3丁目
-
阪神電鉄本線武庫川
-
-
-

-
- 中古マンション
- 290万円
-
茨木市新郡山2丁目
-
JR東海道線茨木
-
-
-

-
- 中古マンション
- 1,480万円
-
泉大津市助松町3丁目
-
南海電鉄本線松ノ浜
-
-
-

-
- 中古マンション
- 6,180万円
-
吹田市広芝町
-
大阪市御堂筋線江坂
-
-
-

-
- 中古マンション
- 2,990万円
-
大阪市住之江区北加賀屋5丁目
-
大阪市四つ橋線北加賀屋
-
-
-

-
- 中古マンション
- 4,890万円
-
吹田市江の木町
-
大阪市御堂筋線江坂
-
-
-

-
- 中古マンション
- 2,580万円
-
大阪市住之江区平林南2丁目
-
南港ポートタウン線(ニュートラム)平林
-



担当エージェント:川村
◆お気軽にお問い合わせください♪