阪急南茨木駅前ハイタウンI棟 茨木市天王2丁目の中古マンション
掲載情報更新日:2025年10月13日 次回更新予定日:2025年10月27日
- 2,380万円
-
- 借入ご希望金額
万円 - 借入期間
年 - 借入金利
% - 月々のお支払い金額
円
- 借入ご希望金額
※ 月々のお支払例は目安の試算となりますので、実際の金額とは異なる場合がございます。詳しくは店舗までお問合わせください。
- 茨木市天王2丁目
-
阪急電鉄京都線『南茨木』 徒歩2分 (約160m)
大阪モノレール『南茨木』 徒歩2分 (約160m)
JR東海道線『茨木』 徒歩24分 (約1870m)
茨木市天王2丁目マンション | 物件情報
◇リノベーション工事完了! ◇2沿線利用可! ◇LDK18帖以上!
住宅ローン・資金計画にお悩みの方、是非当社にご相談ください!
住宅購入・お住み替えにつきもののお悩みを一緒に解決していきましょう!
・頭金0円で購入したい・・・
・駅近くのマンションに住み替えたい・・・
・住宅ローンが通るか不安・・・
・頭金が用意できない・・・
・毎月いくらまで払えるかわからない・・・
など、様々なお悩みをお持ちの方。
お気軽にお申し付け下さい♪
★物件のご内覧は、ご自宅への送迎や指定場所お待合わせでのご案内可。
★キッズスペース完備!DVDおもちゃなどご用意していますので安心してご来店ください。
★お客様専用駐車場完備!お気軽にご来店お待ちいたしております。
物件の設備
- 公営水道
- 公共下水
- 都市ガス
- LDK18畳以上
- 全居室6畳以上
- エレベーター
物件の特徴
- 管理人日勤
- 2沿線利用可
- 駅まで平坦
- 小学校徒歩10分以内
- スーパーが近い
物件詳細情報
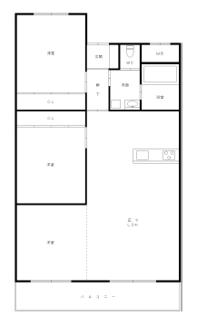
価格 | 2,380万円 | 間取り | 3LDK |
---|---|---|---|
物件種別 | 中古マンション | ||
所在地 | 大阪府茨木市天王2丁目 | ||
アクセス |
|
||
専有面積 | 壁芯 70.94㎡ | 所在階 | 10階建/5階部分 |
主要採光 | 東向 | バルコニー | |
その他 | |||
権利 | 所有権 |
||
保証・評価 | |||
リフォーム | |||
総戸数 | 82戸 | 面積 | |
築年月 | 1975年(昭和50年)02月築 | 建物構造 | SRC |
施工会社 | 株式会社竹中工務店 | ||
管理会社 | 日本ハウズイング株式会社 大阪北支店 | 管理方式 | 全部委託 日勤管理 |
駐車場 | |||
都市計画 | 市街化区域 |
用途地域 | 近隣商業(一部2種住居 含む) |
建ぺい/容積率 | 80% / 300% | 土地国土法 | |
法令制限 | |||
小学区 | 天王小学校 徒歩5分 (約370m) | 中学区 | 天王中学校 徒歩12分 (約890m) |
現況 | 空 | 引渡 | 相談 |
管理費 | 8,200円/月 | 修繕積立金 | 17,300円/月 |
その他費用 | |||
周辺環境 | 阪急南茨木駅 徒歩7分 (約510m) 茨木市立天王小学校 徒歩5分 (約370m) 茨木市立天王中学校 徒歩9分 (約680m) ファミリーマート 茨木天王店 徒歩4分 (約300m) なの花ドラッグストア 南茨木店 徒歩5分 (約340m) セブン-イレブン 茨木沢良宜西店 徒歩5分 (約360m) ローソン南茨木阪急ビル1F店 徒歩5分 (約380m) 阪急オアシス南茨木店 徒歩6分 (約440m) 茨木天王郵便局 徒歩6分 (約440m) サンディ 南茨木店 徒歩7分 (約490m) |
||
備考 | |||
物件番号 | 4392321 | 取引態様 | 媒介 |
取扱店舗情報
ハウスドゥ 阪急茨木市駅南 株式会社エムアイエム 店舗詳細ページへ
電話番号 | 072-697-8701 |
---|---|
所在地 | 〒567-0827 大阪府茨木市稲葉町11-8 ローズビルウチダ1F |
営業時間 | 10:00~19:00 |
定休日 | 水曜日、年末年始 |
宅建免許番号 | 大阪府知事(1)第64466号 |
アクセス | 店舗への地図はこちら |
来店ご予約
大阪府茨木市で価格が似ている物件はこちら
-
- 中古マンション 2023.06.09
-
-
- 2,280万円
-
茨木市沢良宜西1丁目
-
阪急電鉄京都線「南茨木駅」まで徒歩5分
- 2LDK
-
-
- 中古マンション 2023.10.16
-
-
- 2,390万円
-
茨木市天王2丁目
-
阪急電鉄京都線「南茨木駅」まで徒歩2分
- 2LDK
-
-
- 中古マンション 2024.04.14
-
-
- 2,478万円
-
茨木市沢良宜西1丁目
-
阪急電鉄京都線「南茨木駅」まで徒歩5分
- 4LDK
-
-
- 中古マンション 2024.06.24
-
-
- 2,478万円
-
茨木市沢良宜西1丁目
-
阪急電鉄京都線「南茨木駅」まで徒歩4分
- 4LDK
-
-
- 中古マンション 2024.07.14
-
-
- 2,390万円
-
茨木市天王2丁目
-
阪急電鉄京都線「南茨木駅」まで徒歩3分
- 2LDK
-
-
- 中古マンション 2024.09.16
-
-
- 2,280万円
-
茨木市沢良宜西1丁目
-
阪急電鉄京都線「南茨木駅」まで徒歩5分
- 3LDK
-
-
- 中古マンション 2024.09.26
-
-
- 2,478万円
-
茨木市沢良宜西1丁目
-
阪急電鉄京都線「南茨木駅」まで徒歩4分
- 4LDK
-
-
- 中古マンション 2024.10.22
-
-
- 2,390万円
-
茨木市天王2丁目
-
阪急電鉄京都線「南茨木駅」まで徒歩2分
- 2LDK
-
-
- 中古マンション 2024.11.12
-
-
- 2,380万円
-
茨木市天王2丁目
-
阪急電鉄京都線「南茨木駅」まで徒歩3分
- 3LDK
-
-
- 中古マンション 2024.11.16
-
-
- 2,380万円
-
茨木市天王2丁目
-
阪急電鉄京都線「南茨木駅」まで徒歩3分
- 3LDK
-
-
- 中古マンション 2025.01.16
-
-
- 2,290万円
-
茨木市三島町
-
JR東海道線「JR総持寺駅」まで徒歩5分
- 2LDK
-
-
- 中古マンション 2025.01.17
-
-
- 2,290万円
-
茨木市三島町
-
JR東海道線「JR総持寺駅」まで徒歩4分
- 2LDK
-
-
- 中古マンション 2025.01.30
-
-
- 2,390万円
-
茨木市天王2丁目
-
阪急電鉄京都線「南茨木駅」まで徒歩3分
- 2LDK
-
-
- 中古マンション 2025.02.06
-
-
- 2,280万円
-
茨木市東奈良3丁目
-
阪急電鉄京都線「南茨木駅」まで徒歩4分
- 1LDK+S
-
-
- 中古マンション 2025.03.04
-
-
- 2,280万円
-
茨木市美沢町
-
阪急電鉄京都線「南茨木駅」まで徒歩8分
- 2LDK
-
-
- 中古マンション 2025.03.30
-
-
- 2,290万円
-
茨木市水尾3丁目
-
阪急電鉄京都線「南茨木駅」まで徒歩17分
- 2LDK
-
-
- 中古マンション 2025.05.16
-
-
- 2,290万円
-
茨木市東奈良2丁目
-
阪急電鉄京都線「南茨木駅」まで徒歩8分
- 3LDK
-
-
- 中古マンション 2025.05.19
-
-
- 2,480万円
-
茨木市美沢町
-
阪急電鉄京都線「南茨木駅」まで徒歩8分
- 2LDK
-
-
- 中古マンション 2025.05.19
-
-
- 2,478万円
-
茨木市沢良宜西1丁目
-
阪急電鉄京都線「南茨木駅」まで徒歩4分
- 4LDK
-
-
- 中古マンション 2025.05.19
-
-
- 2,280万円
-
茨木市沢良宜西1丁目
-
阪急電鉄京都線「南茨木駅」まで徒歩4分
- 3LDK
-
-
- 中古マンション 2025.05.19
-
-
- 2,380万円
-
茨木市沢良宜西1丁目
-
阪急電鉄京都線「南茨木駅」まで徒歩4分
- 3LDK
-
-
- 中古マンション 2025.05.19
-
-
- 2,280万円
-
茨木市沢良宜西1丁目
-
阪急電鉄京都線「南茨木駅」まで徒歩4分
- 2LDK
-
-
- 中古マンション 2025.05.21
-
-
- 2,380万円
-
茨木市天王2丁目
-
阪急電鉄京都線「南茨木駅」まで徒歩2分
- 2LDK
-
-
- 中古マンション 2025.05.23
-
-
- 2,370万円
-
茨木市東奈良3丁目
-
阪急電鉄京都線「南茨木駅」まで徒歩5分
- 1LDK+S
-
-
- 中古マンション 2025.05.31
-
-
- 2,470万円
-
茨木市天王2丁目
-
阪急電鉄京都線「南茨木駅」まで徒歩2分
- 2LDK
-
-
- 中古マンション 2025.06.13
-
-
- 2,380万円
-
茨木市沢良宜西1丁目
-
阪急電鉄京都線「南茨木駅」まで徒歩3分
- 3LDK
-
-
- 中古マンション 2025.06.23
-
-
- 2,280万円
-
茨木市沢良宜西1丁目
-
阪急電鉄京都線「南茨木駅」まで徒歩4分
- 3LDK
-
-
- 中古マンション 2025.07.13
-
-
- 2,480万円
-
茨木市西駅前町
-
JR東海道線「茨木駅」まで徒歩4分
- 3LDK
-
-
- 中古マンション 2025.07.17
-
-
- 2,390万円
-
茨木市小川町
-
阪急電鉄京都線「南茨木駅」まで徒歩10分
- 2LDK+S
-
-
- 中古マンション 2025.08.17
-
-
- 2,390万円
-
茨木市新中条町
-
阪急電鉄京都線「南茨木駅」まで徒歩12分
- 2LDK
-
-
- 中古マンション 2025.08.19
-
-
- 2,478万円
-
茨木市沢良宜西1丁目
-
阪急電鉄京都線「南茨木駅」まで徒歩3分
- 4LDK
-
-
- 中古マンション 2025.08.22
-
-
- 2,480万円
-
茨木市水尾3丁目
-
阪急電鉄京都線「南茨木駅」まで徒歩17分
- 2LDK
-
-
- 中古マンション 2025.08.23
-
-
- 2,480万円
-
茨木市美沢町
-
阪急電鉄京都線「南茨木駅」まで徒歩9分
- 2LDK
-
-
- 中古マンション 2025.09.01
-
-
- 2,380万円
-
茨木市三島町
-
JR東海道線「JR総持寺駅」まで徒歩4分
- 2LDK
-
-
- 中古マンション 2025.09.04
-
-
- 2,290万円
-
茨木市水尾3丁目
-
阪急電鉄京都線「南茨木駅」まで徒歩15分
- 2LDK
-
-
- 中古マンション 2025.09.04
-
-
- 2,480万円
-
茨木市水尾3丁目
-
阪急電鉄京都線「南茨木駅」まで徒歩17分
- 2LDK
-
-
- 中古マンション 2025.09.15
-
-
- 2,480万円
-
茨木市西駅前町
-
JR東海道線「茨木駅」まで徒歩4分
- 1LDK
-
-
-
中古マンション
2025.09.23
-
-
- 2,480万円
-
茨木市西駅前町
-
JR東海道線「茨木駅」まで徒歩6分
- 1LDK
-
-
中古マンション
2025.09.23
-
-
中古マンション
2025.09.26
-
-
- 2,480万円
-
茨木市西駅前町
-
JR東海道線「茨木駅」まで徒歩4分
- 1LDK
-
-
中古マンション
2025.09.26
-
-
中古マンション
2025.09.27
-
-
- 2,380万円
-
茨木市沢良宜西1丁目
-
阪急電鉄京都線「南茨木駅」まで徒歩5分
- 3LDK
-
-
中古マンション
2025.09.27
-
-
中古マンション
2025.09.27
-
-
- 2,390万円
-
茨木市新中条町
-
JR東海道線「茨木駅」まで徒歩14分
- 2LDK
-
-
中古マンション
2025.09.27
-
-
中古マンション
2025.09.28
-
-
- 2,380万円
-
茨木市美沢町
-
阪急電鉄京都線「南茨木駅」まで徒歩5分
- 3LDK
-
-
中古マンション
2025.09.28
-
-
中古マンション
2025.09.28
-
-
- 2,380万円
-
茨木市美沢町
-
大阪モノレール「南茨木駅」まで徒歩6分
- 3LDK
-
-
中古マンション
2025.09.28
-
-
中古マンション
2025.10.09
-
-
- 2,478万円
-
茨木市美沢町
-
阪急電鉄京都線「南茨木駅」まで徒歩6分
- 4LDK
-
-
中古マンション
2025.10.09
-
-
中古マンション
2025.10.10
-
-
- 2,390万円
-
茨木市新中条町
-
JR東海道線「茨木駅」まで徒歩13分
- 2LDK
-
-
中古マンション
2025.10.10
-
-
中古マンション
2025.10.10
-
-
- 2,478万円
-
茨木市沢良宜西1丁目
-
阪急電鉄京都線「南茨木駅」まで徒歩6分
- 4LDK
-
-
中古マンション
2025.10.10
-
-
中古マンション
2025.10.10
-
-
- 2,390万円
-
茨木市小川町
-
阪急電鉄京都線「南茨木駅」まで徒歩12分
- 2LDK+S
-
-
中古マンション
2025.10.10
-
-
中古マンション
2025.10.10
-
-
- 2,280万円
-
茨木市美沢町
-
阪急電鉄京都線「南茨木駅」まで徒歩11分
- 2LDK
-
-
中古マンション
2025.10.10
-
-
中古マンション
2025.10.10
-
-
- 2,290万円
-
茨木市水尾3丁目
-
阪急電鉄京都線「南茨木駅」まで徒歩16分
- 3LDK
-
-
中古マンション
2025.10.10
-
-
中古マンション
2025.10.11
-
-
- 2,480万円
-
茨木市西駅前町
-
JR東海道線「茨木駅」まで徒歩4分
- 3LDK
-
-
中古マンション
2025.10.11
- 大阪府
マイページ物件数 - 14,310件
大阪府中古マンション新着物件
-
-
-
- 中古マンション
- 2億2,500万円
-
大阪市北区豊崎3丁目
-
大阪市御堂筋線中津駅
-
-
-
-
- 中古マンション
- 4,180万円
-
大阪市此花区西九条1丁目
-
JR大阪環状線西九条駅
-
-
-
-
- 中古マンション
- 1,798万円
-
豊中市上野西4丁目
-
大阪モノレール柴原阪大前駅
-
-
-
-
- 中古マンション
- 2,080万円
-
大阪市淀川区木川東4丁目
-
大阪市御堂筋線新大阪駅
-
-
-
-
- 中古マンション
- 380万円
-
茨木市新郡山2丁目
-
大阪モノレール彩都豊川駅
-
-
-
-
- 中古マンション
- 2,490万円
-
茨木市平田1丁目
-
阪急電鉄京都線茨木市駅
-
-
-
-
- 中古マンション
- 5,090万円
-
箕面市温泉町
-
阪急電鉄箕面線箕面駅
-
- お近くの店舗を探す
-
おすすめ物件
-
-
-
- 中古マンション
- 3,200万円
-
大阪市港区池島3丁目
-
大阪市中央線朝潮橋
-
-
-
-
- 中古マンション
- 6,180万円
-
吹田市広芝町
-
大阪市御堂筋線江坂
-
-
-
-
- 中古マンション
- 1,480万円
-
泉大津市助松町3丁目
-
南海電鉄本線松ノ浜
-
-
-
-
- 中古マンション
- 1,360万円
-
茨木市白川3丁目
-
阪急電鉄京都線茨木市
-
-
-
-
- 中古マンション
- 2,780万円
-
大阪市住吉区墨江4丁目
-
南海電鉄高野線沢ノ町
-
-
-
-
- 中古マンション
- 5,350万円
-
吹田市片山町1丁目
-
JR東海道線吹田
-
-
-
-
- 中古マンション
- 2,680万円
-
茨木市天王2丁目
-
阪急電鉄京都線南茨木
-
-
-
-
- 中古マンション
- 1,580万円
-
吹田市五月が丘東
-
JR東海道線岸辺
-
-
-
-
- 中古マンション
- 3,280万円
-
西宮市小松東町3丁目
-
阪神電鉄本線武庫川
-
-
-
-
- 中古マンション
- 5,280万円
-
茨木市若草町
-
大阪モノレール南茨木
-
住宅ローン・資金計画にお悩みの方、是非当社にご相談ください!住宅購入・お住み替えにつきもののお悩みを一緒に解決していきましょう!お気軽にお申し付け下さい♪