阿倍野シティハイツ 大阪市阿倍野区天王寺町北2丁目の中古マンション
掲載情報更新日:2025年10月28日 次回更新予定日:2025年11月11日
- 3,280万円
-
- 借入ご希望金額
万円 - 借入期間
年 - 借入金利
% - 月々のお支払い金額
円
- 借入ご希望金額
※ 月々のお支払例は目安の試算となりますので、実際の金額とは異なる場合がございます。詳しくは店舗までお問合わせください。
- 大阪市阿倍野区天王寺町北2丁目
-
JR大阪環状線『寺田町』 徒歩5分 (約400m)
大阪市御堂筋線『天王寺』 徒歩11分 (約880m)
近鉄南大阪線『河堀口』 徒歩8分 (約640m)
大阪市阿倍野区天王寺町北2丁目マンション | 物件情報
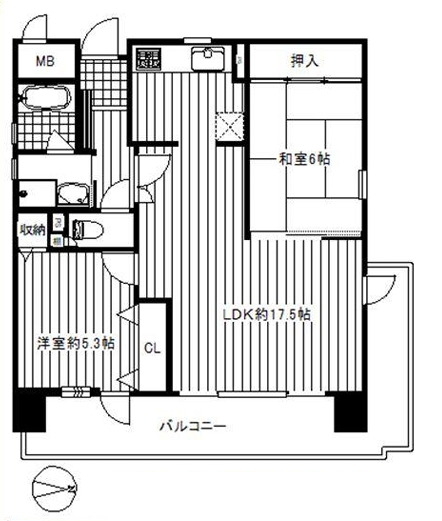
■ 駅近!魅力が詰まったお部屋です ■ ワンフロアで過ごせる快適空間 ■角部屋、LDK広々17帖
◆マンションを買うなら【ハウスドゥ長居公園東】へ!◆
全国700店舗以上を展開し、売買専門店舗数No.1のハウスドゥグループ。
その中でも当店は、不動産売買に特化した専門店舗として、地域密着で信頼あるサービスを提供しています。
特に東住吉区に強く、地元ならではの情報力と提案力が自慢です。学区・周辺環境・資産性など、細かなご希望に対しても的確にご提案可能です。
◇ 新築戸建て・中古住宅
◇ 中古+リフォームのご提案
◇ 投資用物件・収益不動産
◇ 住宅ローン相談・事前審査
◇ 売却・買替え・住み替え相談
ご購入からローン、リフォームまでワンストップで対応可能。お客様専属エージェントが、お客様の理想の住まい探しを全力でサポートします。
さらに、店舗限定の非公開物件も多数ご用意しております。「良い物件が見つからない」とお悩みの方も、ぜひ一度ご相談ください。
◆住宅ローン相談会も随時開催中!
「まずは話だけでも聞いてみたい」そんな方も大歓迎です。
【ハウスドゥ長居公園東】へお問合せください!
無料問い合わせ→【0120-885-123】
物件の設備
- 公営水道
- 下水道
- 都市ガス
- 給湯
- バス
- 浴室に窓
- トイレ
- 室内洗濯機置場
- 洗面所独立
- オートロック
- LDK15畳以上
- 和室
- クローゼット
- 押入
- 全居室収納
- バルコニー
- L字型バルコニー
- 宅配BOX
- エレベーター
物件の特徴
- 南東角部屋
- 四方角部屋
- 小学校徒歩10分以内
- 即入居可
物件詳細情報
| 価格 | 3,280万円 | 間取り | 2LDK |
|---|---|---|---|
| 物件種別 | 中古マンション | ||
| 所在地 | 大阪府大阪市阿倍野区天王寺町北2丁目 | ||
| アクセス |
|
||
| 専有面積 | 壁芯 64.33㎡ | 所在階 | 8階建/3階部分 |
| 主要採光 | 東向 | バルコニー | 東向15.22㎡ |
| その他 | |||
| 権利 | 所有権 |
||
| 保証・評価 | |||
| リフォーム | |||
| 総戸数 | 22戸 | 面積 | |
| 築年月 | 1990年(平成2年)08月築 | 建物構造 | RC |
| 施工会社 | |||
| 管理会社 | 管理方式 | 全部委託 日勤管理 管理組合あり | |
| 駐車場 | |||
| 都市計画 | 用途地域 | ||
| 建ぺい/容積率 | 土地国土法 | ||
| 法令制限 | |||
| 小学区 | 高松小学校 徒歩3分 (約230m) | 中学区 | 文の里中学校 徒歩9分 (約700m) |
| 現況 | 空 | 引渡 | 即 |
| 管理費 | 8,880円/月 | 修繕積立金 | 12,220円/月 |
| その他費用 | |||
| 周辺環境 | 近鉄南大阪線 【河堀口】駅 徒歩8分 (約570m) サンディ 天王寺町店 徒歩9分 (約650m) 桑津北公園 徒歩10分 (約760m) ローソン 桑津店 徒歩11分 (約850m) デイリーカナートイズミヤ 桑津店 徒歩12分 (約910m) 三井住友美章園支店 徒歩15分 (約1160m) 北田辺公園 徒歩15分 (約1140m) セブンイレブン 大阪桑津1丁目店 徒歩13分 (約1040m) |
||
| 備考 | |||
| 物件番号 | 4413737 | 取引態様 | 媒介 |
取扱店舗情報
| 電話番号 | 06-6657-5963 |
|---|---|
| 所在地 | 〒546-0014 大阪府大阪市東住吉区鷹合1丁目13-3 KIDビル1階 |
| 営業時間 | 10:00~19:00 |
| 定休日 | 水曜日 |
| 宅建免許番号 | 大阪府知事(1)第65144号 |
| アクセス | 店舗への地図はこちら |

来店ご予約
大阪府大阪市阿倍野区で価格が似ている物件はこちら
- 大阪府
マイページ物件数 - 15,544件
大阪府中古マンション新着物件
-
-

-
- 中古マンション
- 2,798万円
-
大阪市都島区友渕町1丁目
-
大阪市谷町線都島駅
-
-
-

-
- 中古マンション
- 9,800万円
-
大阪市福島区福島4丁目
-
JR東西線新福島駅
-
-
-

-
- 収益
- 1,940万円
-
東大阪市長田西2丁目
-
近鉄けいはんな線長田駅
-
-
-

-
- 中古マンション
- 2,090万円
-
東大阪市西岩田3丁目
-
近鉄難波・奈良線八戸ノ里駅
-
-
-

-
- 中古マンション
- 1,980万円
-
豊中市向丘2丁目
-
大阪モノレール少路駅
-
-
-

-
- 中古マンション
- 3,990万円
-
吹田市千里山西4丁目
-
北大阪急行南北線緑地公園駅
-
-
-

-
- 中古マンション
- 3,890万円
-
豊中市柴原町2丁目
-
大阪モノレール柴原阪大前駅
-
- お近くの店舗を探す
-
おすすめ物件
-
-

-
- 中古マンション
- 3,200万円
-
大阪市港区池島3丁目
-
大阪市中央線朝潮橋
-
-
-

-
- 中古マンション
- 5,350万円
-
吹田市片山町1丁目
-
JR東海道線吹田
-
-
-

-
- 中古マンション
- 4,298万円
-
大阪市淀川区十八条1丁目
-
大阪市御堂筋線東三国
-
-
-

-
- 中古マンション
- 1,360万円
-
茨木市白川3丁目
-
阪急電鉄京都線茨木市
-
-
-

-
- 中古マンション
- 990万円
-
大阪市住之江区南港中4丁目
-
南港ポートタウン線(ニュートラム)ポートタウン東
-
-
-

-
- 中古マンション
- 1,180万円
-
泉大津市尾井千原町
-
南海電鉄本線北助松
-
-
-

-
- 中古マンション
- 1,250万円
-
茨木市白川3丁目
-
阪急電鉄京都線茨木市
-
-
-

-
- 中古マンション
- 1,350万円
-
貝塚市窪田
-
南海電鉄本線二色浜
-
-
-

-
- 中古マンション
- 750万円
-
大阪市住吉区沢之町2丁目
-
南海電鉄高野線我孫子前
-
-
-

-
- 中古マンション
- 4,980万円
-
吹田市垂水町3丁目
-
大阪市御堂筋線江坂
-





「購入後すぐに不具合があったらどうしよう・・・」
そんな中古住宅の不安解消をハウスドゥがサポート。
◆住宅設備あんしん保証プラス5つの安心サポート!
◇修理無制限
修理回数制限なしOK!契約期間中は、同じ部位の故障も何度でも修理可能です。
◇出張費・工賃無料
出張費、施工料、技術料0円!メーカー保証対象の修理は全て保証いたします。
◇経年劣化対応
消耗品以外なら、住宅設備の経年劣化による故障、自然故障にも対応。
◇事前審査なし
面倒な事前審査は一切ございません。今すぐといったご要望に対応可能です。
◇24時間365日コール受付
お電話一本で、簡単修理受付。全国対応24時間365日、コールセンターにてお電話受付対応いたします。
◆ハウスドゥなら確かな保証のおまもりDoで充実サポート!
◇3つのおまもりで安心プラス!
1.インスペクション
2.既存住宅保険
3.設備機器保証
※詳細、費用については担当者へお問合せください。
築年数や構造等により保証の対象とならない場合がございますので事前に必ずご確認ください。