サーパスシティ宮崎駅前 中古マンション 宮崎市錦町の中古マンション
掲載情報更新日:2026年01月16日 次回更新予定日:2026年01月30日
- 2,580万円
-
- 借入ご希望金額
万円 - 借入期間
年 - 借入金利
% - 月々のお支払い金額
円
- 借入ご希望金額
※ 月々のお支払例は目安の試算となりますので、実際の金額とは異なる場合がございます。詳しくは店舗までお問合わせください。
- 宮崎市錦町
-
JR日豊本線『宮崎』 徒歩5分 (約340m)
JR日豊本線『宮崎神宮』 徒歩32分 (約2540m)
JR日豊本線『南宮崎』 徒歩35分 (約2770m)
宮崎交通『宮崎駅』 徒歩4分 (約320m)
宮崎市錦町マンション | 物件情報
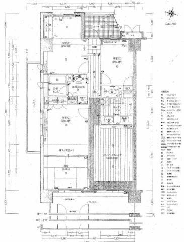
宮崎駅徒歩5分の好立地!角住戸で眺望・通風良好。全室クロス貼替済みの4LDKマンションです。
◆宮崎駅徒歩5分の利便性
駅やアミュプラザまで徒歩圏内。商業施設や教育施設も近く、生活に便利な立地です。
◆北西角住戸・二方バルコニー
開放的な眺望と採光が魅力。風通しの良い住空間で快適な暮らしを実現します。
◆全室クロス貼替済み
約4年前に全室リフォーム済み。室内は丁寧に使用されており、状態良好です。
◆安心の管理体制
人気の分譲マンション「サーパス」シリーズ。共用部の管理も行き届いています。
物件の設備
- 公営水道
- 下水道
- 都市ガス
- 給湯
- ガスコンロ付
- システムキッチン
- バス
- トイレ
- 温水洗浄便座
- 室内洗濯機置場
- 洗髪洗面化粧台
- エアコン
- オートロック
- モニタ付インターホン
- バルコニー
- 宅配BOX
- エレベーター
物件の特徴
- 管理人日勤
物件詳細情報
| 価格 | 2,580万円 | 間取り | 4LDK |
|---|---|---|---|
| 物件種別 | 中古マンション | ||
| 所在地 | 宮崎県宮崎市錦町 | ||
| アクセス |
|
||
| 専有面積 | 91.30㎡ | 所在階 | 14階建/10階部分 |
| 主要採光 | 西向 | バルコニー | 西向20.34㎡ |
| その他 | |||
| 権利 | 所有権 |
||
| 保証・評価 | |||
| リフォーム | |||
| 総戸数 | 196戸 | 面積 | |
| 築年月 | 1998年(平成10年)07月築 | 建物構造 | SRC |
| 施工会社 | |||
| 管理会社 | 管理方式 | 全部委託 日勤管理 | |
| 駐車場 | 【駐車場】空有 料金:1,000円/月 |
||
| 都市計画 | 市街化区域 |
用途地域 | 近隣商業 |
| 建ぺい/容積率 | 80% / 300% | 土地国土法 | |
| 法令制限 | |||
| 小学区 | 江平小学校 徒歩14分 (約1110m) | 中学区 | 宮崎東中学校 徒歩21分 (約1620m) |
| 現況 | 居住中 | 引渡 | 相談 |
| 管理費 | 10,300円/月 | 修繕積立金 | 15,500円/月 |
| その他費用 | |||
| 周辺環境 | マックスバリュ 宮崎駅東店 徒歩4分 (約280m) 宮崎駅 徒歩5分 (約330m) 宮崎駅 徒歩5分 (約340m) ドラッグストアモリ 青葉店 徒歩7分 (約530m) 宮崎銀行 東宮崎支店 徒歩8分 (約580m) 宮崎銀行 宮崎駅前出張所 徒歩6分 (約470m) 宮崎太陽銀行 青葉町支店 徒歩10分 (約730m) 宮崎太陽銀行 本店 徒歩10分 (約730m) コープみやざき 宮脇店 徒歩12分 (約890m) |
||
| 備考 | 専用ポーチ・二方バルコニー完備の北西角住戸で開放感あふれるロケーションも魅力の4LDKタイプ。 宮崎駅・アミュプラザまで徒歩5分程度の市内中心地エリアに立地し、周辺の様々な商業施設や教育施設に恵まれた住環境。現在も人気の高い分譲マンションです。 |
||
| 物件番号 | 4479244 | 取引態様 | 媒介 |
取扱店舗情報
| 電話番号 | 0985-86-7336 |
|---|---|
| 所在地 | 〒889-1607 宮崎県宮崎市清武町加納3丁目16 メモワールII101号室 |
| 営業時間 | 9:00~20:00 |
| 定休日 | 不定休 |
| 宅建免許番号 | 宮崎県知事(1)第4995号 |
| アクセス | 店舗への地図はこちら |

来店ご予約
宮崎県宮崎市で価格が似ている物件はこちら
- 宮崎県
マイページ物件数 - 1,548件
最近見た物件
-
-

-
- 中古マンション
- 3,380万円
-
松戸市新松戸4丁目
-
JR武蔵野線新松戸
-
-
-

-
- 新築一戸建て
- 2,090万円
-
四日市市楠町本郷
-
近鉄名古屋線北楠
-
-
-

-
- 新築一戸建て
- 3,199万円
-
春日井市東野町西2丁目
-
JR中央本線春日井
-
宮崎県中古マンション新着物件
- お近くの店舗を探す
-























担当エージェント:小玉 賢太
宮崎駅近くの希少な4LDK角住戸です。二方バルコニーで採光・通風ともに良好。
全室クロス貼替済みで室内はきれいな状態です。
生活利便性と快適さを兼ね備えた、ファミリーにおすすめの住まいです。