マンハイム加古川 加古川市別府町別府の中古マンション
掲載情報更新日:2026年01月13日 次回更新予定日:2026年01月27日
- 1,980万円
-
- 借入ご希望金額
万円 - 借入期間
年 - 借入金利
% - 月々のお支払い金額
円
- 借入ご希望金額
※ 月々のお支払例は目安の試算となりますので、実際の金額とは異なる場合がございます。詳しくは店舗までお問合わせください。
- 加古川市別府町別府
-
山陽電鉄本線『別府』 徒歩8分 (約580m)
山陽電鉄本線『浜の宮』 徒歩27分 (約2150m)
JR山陽本線『東加古川』 徒歩31分 (約2460m)
加古川市別府町別府マンション | 物件情報
◆家を買うならハウスドゥ 加古川駅南!◆不動産に関するあらゆる問題を一緒に解決していきましょう。
■住宅ローンのご相談無料■平日・土日祝問わず物件案内ツアー実施中!(水曜定休)■販売中の物件全公開をお約束■購入・売却について分かりやすくご説明■近隣や自治会についてなど何でもご相談ください!
物件の設備
- 都市ガス
- バス
- TV付バス
- オートバス
- 追焚機能
- 浴室暖房
- 浴室乾燥機
- 浴室に窓
- シャワー
- トイレ
- B/T別室
- 室内洗濯機置場
- 洗髪洗面化粧台
- 洗面所独立
- ディンプルキー
- モニタ付インターホン
- 防犯カメラ
- フローリング
- 全室フローリング
- フローリング張替
- クローゼット
- 全居室収納
- シューズボックス
- バルコニー
- 3面バルコニー
- 来客用パーキング
- 平面駐車場
- エレベーター
- エレベーター2基
- 駐輪場
- バイク置場
物件の特徴
- 管理人日勤
- 内装リフォーム済
- 角部屋
- 駅まで平坦
- 即入居可
オープンハウス・イベント情報
開催日時:公開中
開催場所:兵庫県加古川市
\\ハ ウ ス ドゥ加古川駅南店のご紹介// ☆加古川駅から徒歩5分!! 駅近なのでお出かけついでに寄っていただけます! 現地まで送迎いたしますので、是非実際に家をご覧いただきたいです! ☆住宅ローンアドバイザーがお手伝いいたします! 住宅ローンは長期間返済をつづける借金であり、お…
物件詳細情報
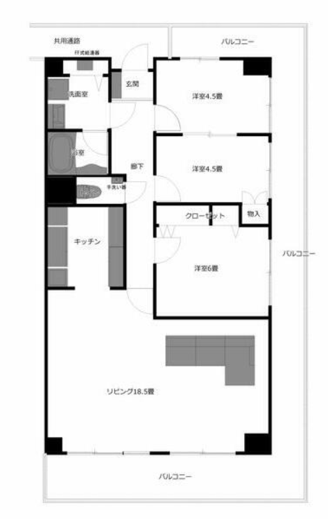
| 価格 | 1,980万円 | 間取り | 3LDK |
|---|---|---|---|
| 物件種別 | 中古マンション | ||
| 所在地 | 兵庫県加古川市別府町別府 | ||
| アクセス |
|
||
| 専有面積 | 壁芯 81.15㎡ | 所在階 | 11階建/11階部分 |
| 主要採光 | 南東向 | バルコニー | 32.13㎡ |
| その他 | |||
| 権利 | 所有権 |
||
| 保証・評価 | |||
| リフォーム | 【水回り】2024年11月 キッチン・浴室・トイレ・洗面・給湯器・給排水管 【内装】2024年11月 全面 ・壁、天井 ・床 ・全室クロス ・建具 ・サッシ |
||
| 総戸数 | 280戸 | 面積 | |
| 築年月 | 1981年(昭和56年)07月築 | 建物構造 | SRC |
| 施工会社 | 長谷川工務店 | ||
| 管理会社 | 管理方式 | 全部委託 日勤管理 管理組合あり | |
| 駐車場 | 【駐車場】空有 料金:5,200円/月 【バイク置き場】あり 料金: 500円/月 【駐輪場】あり 料金: 300円/月 |
||
| 都市計画 | 市街化区域 |
用途地域 | 1種中高 |
| 建ぺい/容積率 | 60% / 200% | 土地国土法 | |
| 法令制限 | |||
| 小学区 | 別府小学校 徒歩15分 (約1160m) | 中学区 | 別府中学校 徒歩9分 (約670m) |
| 現況 | 空 | 引渡 | 即 |
| 管理費 | 5,680円/月 | 修繕積立金 | 9,740円/月 |
| その他費用 | |||
| 周辺環境 | イトーヨーカドー アリオ加古川店 徒歩11分 (約850m) 加古川市立別府中学校 徒歩9分 (約670m) 加古川市立別府小学校 徒歩15分 (約1160m) 別府駅 徒歩8分 (約580m) ヤマダデンキ Tecc LIFE SELECT 加古川本店 徒歩8分 (約620m) A-プライス 加古川別府店 徒歩4分 (約290m) ヤマダデンキ Tecc LIFE SELECT 加古川本店 徒歩8分 (約620m) ドラッグストアコスモス 東加古川店 徒歩5分 (約350m) ファミリーマート 新野辺北町店 徒歩8分 (約610m) |
||
| 備考 | 当日のご案内可能です♪ | ||
| 物件番号 | 4479974 | 取引態様 | 媒介 |
取扱店舗情報
ハウスドゥ 加古川駅南 INFINEX株式会社 店舗詳細ページへ
| 電話番号 | 079-490-7701 |
|---|---|
| 所在地 | 〒675-0064 兵庫県加古川市加古川町溝之口753 兵庫住宅ビル1F |
| 営業時間 | 10:00~18:00 |
| 定休日 | 火曜日、水曜日、GW、夏季休暇、年末年始 |
| 宅建免許番号 | 兵庫県知事(1)第401794号 |
| アクセス | 店舗への地図はこちら |

来店ご予約
兵庫県加古川市で価格が似ている物件はこちら
- 兵庫県
マイページ物件数 - 3,109件
最近見た物件
-
-

-
- 中古マンション
- 320万円
-
苫小牧市美園町1丁目
-
JR室蘭本線苫小牧
-
-
-

-
- 土地
- 2,450万円
-
郡山市安積町荒井字鎗ケ池
-
JR東北本線郡山
-
-
-

-
- 中古一戸建て
- 550万円
-
泉佐野市泉ケ丘5丁目
-
JR阪和線東佐野
-
兵庫県中古マンション新着物件
- お近くの店舗を探す
-
おすすめ物件
-
-

-
- 中古マンション
- 1,890万円
-
姫路市日出町2丁目
-
JR山陽本線東姫路
-
-
-

-
- 中古マンション
- 520万円
-
西宮市田代町
-
阪急電鉄神戸線西宮北口
-
-
-

-
- 中古マンション
- 2,680万円
-
姫路市延末1丁目
-
JR山陽本線姫路
-
-
-

-
- 中古マンション
- 450万円
-
明石市大蔵谷奥
-
JR山陽本線朝霧
-
-
-

-
- 中古マンション
- 300万円
-
姫路市広畑区北河原町
-
JR山陽本線英賀保
-
-
-

-
- 中古マンション
- 1,300万円
-
伊丹市荒牧4丁目
-
JR福知山線中山寺
-
-
-

-
- 中古マンション
- 1,380万円
-
加古川市加古川町平野
-
JR山陽本線加古川
-
-
-

-
- 中古マンション
- 1,180万円
-
宝塚市小林4丁目
-
阪急電鉄今津線小林
-
-
-

-
- 中古マンション
- 3,190万円
-
尼崎市武庫之荘本町2丁目
-
阪急電鉄神戸線武庫之荘
-
-
-

-
- 中古マンション
- 1,650万円
-
伊丹市大鹿4丁目
-
阪急電鉄伊丹線伊丹
-













































担当エージェント:渡邊 隼人
ハウスドゥ加古川駅南店は不動産業界をお客様の為の業界へ変えるために、日々営業しております。
不動産がもっとお客様にとって身近に感じられるようにお客様に寄り添って営業!
全ての不動産情報を公開、お客様に寄り添った提案を心掛けます。
「安心」と「安全」な取引をモットーに店舗ネットワークを拡大、北海道から沖縄まで700店舗を展開中
お客様にとって一番最適な物件、最適な条件でご購入いただけるように購入までの流れや住宅ローン等わからないことがあれば何回でも何度でもお答えさせていただきます
不動産の仕組みやローンの仕組みをしっかりと理解していただいた上で安心安全な取引をしていただくことを心掛けております。
メールでのお問合せの際は、物件について知りたい内容や希望の条件などを合わせて送っていただけますとよりお客様に寄り添ったご提案が可能です!