アバンテ大津ステラヴィラ 大津市平津2丁目の中古マンション
掲載情報更新日:2026年04月13日 次回更新予定日:2026年04月27日
- 1,380万円
-
- 借入ご希望金額
万円 - 借入期間
年 - 借入金利
% - 月々のお支払い金額
円
- 借入ご希望金額
※ 月々のお支払例は目安の試算となりますので、実際の金額とは異なる場合がございます。詳しくは店舗までお問合わせください。
- 大津市平津2丁目
-
京阪電鉄石山坂本線『石山寺』 バス乗車5分 滋賀大西門 停 徒歩1分 (約80m)
JR東海道線『石山』 バス乗車12分 滋賀大西門 停 徒歩1分 (約80m)
京阪電鉄石山坂本線『京阪石山』 バス乗車12分 滋賀大西門 停 徒歩1分 (約80m)
大津市平津2丁目マンション | 物件情報
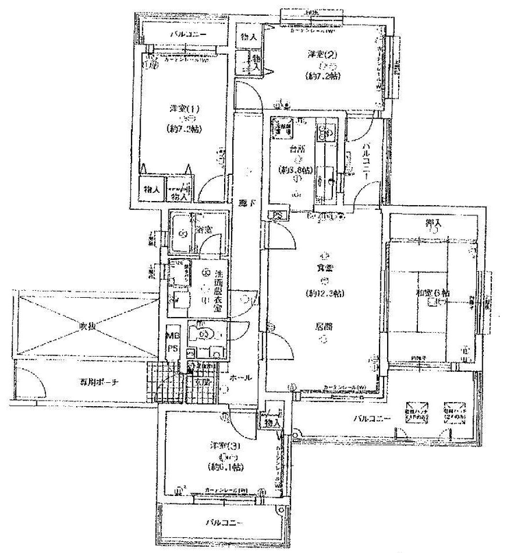
1380万円!バルコニー4ヶ所の4LDK
1380万円でゆとりのある4LDKマンション。LDKは15帖以上あり、家族でゆったり過ごせる空間です。和室付きでお子様の遊び場や来客用としても活用できます。バルコニーは4ヶ所あり、解放感と通風の良さも魅力。ぜひ一度ご覧ください。お気軽にお問い合わせください。
物件の設備
- コンロ三口
- バス
- 浴室に窓
- トイレ
- 室内洗濯機置場
- LDK15畳以上
- 和室
- 2面採光
- 吹抜
- 押入
- 全居室収納
- シューズボックス
- バルコニー
物件の特徴
- 管理人巡回
- 2沿線利用可
- 3沿線以上利用可
- ゴルフ場が近い
- スーパーが近い
物件詳細情報
| 価格 | 1,380万円 | 間取り | 4LDK |
|---|---|---|---|
| 物件種別 | 中古マンション | ||
| 所在地 | 滋賀県大津市平津2丁目 | ||
| アクセス |
|
||
| 専有面積 | 壁芯 95.04㎡ | 所在階 | 5階建/3階部分 |
| 主要採光 | バルコニー | 東向21.02㎡ | |
| その他 | |||
| 権利 | 所有権 |
||
| 保証・評価 | |||
| リフォーム | |||
| 総戸数 | 32戸 | 面積 | |
| 築年月 | 1992年(平成4年)06月築 | 建物構造 | RC |
| 施工会社 | 不動建設株式会社 | ||
| 管理会社 | グローバルコミュニティ株式会社 | 管理方式 | 全部委託 巡回管理 |
| 駐車場 | |||
| 都市計画 | 用途地域 | 1種中高 | |
| 建ぺい/容積率 | 土地国土法 | ||
| 法令制限 | |||
| 小学区 | 石山小学校 徒歩12分 (約910m) | 中学区 | 石山中学校 徒歩20分 (約1535m) |
| 現況 | 空 | 引渡 | 相談 |
| 管理費 | 8,850円/月 | 修繕積立金 | 15,600円/月 |
| その他費用 | |||
| 備考 | ・債権者による抹消同意必要 ・土地建物及び付帯設備の契約不適切責任免除 |
||
| 物件番号 | 4626322 | 取引態様 | 媒介 |
取扱店舗情報
ハウスドゥ 大津石山 株式会社マキ不動産販売 店舗詳細ページへ
| 電話番号 | 077-531-1777 |
|---|---|
| 所在地 | 〒520-0832 滋賀県大津市粟津町2-63 マキ本社ビル |
| 営業時間 | 9:00~18:30 |
| 定休日 | 水曜日・第3火曜日 |
| 宅建免許番号 | 滋賀県知事(5)第3019号 |
| アクセス | 店舗への地図はこちら |

来店ご予約
滋賀県大津市で価格が似ている物件はこちら
- 滋賀県
マイページ物件数 - 2,900件
最近見た物件
-
-

-
- 中古マンション
- 3,650万円
-
福岡市南区筑紫丘1丁目
-
西鉄天神大牟田線大橋
-
-
-

-
- 中古マンション
- 1,700万円
-
高崎市上佐野町
-
上信電鉄上信線佐野のわたし
-
滋賀県中古マンション新着物件
- お近くの店舗を探す
-
おすすめ物件
-
-

-
- 中古マンション
- 2,790万円
-
守山市吉身町
-
JR東海道線守山
-
-
-

-
- 中古マンション
- 2,490万円
-
長浜市大宮町
-
JR北陸本線長浜
-
-
-

-
- 中古マンション
- 1,580万円
-
大津市におの浜4丁目
-
JR東海道線膳所
-
-
-

-
- 中古マンション
- 2,280万円
-
大津市皇子が丘1丁目
-
JR湖西線大津京
-
-
-

-
- 中古マンション
- 3,980万円
-
大津市皇子が丘2丁目
-
JR湖西線大津京
-
-
-

-
- 中古マンション
- 1億3,400万円
-
京都市左京区吉田河原町
-
京阪鴨東線神宮丸太町
-
-
-

-
- 中古マンション
- 5,498万円
-
大津市皇子が丘2丁目
-
JR湖西線大津京
-
-
-

-
- 中古マンション
- 4,180万円
-
大津市茶が崎
-
JR湖西線大津京
-
-
-

-
- 中古マンション
- 2,698万円
-
京都市山科区上花山桜谷
-
京都市営地下鉄東西線東野
-
-
-

-
- 中古マンション
- 3,980万円
-
近江八幡市鷹飼町
-
JR東海道線近江八幡
-










