Loading
  1. TOP>
  2. 一戸建て>
  3. 近畿>
  4. 滋賀県>
  5. 大津市>
  6. 穴太1丁目>
  7. 大津市穴太1丁目の新築戸建

大津市穴太1丁目の新築戸建

掲載情報更新日:2025年09月25日 次回更新予定日:2025年10月09日

  • 3,880万円
    • 借入ご希望金額
      万円
    • 借入期間
    • 借入金利
    • 月々のお支払い金額

※ 月々のお支払例は目安の試算となりますので、実際の金額とは異なる場合がございます。詳しくは店舗までお問合わせください。

  • 大津市穴太1丁目
  • 京阪電鉄石山坂本線『穴太』 徒歩6分 (約420m)
    JR湖西線『唐崎』 徒歩11分 (約855m)
    京阪電鉄石山坂本線『松ノ馬場』 徒歩16分 (約1245m)
取扱会社:ハウスドゥ 家・不動産買取専門店 大津  株式会社マキ不動産販売
  • この物件に資料請求・問い合わせをする
  • ■お電話はこちら 077-531-0120

大津市穴太1丁目一戸建て | 物件情報

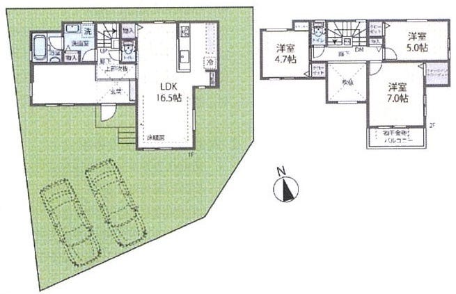
【間取り】

【間取り】

取扱会社
ハウスドゥ 家・不動産買取専門店 大津  
  • この物件に資料請求・問い合わせをする
  • ■お電話はこちら 077-531-0120

物件の設備

  • コンロ三口
  • 浴室に窓
  • トイレ2箇所
  • 室内洗濯機置場
  • 洗面所独立
  • 床暖房
  • LDK15畳以上
  • 2面採光
  • クローゼット2箇所
  • ウォークインクローゼット
  • 全居室収納
  • シューズボックス
  • バルコニー

物件の特徴

  • 2沿線利用可
  • 前道6m以上
  • 南側道路面す
  • 緑豊かな住宅地
  • 2階建
  • 角地
  • 平坦地
  • 即入居可

物件詳細情報

価格 3,880万円 間取り 3LDK
物件種別 新築一戸建て
所在地 滋賀県大津市穴太1丁目 K号棟
アクセス
  • 京阪電鉄石山坂本線『穴太』 徒歩6分 (約420m)
  • JR湖西線『唐崎』 徒歩11分 (約855m)
  • 京阪電鉄石山坂本線『松ノ馬場』 徒歩16分 (約1245m)
建物面積 94.56㎡ 駐車場 あり 普通:2台
築年月 2025年(令和7年)05月築 建築確認 確認サービス第KS124-6110-51911
建物構造 木造 2階建 工法
主要採光 バルコニー
保証・評価
土地面積 公162.82㎡(49.25坪) 接道 東側(公道)幅 約6.0m
南側(公道)幅 約6.0m
私道 セットバック
地目 宅地 地勢 平坦
権利 所有権
都市計画 市街化区域
用途地域 1種中高
建ぺい/容積率 60% / 200% 土地国土法
許可番号 建築基準法
法令制限 法22条区域・第2種高度地区
小学区 唐崎小学校 徒歩18分 (約1400m) 中学区 唐崎中学校 徒歩13分 (約1000m)
現況 引渡
その他費用
備考 火災保険:登記業者指定あり
物件番号 4289735 取引態様 媒介

取扱店舗情報

ハウスドゥ 家・不動産買取専門店 大津  株式会社マキ不動産販売 店舗詳細ページへ

電話番号 077-531-0120
所在地 〒520-0821
滋賀県大津市湖城が丘1番13号 マキトラストビル膳所
営業時間 9:00~18:30
定休日 第3火曜日、水曜日
宅建免許番号 滋賀県知事(5)第3019号
アクセス 店舗への地図はこちら

ハウスドゥ  家・不動産買取専門店  大津の外観

この物件に関する資料請求・お問合せ

077-531-0120

お問い合わせの際に「ホームページを見た」といっていただくとお話がスムーズになります。

来店ご予約

ウィンドウを閉じる

ハウスドゥ 家・不動産買取専門店 大津  株式会社マキ不動産販売への地図

  • ハウスドゥ  家・不動産買取専門店  大津の地図
  • ハウスドゥ  家・不動産買取専門店  大津の外観

GoogleMapで地図を見る

ウィンドウを閉じる

滋賀県大津市で価格が似ている物件はこちら

戻る

次へ

滋賀県大津市の 新築一戸建て 一覧から探す

滋賀県大津市で種別を変更して探す

滋賀県
マイページ物件数
2,801

マイページサービス

新規登録(無料)
  • 物件探しがもっと便利に
  • 希望情報をいち早くお届け
  • マイページ物件が閲覧可能

最近見た物件

滋賀県新築一戸建て新着物件

お近くの店舗を探す

おすすめ物件

無料アプリ