大津市国分1丁目の新築戸建
NEW 10.02掲載情報更新日:2025年10月02日 次回更新予定日:2025年10月16日
- 3,898万円
-
- 借入ご希望金額
万円 - 借入期間
年 - 借入金利
% - 月々のお支払い金額
円
- 借入ご希望金額
※ 月々のお支払例は目安の試算となりますので、実際の金額とは異なる場合がございます。詳しくは店舗までお問合わせください。
- 大津市国分1丁目
-
JR東海道線『石山』 徒歩22分 (約1760m)
京阪電鉄石山坂本線『唐橋前』 徒歩19分 (約1520m)
京阪電鉄石山坂本線『京阪石山』 徒歩22分 (約1760m)
大津市国分1丁目一戸建て | 物件情報
★JR・京阪2沿線利用可★教育施設・スーパー徒歩圏内に揃います★収納充実★
物件の設備
- 電気
- 上水道
- 公営水道
- 下水道
- 公共下水
- 側溝
- 都市ガス
- コンロ三口
- グリル
- カウンターキッチン
- システムキッチン
- バス
- ユニットバス
- トイレ
- トイレ2箇所
- 室内洗濯機置場
- 洗面所独立
- リビング階段
- モニタ付インターホン
- LDK20畳以上
- フローリング
- クローゼット
- ウォークインクローゼット
- シューズボックス
物件の特徴
- 2沿線利用可
- 前道6m以上
- 南側道路面す
- スーパーが近い
- 陽当り良好
- 2階建
物件詳細情報
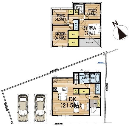
価格 | 3,898万円 | 間取り | 4LDK |
---|---|---|---|
物件種別 | 新築一戸建て | ||
所在地 | 滋賀県大津市国分1丁目 | ||
アクセス |
|
||
建物面積 | 105.16㎡ | 駐車場 | あり 普通:2台 |
築年月 | 2026年(令和8年)01月予定 | 建築確認 | 第R07確認建築IPEC50074号 |
建物構造 | 木造 2階建 | 工法 | |
主要採光 | バルコニー | ||
保証・評価 | |||
土地面積 | 公155.8㎡(47.12坪) | 接道 | 南側(公道)幅 約7.1m 間口 約15.71m |
私道 | セットバック | ||
地目 | 宅地 | 地勢 | |
権利 | 所有権 |
||
都市計画 | 市街化区域 |
用途地域 | 1種住居 |
建ぺい/容積率 | 60% / 200% | 土地国土法 | |
許可番号 | 建築基準法 | ||
法令制限 | 法22条区域・第3種高度地区 | ||
小学区 | 晴嵐小学校 徒歩12分 (約960m) | 中学区 | 北大路中学校 徒歩8分 (約600m) |
現況 | 建築中 | 引渡 | 期日指定:2026年01月下旬 |
その他費用 | |||
周辺環境 | ぐろうすきっず北大路保育園 徒歩5分 (約390m) 晴嵐幼稚園 徒歩17分 (約1310m) 晴嵐小学校 徒歩12分 (約960m) 北大路中学校 徒歩8分 (約600m) フレスコ国分店 徒歩5分 (約380m) ファミリーマート 大津国分店 徒歩3分 (約170m) スギドラッグ 石山店 徒歩23分 (約1770m) |
||
備考 | ■越境物:本物件東側隣地の樋が越境 ■公簿面積:155.80坪、仮測量:150.85坪 |
||
物件番号 | 4432898 | 取引態様 | 媒介 |
取扱店舗情報
ハウスドゥ 大津石山 株式会社マキ不動産販売 店舗詳細ページへ
電話番号 | 077-531-1777 |
---|---|
所在地 | 〒520-0832 滋賀県大津市粟津町2-63 マキ本社ビル |
営業時間 | 9:00~18:30 |
定休日 | 水曜日・第3火曜日 |
宅建免許番号 | 滋賀県知事(5)第3019号 |
アクセス | 店舗への地図はこちら |
来店ご予約
滋賀県大津市で価格が似ている物件はこちら
- 滋賀県
マイページ物件数 - 2,801件
最近見た物件
-
-
-
- 新築一戸建て
- 5,699万円
-
久留米市日ノ出町
-
JR久大本線久留米
-
-
-
-
- 新築一戸建て
- 2,288万円
-
大分市久原南1丁目
-
JR日豊本線坂ノ市
-
-
-
-
- 新築一戸建て
- 4,680万円
-
春日市下白水南2丁目
-
JR博多南線博多南
-
滋賀県新築一戸建て新着物件
- お近くの店舗を探す
-
おすすめ物件
-
-
-
- 新築一戸建て
- 2,670万円
-
大津市水明1丁目
-
JR湖西線小野
-
-
-
-
- 新築一戸建て
- 3,095万円
-
草津市矢橋町
-
JR東海道線南草津
-
-
-
-
- 新築一戸建て
- 4,298万円
-
京都市山科区北花山中道町
-
京都市営地下鉄東西線御陵
-
-
-
-
- 新築一戸建て
- 3,598万円
-
守山市播磨田町
-
JR東海道線守山
-
-
-
-
- 新築一戸建て
- 3,690万円
-
近江八幡市加茂町
-
JR東海道線近江八幡
-
-
-
-
- 新築一戸建て
- 3,690万円
-
東近江市八日市金屋2丁目
-
近江鉄道本線八日市
-
-
-
-
- 新築一戸建て
- 3,298万円
-
大津市中庄1丁目
-
京阪電鉄石山坂本線中ノ庄
-
-
-
-
- 新築一戸建て
- 3,590万円
-
近江八幡市安土町常楽寺
-
JR東海道線安土
-
-
-
-
- 新築一戸建て
- 4,998万円
-
大津市梅林2丁目
-
JR東海道線大津
-
-
-
-
- 新築一戸建て
- 4,988万円
-
大津市国分1丁目
-
JR東海道線石山
-