福山市神辺町大字川北の新築戸建
掲載情報更新日:2025年09月24日 次回更新予定日:2025年10月08日
- 2,597万円
-
- 借入ご希望金額
万円 - 借入期間
年 - 借入金利
% - 月々のお支払い金額
円
- 借入ご希望金額
※ 月々のお支払例は目安の試算となりますので、実際の金額とは異なる場合がございます。詳しくは店舗までお問合わせください。
- 福山市神辺町大字川北
-
JR福塩線『湯田村』 徒歩14分 (約1120m)
JR福塩線『神辺』 徒歩17分 (約1360m)
『神辺駅前バス停』 徒歩17分 (約1360m)
福山市神辺町大字川北一戸建て | 物件情報
★閑静な住宅地 ★キッチンから洗面台への動線もスムーズな間取り
※マウスを乗せると画像が切り替わります。
物件の設備
- 電気
- オール電化
- 公営水道
- 食器洗浄乾燥機
- 食品庫
- IHクッキングヒータ
- コンロ三口
- システムキッチン
- バス
- トイレ
- 温水洗浄便座
- 室内洗濯機置場
- 洗髪洗面化粧台
- 省エネ給湯器
- モニタ付インターホン
- 複層ガラス
- シューズインクローク
- サンルーム
物件の特徴
- 市街地が近い
- 2階建
- フラット35Sに対応
物件詳細情報
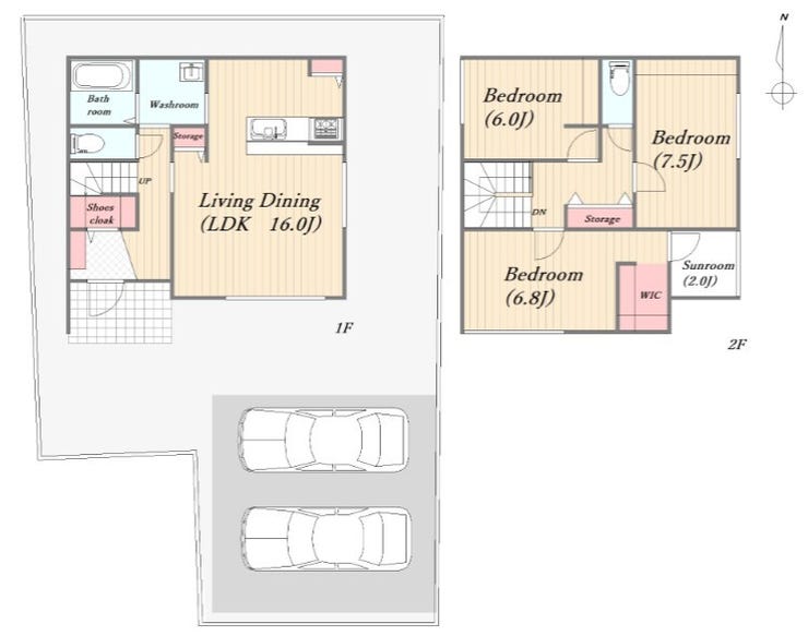
価格 | 2,597万円 | 間取り | 3LDK |
---|---|---|---|
物件種別 | 新築一戸建て | ||
所在地 | 広島県福山市神辺町大字川北 | ||
アクセス |
|
||
建物面積 | 公96.47㎡ | 駐車場 | あり 普通:2台 |
築年月 | 2025年(令和7年)06月築 | 建築確認 | 第R06認広建セ02751号 |
建物構造 | 木造 2階建 | 工法 | |
主要採光 | バルコニー | ||
保証・評価 | |||
土地面積 | 公167.96㎡(50.80坪) | 接道 | |
私道 | セットバック | 無 | |
地目 | 宅地 | 地勢 | 平坦 |
権利 | 所有権 |
||
都市計画 | 調整区域 開発許可等による分譲地内 |
用途地域 | 指定無 |
建ぺい/容積率 | 70% / 200% | 土地国土法 | |
許可番号 | 建築基準法 | ||
法令制限 | 都市再生特別地区・景観法・宅地造成工事規制区域 | ||
小学区 | 神辺小学校 徒歩21分 (約1680m) | 中学区 | 神辺西中学校 徒歩16分 (約1280m) |
現況 | 完工済 | 引渡 | 相談 |
その他費用 | |||
備考 | ★閑静な住宅地 ★キッチンから洗面台への動線もスムーズな間取り ★シューズクロークや収納も充実しています。 |
||
物件番号 | 4316868 | 取引態様 | 媒介 |
取扱店舗情報
ハウスドゥ 福山東インター南 株式会社HOME'S 店舗詳細ページへ
電話番号 | 084-959-3566 |
---|---|
所在地 | 〒721-0961 広島県福山市明神町2丁目8-2 |
営業時間 | 10:30~17:30 |
定休日 | 水曜日、GW、お盆休み、年末年始 |
宅建免許番号 | 広島県知事(4)第9856号 |
アクセス | 店舗への地図はこちら |
来店ご予約
広島県福山市で価格が似ている物件はこちら
-
- 新築一戸建て 2024.05.09
-
-
- 2,682万円
-
福山市春日町3丁目
-
JR山陽本線「東福山駅」まで車10分
- 4LDK
-
-
- 新築一戸建て 2024.05.25
-
-
- 2,598万円
-
福山市神村町
-
JR山陽本線「松永駅」まで徒歩25分
- 4LDK+S
-
-
- 新築一戸建て 2024.05.25
-
-
- 2,598万円
-
福山市神村町
-
JR山陽本線「松永駅」まで徒歩25分
- 4LDK+S
-
-
- 新築一戸建て 2024.06.06
-
-
- 2,600万円
-
福山市御幸町大字下岩成
-
JR福塩線「駅家駅」まで車8分
- 3LDK
-
-
- 新築一戸建て 2024.07.01
-
-
- 2,520万円
-
福山市御幸町大字下岩成
-
中国バス尾部まで徒歩7分
- 2LDK
-
-
- 新築一戸建て 2024.07.29
-
-
- 2,690万円
-
福山市高西町川尻
-
JR山陽本線「松永駅」まで徒歩39分
- 4LDK
-
-
- 新築一戸建て 2024.07.29
-
-
- 2,690万円
-
福山市高西町川尻
-
JR山陽本線「松永駅」まで徒歩39分
- 4LDK
-
-
- 新築一戸建て 2024.08.04
-
-
- 2,628万円
-
福山市神辺町大字新徳田
-
JR福塩線「道上駅」まで徒歩16分
- 4LDK
-
-
- 新築一戸建て 2024.09.21
-
-
- 2,598万円
-
福山市神村町
-
JR山陽本線「松永駅」まで徒歩12分
- 4LDK
-
-
- 新築一戸建て 2024.09.24
-
-
- 2,598万円
-
福山市神村町
-
JR山陽本線「松永駅」まで徒歩12分
- 4LDK
-
-
- 新築一戸建て 2024.11.21
-
-
- 2,590万円
-
福山市高西町川尻
-
JR山陽本線「東尾道駅」まで車7分
- 4LDK
-
-
- 新築一戸建て 2024.11.21
-
-
- 2,690万円
-
福山市高西町川尻
-
JR山陽本線「東尾道駅」まで車7分
- 4LDK
-
-
- 新築一戸建て 2024.11.25
-
-
- 2,598万円
-
福山市神村町
-
JR山陽本線「松永駅」まで徒歩12分
- 4LDK
-
-
- 新築一戸建て 2025.01.09
-
-
- 2,598万円
-
福山市神村町
-
JR山陽本線「松永駅」まで徒歩12分
- 4LDK
-
-
- 新築一戸建て 2025.02.05
-
-
- 2,580万円
-
福山市新涯町4丁目
-
JR山陽本線「福山駅」バス乗車16分 バス停「中国バス箕沖行西三の川」まで徒歩7分
- 4LDK+S
-
-
- 新築一戸建て 2025.02.12
-
-
- 2,580万円
-
福山市新涯町4丁目
-
JR山陽本線「東福山駅」まで車15分
- 4LDK
-
-
- 新築一戸建て 2025.02.14
-
-
- 2,596万円
-
福山市南今津町
-
JR山陽本線「松永駅」まで徒歩28分
- 3LDK
-
-
- 新築一戸建て 2025.03.03
-
-
- 2,580万円
-
福山市新涯町
-
JR山陽本線「福山駅」バス乗車16分 バス停「福山駅西三の川」まで徒歩7分
- 4LDK+S
-
-
- 新築一戸建て 2025.03.27
-
-
- 2,580万円
-
福山市新涯町4丁目
-
JR山陽本線「福山駅」バス乗車16分 バス停「福山駅西三の川」まで徒歩7分
- 4LDK+S
-
-
- 新築一戸建て 2025.03.28
-
-
- 2,597万円
-
福山市神辺町大字川北
-
JR福塩線「湯田村駅」まで徒歩12分
- 3LDK
-
-
- 新築一戸建て 2025.03.28
-
-
- 2,680万円
-
福山市大門町1丁目
-
JR山陽本線「大門駅」まで徒歩7分
- 3LDK
-
-
- 新築一戸建て 2025.03.28
-
-
- 2,680万円
-
福山市大門町1丁目
-
JR山陽本線「大門駅」まで徒歩7分
- 4LDK
-
-
- 新築一戸建て 2025.03.29
-
-
- 2,680万円
-
福山市大門町1丁目
-
JR山陽本線「大門駅」まで徒歩10分
- 3LDK
-
-
- 新築一戸建て 2025.03.29
-
-
- 2,680万円
-
福山市大門町1丁目
-
JR山陽本線「大門駅」まで徒歩10分
- 4LDK
-
-
- 新築一戸建て 2025.04.16
-
-
- 2,499万円
-
福山市加茂町字中野
-
JR福塩線「道上駅」まで車6分
- 3LDK+S
-
-
- 新築一戸建て 2025.04.16
-
-
- 2,597万円
-
福山市加茂町字中野1丁目
-
JR福塩線「道上駅」まで車8分
- 3LDK
-
-
- 新築一戸建て 2025.04.16
-
-
- 2,646万円
-
福山市神辺町字下御領
-
井原鉄道「御領駅」まで徒歩12分
- 3LDK+S
-
-
- 新築一戸建て 2025.04.17
-
-
- 2,548万円
-
福山市神辺町字下御領
-
井原鉄道「御領駅」まで徒歩12分
- 4LDK
-
-
- 新築一戸建て 2025.04.17
-
-
- 2,548万円
-
福山市神辺町字下御領
-
井原鉄道「御領駅」まで徒歩12分
- 3LDK
-
-
- 新築一戸建て 2025.04.21
-
-
- 2,520万円
-
福山市御幸町大字下岩成
-
JR福塩線「万能倉駅」まで徒歩25分
- 2LDK
-
-
- 新築一戸建て 2025.04.21
-
-
- 2,550万円
-
福山市御幸町大字森脇
-
JR福塩線「万能倉駅」まで車7分
- 4LDK+S
-
-
- 新築一戸建て 2025.04.22
-
-
- 2,597万円
-
福山市神辺町大字川北
-
JR福塩線「湯田村駅」まで徒歩12分
- 3LDK
-
-
- 新築一戸建て 2025.06.24
-
-
- 2,580万円
-
福山市能島3丁目
-
中国バス幕山団地線幕山口バス停まで徒歩6分
- 3LDK
-
-
- 新築一戸建て 2025.06.24
-
-
- 2,680万円
-
福山市大門町1丁目
-
JR山陽本線「大門駅」まで徒歩10分
- 3LDK
-
-
- 新築一戸建て 2025.06.24
-
-
- 2,680万円
-
福山市大門町1丁目
-
JR山陽本線「大門駅」まで徒歩10分
- 4LDK
-
-
- 新築一戸建て 2025.06.27
-
-
- 2,590万円
-
福山市幕山台1丁目
-
JR山陽本線「大門駅」まで車8分
- 4LDK
-
-
- 新築一戸建て 2025.06.27
-
-
- 2,690万円
-
福山市幕山台1丁目
-
JR山陽本線「大門駅」まで車8分
- 4LDK
-
-
- 新築一戸建て 2025.07.21
-
-
- 2,580万円
-
福山市新涯町
-
JR山陽本線「福山駅」バス乗車16分 バス停「福山駅西三の川」まで徒歩7分
- 4LDK+S
-
-
- 新築一戸建て 2025.08.16
-
-
- 2,596万円
-
福山市南今津町
-
JR山陽本線「松永駅」まで徒歩28分
- 3LDK
-
-
-
新築一戸建て
2025.09.14
-
-
- 2,580万円
-
福山市新市町大字宮内
-
JR福塩線「新市駅」まで徒歩17分
- 3LDK
-
-
新築一戸建て
2025.09.14
-
-
新築一戸建て
2025.09.20
-
-
- 2,580万円
-
福山市千田町大字千田
-
JR福塩線「横尾駅」まで徒歩33分
- 3LDK+S
-
-
新築一戸建て
2025.09.20
-
-
新築一戸建て
2025.09.20
-
-
- 2,580万円
-
福山市千田町大字千田
-
JR福塩線「横尾駅」まで徒歩37分
- 3LDK
-
-
新築一戸建て
2025.09.20
-
-
新築一戸建て
2025.09.20
-
-
- 2,580万円
-
福山市千田町大字千田
-
JR福塩線「横尾駅」まで徒歩37分
- 3LDK
-
-
新築一戸建て
2025.09.20
-
-
新築一戸建て
2025.09.27
-
-
- 2,580万円
-
福山市新市町大字宮内
-
JR福塩線「戸手駅」まで徒歩28分
- 3LDK
-
-
新築一戸建て
2025.09.27
- 広島県
マイページ物件数 - 4,609件
最近見た物件
-
-
-
- 中古一戸建て
- 2,050万円
-
多気郡明和町大字斎宮
-
近鉄山田鳥羽志摩線斎宮
-
-
-
-
- 新築一戸建て
- 3,288万円
-
筑紫野市二日市北6丁目
-
西鉄天神大牟田線西鉄二日市
-
-
-
-
- 新築一戸建て
- 2,280万円
-
羽島郡笠松町円城寺
-
名鉄名古屋本線笠松
-
広島県新築一戸建て新着物件
-
-
-
- 新築一戸建て
- 3,480万円
-
福山市加茂町字上加茂
-
JR福塩線道上駅
-
-
-
-
- 新築一戸建て
- 3,480万円
-
福山市加茂町字上加茂
-
JR福塩線道上駅
-
-
-
-
- 新築一戸建て
- 5,480万円
-
広島市南区宇品御幸4丁目
-
広島電鉄宇品線宇品四丁目駅
-
-
-
-
- 新築一戸建て
- 2,480万円
-
福山市新市町大字宮内
-
JR福塩線戸手駅
-
-
-
-
- 新築一戸建て
- 2,480万円
-
福山市新市町大字宮内
-
JR福塩線戸手駅
-
-
-
-
- 新築一戸建て
- 2,580万円
-
福山市新市町大字宮内
-
JR福塩線戸手駅
-
-
-
-
- 新築一戸建て
- 3,280万円
-
広島市東区牛田早稲田2丁目
-
広島電鉄 6号線牛田早稲田三丁目バス停
-
- お近くの店舗を探す
-
福山・尾道・三原の不動産売却・購入のご相談はハウスドゥ福山東インター南店へお任せください!