倉敷市片島町の新築戸建
掲載情報更新日:2025年10月27日 次回更新予定日:2025年11月10日
- 3,790万円
-
- 借入ご希望金額
万円 - 借入期間
年 - 借入金利
% - 月々のお支払い金額
円
- 借入ご希望金額
※ 月々のお支払例は目安の試算となりますので、実際の金額とは異なる場合がございます。詳しくは店舗までお問合わせください。
- 倉敷市片島町
-
JR山陽本線『西阿知』 徒歩22分 (約1760m)
水島臨海鉄道『西富井』 徒歩33分 (約2640m)
水島臨海鉄道『福井』 徒歩41分 (約3280m)
倉敷市片島町一戸建て | 物件情報
★サンルームにも、洋室にも使える部屋がある間取り★
駐車場2台ぶんあり(車種・駐車方法による)
・ゴミステーション1/8持分有
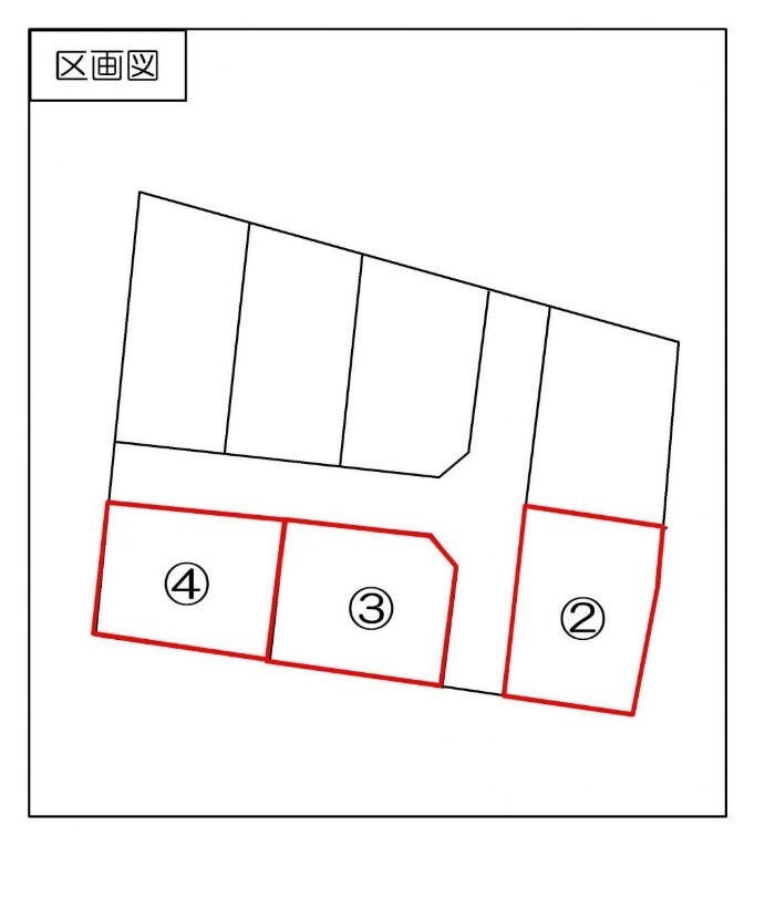
・延長敷地無償譲渡有、③⑤⑥号地の地役権設定有
・5号地延長敷地へ地役権設定有
・狭小地団地協定あり。営業担当にお尋ねください。
物件の設備
- 電気
- オール電化
- 上水道
- 公営水道
- 下水道
- 公共下水
- プロパンガス
- 個別プロパン
- 浄水器
- 食器洗浄乾燥機
- IHクッキングヒータ
- カウンターキッチン
- システムキッチン
- バス1坪以上
- 浴室乾燥機
- 浴室に窓
- トイレ2箇所
- 温水洗浄便座
- 洗髪洗面化粧台
- エアコン2基
- 照明器具
- 家具付
- 省エネ給湯器
- モニタ付インターホン
- LDK18畳以上
- 和室
- 吹抜
- 複層ガラス
- 全居室複層ガラス
- ウォークインクローゼット
- サンルーム
物件の特徴
- セキュリティ充実
- 地盤調査済
- 陽当り良好
- 2階建
- 区画整理地内
- 即入居可
物件詳細情報
| 価格 | 3,790万円 | 間取り | 3LDK+S |
|---|---|---|---|
| 物件種別 | 新築一戸建て | ||
| 所在地 | 岡山県倉敷市片島町 4号地 | ||
| アクセス |
|
||
| 建物面積 | 110.27㎡ | 駐車場 | あり |
| 築年月 | 2025年(令和7年)05月築 | 建築確認 | 第HP04-3963373号 |
| 建物構造 | 木造 2階建 | 工法 | |
| 主要採光 | バルコニー | ||
| 保証・評価 | |||
| 分譲情報 | 【販売戸数】:3戸 |
||
| 土地面積 | 150.1㎡(45.40坪) | 接道 | 北側(私道)幅 約4.5m |
| 私道 | セットバック | ||
| 地目 | 宅地 | 地勢 | |
| 権利 | 所有権 |
||
| 都市計画 | 市街化区域 |
用途地域 | 1種住居 |
| 建ぺい/容積率 | 60% / 180% | 土地国土法 | |
| 許可番号 | 建築基準法 | ||
| 法令制限 | |||
| 小学区 | 西阿知小学校 徒歩17分 (約1330m) | 中学区 | 倉敷第一中学校 徒歩21分 (約1650m) |
| 現況 | 完工済 | 引渡 | 即 |
| その他費用 | |||
| 周辺環境 | ファミリーマート倉敷片島店 徒歩12分 (約900m) ニシナフードバスケット中島店 徒歩14分 (約1120m) ザグザグ西原店 徒歩17分 (約1340m) 倉敷大橋郵便局 徒歩17分 (約1340m) 倉敷市立西阿知幼稚園 徒歩17分 (約1290m) 倉敷市立西阿知小学校 徒歩18分 (約1370m) 中国銀行西阿知支店 徒歩18分 (約1440m) コメダ珈琲倉敷中島店 徒歩17分 (約1310m) 西阿知駅 徒歩22分 (約1760m) |
||
| 備考 | ★サンルームにも、洋室にも使える部屋がある間取り★ 駐車場2台ぶんあり(車種・駐車方法による) ・ゴミステーション1/8持分有 ・延長敷地無償譲渡有、③⑤⑥号地の地役権設定有 ・5号地延長敷地へ地役権設定有 道路 北側(4.50m)私道負担有 ・狭小地団地協定あり。営業担当にお尋ねください。 |
||
| 物件番号 | 4337959 | 取引態様 | 媒介 |
取扱店舗情報
ハウスドゥ 倉敷駅東 株式会社アールイープロジェクト 店舗詳細ページへ
| 電話番号 | 086-424-6400 |
|---|---|
| 所在地 | 〒710-0003 岡山県倉敷市平田681-4 |
| 営業時間 | 9:00~18:00 |
| 定休日 | 水曜日、年末年始 |
| 宅建免許番号 | 岡山県知事(2)第5855号 |
| アクセス | 店舗への地図はこちら |

来店ご予約
岡山県倉敷市で価格が似ている物件はこちら
- 岡山県
マイページ物件数 - 4,334件
最近見た物件
-
-

-
- 中古一戸建て
- 2,580万円
-
綾部市川糸町北古屋敷
-
JR山陰本線綾部
-
岡山県新築一戸建て新着物件
- お近くの店舗を探す
-
おすすめ物件
-
-

-
- 新築一戸建て
- 4,980万円
-
総社市中央1丁目
-
JR伯備線総社
-
-
-

-
- 新築一戸建て
- 3,080万円
-
岡山市北区庭瀬
-
JR山陽本線庭瀬
-
-
-

-
- 新築一戸建て
- 2,880万円
-
岡山市中区山崎
-
JR赤穂線大多羅
-
-
-

-
- 新築一戸建て
- 2,598万円
-
津山市高野本郷
-
JR因美線高野
-
-
-

-
- 新築一戸建て
- 2,950万円
-
岡山市北区今保
-
JR山陽本線庭瀬
-
-
-

-
- 新築一戸建て
- 2,880万円
-
岡山市中区湊
-
岡山電軌東山本線東山岡電ミュージアム
-
-
-

-
- 新築一戸建て
- 2,780万円
-
岡山市中区湊
-
岡山電軌東山本線東山岡電ミュージアム
-
-
-

-
- 新築一戸建て
- 2,880万円
-
岡山市南区福富中2丁目
-
JR宇野線備前西市
-
-
-

-
- 新築一戸建て
- 2,880万円
-
岡山市南区浜野4丁目
-
JR宇野線備前西市
-
-
-

-
- 新築一戸建て
- 3,380万円
-
岡山市北区撫川
-
JR山陽本線庭瀬
-




























