光市虹ケ丘4丁目の新築戸建
掲載情報更新日:2026年02月17日 次回更新予定日:2026年03月03日
- 2,280万円
-
- 借入ご希望金額
万円 - 借入期間
年 - 借入金利
% - 月々のお支払い金額
円
- 借入ご希望金額
※ 月々のお支払例は目安の試算となりますので、実際の金額とは異なる場合がございます。詳しくは店舗までお問合わせください。
- 光市虹ケ丘4丁目
-
JR山陽本線『光』 徒歩16分 (約1280m)
光市虹ケ丘4丁目一戸建て | 物件情報
閑静な住宅街の新築物件です。駐車場は2台可能。
各部屋に収納も確保。広々バルコニーも快適です。
物件の設備
- 上水道
- 下水道
- 都市ガス
- バルコニー
物件の特徴
- 2階建
- 建設住宅性能評価付
- 設計住宅性能評価付
- フラット35
- S適合証明書
- 即入居可
物件詳細情報
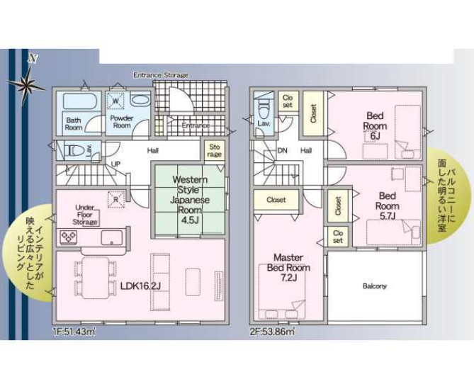
| 価格 | 2,280万円 | 間取り | 4LDK |
|---|---|---|---|
| 物件種別 | 新築一戸建て | ||
| 所在地 | 山口県光市虹ケ丘4丁目 1 | ||
| アクセス |
|
||
| 建物面積 | 105.29㎡ | 駐車場 | あり 普通:2台 |
| 築年月 | 2025年(令和7年)09月築 | 建築確認 | |
| 建物構造 | 木造 2階建 | 工法 | |
| 主要採光 | 南向 | バルコニー | 南東向9.00㎡ |
| 保証・評価 | フラット35S適合証明書・設計住宅性能評価書・建設住宅性能評価書(新築時) |
||
| 土地面積 | 公160.21㎡(48.46坪) | 接道 | |
| 私道 | セットバック | ||
| 地目 | 宅地 | 地勢 | |
| 権利 | 所有権 |
||
| 都市計画 | 市街化区域 |
用途地域 | 1種低層 |
| 建ぺい/容積率 | 50%(一部60% 含む) / 80% | 土地国土法 | |
| 許可番号 | 建築基準法 | ||
| 法令制限 | |||
| 小学区 | 浅江小学校 徒歩18分 (約1380m) | 中学区 | 浅江中学校 徒歩25分 (約1970m) |
| 現況 | 完工済 | 引渡 | 即 |
| その他費用 | |||
| 周辺環境 | 光市立浅江小学校 徒歩20分 (約1570m) 光市立浅江中学校 徒歩27分 (約2160m) 光市 虹ケ丘幼児学園 徒歩2分 (約150m) 光市虹ケ丘サンランド児童遊園地 徒歩3分 (約230m) 光虹ヶ丘郵便局 徒歩12分 (約950m) 佃医院 徒歩12分 (約950m) セブンイレブン 光市虹ケ丘店 徒歩12分 (約960m) 山口銀行 虹ケ丘出張所 徒歩13分 (約1040m) 山陽本線光駅 徒歩15分 (約1150m) 光警察署 光駅前交番 徒歩15分 (約1160m) |
||
| 備考 | 建築確認番号:第R07SHC104741号他 | ||
| 物件番号 | 4348898 | 取引態様 | 媒介 |
取扱店舗情報
| 電話番号 | 0833-44-7712 |
|---|---|
| 所在地 | 〒743-0021 山口県光市浅江5丁目14-18 |
| 営業時間 | 9:00~18:00 |
| 定休日 | 水曜日、祝日 |
| 宅建免許番号 | 山口県知事(1)第3902号 |
| アクセス | 店舗への地図はこちら |

来店ご予約
山口県光市で価格が似ている物件はこちら
- 山口県
マイページ物件数 - 3,222件
最近見た物件
-
-

-
- 新築一戸建て
- 3,299万円
-
つくば市花畑3丁目
-
つくばエクスプレスつくば
-
-
-

-
- 中古一戸建て
- 1,290万円
-
松江市上乃木6丁目
-
東上乃木
-
-
-

-
- 中古一戸建て
- 2,980万円
-
室蘭市宮の森町1丁目
-
JR室蘭本線東室蘭
-
山口県新築一戸建て新着物件
-
-

-
- 新築一戸建て
- 3,880万円
-
下松市瑞穂町2丁目
-
JR山陽本線下松駅
-
-
-

-
- 新築一戸建て
- 3,980万円
-
下松市瑞穂町2丁目
-
JR山陽本線下松駅
-
-
-

-
- 新築一戸建て
- 2,970万円
-
下関市彦島本村町6丁目
-
JR山陽本線下関駅
-
-
-

-
- 新築一戸建て
- 2,880万円
-
下関市垢田町1丁目
-
JR山陰本線綾羅木駅
-
-
-

-
- 新築一戸建て
- 3,880万円
-
下関市清末西町2丁目
-
JR山陽本線小月駅
-
-
-

-
- 新築一戸建て
- 3,780万円
-
下関市清末西町2丁目
-
JR山陽本線小月駅
-
-
-

-
- 新築一戸建て
- 2,950万円
-
防府市迫戸町
-
JR山陽本線防府駅
-
- お近くの店舗を探す
-
おすすめ物件
-
-

-
- 新築一戸建て
- 2,798万円
-
宇部市大小路2丁目
-
JR宇部線東新川
-
-
-

-
- 新築一戸建て
- 1,988万円
-
山陽小野田市赤崎2丁目
-
JR小野田線小野田港
-
-
-

-
- 新築一戸建て
- 2,998万円
-
宇部市東梶返2丁目
-
JR宇部線東新川
-
-
-

-
- 新築一戸建て
- 3,298万円
-
山口市円政寺町
-
JR山口線上山口
-
-
-

-
- 新築一戸建て
- 3,098万円
-
宇部市大字小串
-
JR宇部線宇部新川
-
-
-

-
- 新築一戸建て
- 3,198万円
-
宇部市東梶返2丁目
-
JR宇部線東新川
-
-
-

-
- 新築一戸建て
- 3,098万円
-
宇部市草江3丁目
-
JR宇部線草江
-
-
-

-
- 新築一戸建て
- 2,798万円
-
防府市大字牟礼
-
JR山陽本線防府
-
-
-

-
- 新築一戸建て
- 2,698万円
-
防府市大字牟礼
-
JR山陽本線防府
-
-
-

-
- 新築一戸建て
- 3,198万円
-
山口市矢原
-
JR山口線矢原
-

























