公集小学校まで徒歩3分♪セルリアンステージ下松市美里町四丁目
掲載情報更新日:2026年03月29日 次回更新予定日:2026年04月12日
- 3,180万円
-
- 借入ご希望金額
万円 - 借入期間
年 - 借入金利
% - 月々のお支払い金額
円
- 借入ご希望金額
※ 月々のお支払例は目安の試算となりますので、実際の金額とは異なる場合がございます。詳しくは店舗までお問合わせください。
- 下松市美里町4丁目
-
JR山陽本線『下松』 車8分(約2.3km)
公集小学校まで徒歩3分♪セルリアンステージ下松市美里町四丁目一戸建て | 物件情報
人気エリアに新築戸建が登場です!オール電化仕様!
◇外構付き
◆家族団らんの時間も増えそうなくつろぎのLDK
◇東南向きの広々バルコニー
◆勝手口付
◇2台並列駐車可能
物件の設備
- 電気
- オール電化
- 公営水道
- 食器洗浄乾燥機
- IHクッキングヒータ
- 浴室乾燥機
- トイレ
- トイレ2箇所
- 温水洗浄便座
- LDK15畳以上
- クローゼット
- クローゼット2箇所
- クローゼット3箇所
- ウォークインクローゼット
- シューズインクローク
物件の特徴
- 前道6m以上
- 2階建
物件詳細情報
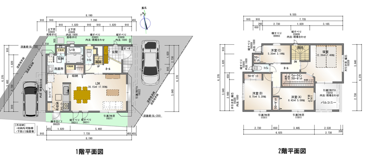
| 価格 | 3,180万円 | 間取り | 4LDK+S |
|---|---|---|---|
| 物件種別 | 新築一戸建て | ||
| 所在地 | 山口県下松市美里町4丁目 | ||
| アクセス |
|
||
| 建物面積 | 101.76㎡ | 駐車場 | あり 普通:2台 |
| 築年月 | 2026年(令和8年)03月築 | 建築確認 | R7建確建住セ岩第0145号 |
| 建物構造 | 木造 2階建 | 工法 | |
| 主要採光 | バルコニー | ||
| 保証・評価 | |||
| 土地面積 | 116.19㎡(35.14坪) | 接道 | 東側(公道)幅 約14.0m 西側(公道)幅 約14.0m |
| 私道 | セットバック | ||
| 地目 | 宅地 | 地勢 | |
| 権利 | 所有権 |
||
| 都市計画 | 市街化区域 |
用途地域 | 1種住居 |
| 建ぺい/容積率 | 60% / 216% | 土地国土法 | |
| 許可番号 | 建築基準法 | ||
| 法令制限 | |||
| 小学区 | 公集小学校 徒歩13分 (約1000m) | 中学区 | 末武中学校 徒歩6分 (約410m) |
| 現況 | 完工済 | 引渡 | 期日指定:2026年03月 |
| その他費用 | |||
| 周辺環境 | 公集小学校 徒歩3分 (約190m) 末武中学校 徒歩16分 (約1250m) ファミリーマート 下松瑞穂町一丁目店 徒歩4分 (約270m) A-プライス下松店 徒歩6分 (約470m) ウォンツ 下松店 徒歩9分 (約680m) |
||
| 備考 | ※省エネ基準適合住宅 ※制振ダンパー(住友ゴム"MAMORY") ※フラット35S(金利Bプラン)対応 ※瑕疵担保責任保険(まもりすまい保険) ※食器洗乾燥機 ※カップボード ※浴室乾燥機能 ※1F・2Fウォッシュレットトイレ ※オールLow-Eペアガラス ※アルミ樹脂複合サッシ ※玄関ドア電子錠 |
||
| 物件番号 | 4391614 | 取引態様 | 媒介 |
取扱店舗情報
ハウスドゥ 周南城ケ丘 株式会社田村ビルズ 店舗詳細ページへ
| 電話番号 | 0834-34-1107 |
|---|---|
| 所在地 | 〒745-0807 山口県周南市城ケ丘1丁目2-32 |
| 営業時間 | 9:30~18:00 |
| 定休日 | 水曜日、第2・第3・第4・第5木曜日 |
| 宅建免許番号 | 国土交通大臣(2)第9501号 |
| アクセス | 店舗への地図はこちら |

来店ご予約
- 山口県
マイページ物件数 - 3,281件
最近見た物件
-
-

-
- 中古マンション
- 2,880万円
-
札幌市中央区南十九条西15丁目
-
札幌市軌道線ロープウェイ入口
-
-
-

-
- 土地
- 1,960万円
-
知多郡阿久比町大字福住字高根台
-
名鉄河和線白沢
-
-
-

-
- 中古一戸建て
- 2,780万円
-
大阪市平野区長吉長原東3丁目
-
大阪市谷町線長原
-
山口県新築一戸建て新着物件
- お近くの店舗を探す
-
おすすめ物件
-
-

-
- 新築一戸建て
- 3,980万円
-
下松市瑞穂町2丁目
-
JR山陽本線下松
-
-
-

-
- 新築一戸建て
- 3,398万円
-
下関市武久町1丁目
-
JR山陽本線幡生
-
-
-

-
- 新築一戸建て
- 3,098万円
-
宇部市東梶返2丁目
-
JR宇部線東新川
-
-
-

-
- 新築一戸建て
- 2,898万円
-
宇部市東梶返2丁目
-
JR宇部線東新川
-
-
-

-
- 新築一戸建て
- 1,980万円
-
防府市沖今宿1丁目
-
JR山陽本線防府
-
-
-

-
- 新築一戸建て
- 2,180万円
-
宇部市床波4丁目
-
JR宇部線床波
-
-
-

-
- 新築一戸建て
- 3,580万円
-
下松市美里町3丁目
-
JR岩徳線周防花岡
-
-
-

-
- 新築一戸建て
- 2,698万円
-
宇部市大小路2丁目
-
JR宇部線東新川
-
-
-

-
- 新築一戸建て
- 2,598万円
-
防府市大字牟礼
-
JR山陽本線防府
-
-
-

-
- 新築一戸建て
- 3,398万円
-
下関市田倉御殿町1丁目
-
JR山陽本線新下関
-




















担当エージェント:松尾 翔
スーパーやドラッグストアが近く、お買い物にも便利な立地です♪家電収納や作業スペースとして便利なカップボードも付いております。
お問合せはお早めに♪