東雁来12条2丁目戸建
NEW 04.24掲載情報更新日:2026年04月24日 次回更新予定日:2026年05月08日
- 2,650万円
-
- 借入ご希望金額
万円 - 借入期間
年 - 借入金利
% - 月々のお支払い金額
円
- 借入ご希望金額
※ 月々のお支払例は目安の試算となりますので、実際の金額とは異なる場合がございます。詳しくは店舗までお問合わせください。
- 札幌市東区東雁来十二条2丁目
-
JR函館本線『苗穂』 徒歩76分 (約6080m)
札幌市東豊線『新道東』 徒歩86分 (約6880m)
札幌市東豊線『元町』 徒歩85分 (約6800m)
東雁来12条2丁目戸建一戸建て | 物件情報
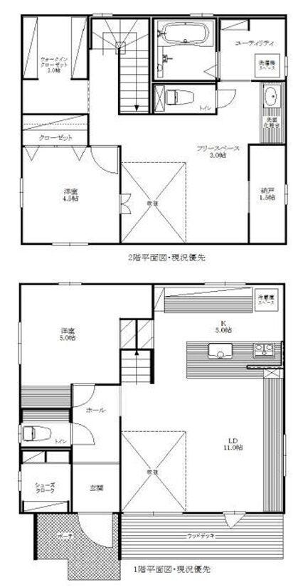
漆喰壁の趣と開放的な吹き抜け。南向きウッドデッキで寛ぐ、収納豊富な2LDK。
札幌市東区東雁来12条2丁目に位置する、デザイン性と機能性を兼ね備えた一戸建て。室内は壁一面に漆喰塗装を施しており、調湿性や質感を大切にした上質な住空間が広がります。
LDKは約16帖。南向きの大きな窓と吹き抜けが相まって、陽光が室内まで心地よく届きます。リビングから繋がるウッドデッキは、休日を穏やかに過ごすプライベート空間に。
また、家事動線や片付けやすさにも配慮。ウォークインクローゼット、シューズインクローゼット、さらに納戸を備えているため、季節物や趣味の道具もすっきりと収まります。
設備面では、一坪サイズの追い焚き機能付き浴室、食洗機付きシステムキッチン、各階のトイレ設置など、現代のライフスタイルに寄り添う充実した仕様です。
周辺は徒歩10分圏内に「ザ・ビッグ」やドラッグストア、コンビニが揃う便利な立地。小学校も徒歩9分と近く、子育て世代の方にも適した環境です。
バス停まで徒歩2分、敷地内にはお車2台を駐車可能。ゆとりある暮らしをここから始めてみませんか。
物件の設備
- 電気
- 公営水道
- 公共下水
- 都市ガス
- 食器洗浄乾燥機
- カウンターキッチン
- トイレ2箇所
- セントラルヒーティング
- 24時間換気システム
- ウォークインクローゼット
- 納戸
- ウッドデッキ
物件の特徴
- 前道6m以上
- 南側道路面す
- 2階建
物件詳細情報
| 価格 | 2,650万円 | 間取り | 2LDK |
|---|---|---|---|
| 物件種別 | 中古一戸建て | ||
| 所在地 | 北海道札幌市東区東雁来十二条2丁目 | ||
| アクセス |
|
||
| 建物面積 | 88.6㎡ | 駐車場 | あり |
| 築年月 | 2015年(平成27年)06月築 | ||
| 建物構造 | 木造 合金メッキ鋼板ぶき 2階建 | 工法 | |
| 主要採光 | バルコニー | ||
| 保証・評価 | |||
| リフォーム | |||
| 土地面積 | 162㎡(49坪) | 接道 | 南側(公道)幅 約8.0m 間口 約10.80m |
| 私道 | セットバック | ||
| 地目 | 宅地 | 地勢 | |
| 権利 | 所有権 |
||
| 都市計画 | 市街化区域 |
用途地域 | 1種低層 |
| 建ぺい/容積率 | 40% / 80% | 土地国土法 | |
| 許可番号 | 建築基準法 | ||
| 法令制限 | |||
| 小学区 | 札苗緑小学校 徒歩7分 (約500m) | 中学区 | 札苗北中学校 徒歩12分 (約950m) |
| 現況 | 居住中 | 引渡 | 相談 |
| その他費用 | |||
| 周辺環境 | ザ ビッグエクスプレスモエレ店 徒歩14分 (約1070m) | ||
| 備考 | 駐車場2台分 | ||
| 物件番号 | 4690472 | 取引態様 | 媒介 |
取扱店舗情報
ハウスドゥ 美香保 株式会社シロクマエステート 店舗詳細ページへ
| 電話番号 | 011-792-6430 |
|---|---|
| 所在地 | 〒065-0022 北海道札幌市東区北22条東7丁目2-28 |
| 営業時間 | 10:00~18:00 |
| 定休日 | 水曜日 |
| 宅建免許番号 | 北海道知事 石狩(2)第9009号 |
| アクセス | 店舗への地図はこちら |

来店ご予約
北海道札幌市東区で価格が似ている物件はこちら
- 北海道
マイページ物件数 - 6,332件
最近見た物件
-
-

-
- 新築一戸建て
- 4,350万円
-
下関市川中本町1丁目
-
JR山陰本線綾羅木
-
-
-

-
- 中古一戸建て
- 2,000万円
-
足利市五十部町
-
JR両毛線山前
-
北海道中古一戸建て新着物件
-
-

-
- 中古一戸建て
- 580万円
-
北見市留辺蘂町旭西
-
JR石北本線留辺蘂駅
-
-
-

-
- 中古一戸建て
- 400万円
-
北見市朝日町
-
JR石北本線柏陽駅
-
-
-

-
- 中古一戸建て
- 3,480万円
-
河西郡中札内村西一条南3丁目
-
十勝バス【中札内】停
-
-
-

-
- 中古一戸建て
- 3,480万円
-
河西郡中札内村西一条南3丁目
-
十勝バス【中札内】停
-
-
-

-
- 中古一戸建て
- 1,099万円
-
北見市川東
-
JR石北本線北見駅
-
-
-

-
- 中古一戸建て
- 458万円
-
旭川市忠和六条5丁目
-
JR函館本線旭川駅
-
-
-

-
- 中古一戸建て
- 2,650万円
-
札幌市東区東雁来十二条2丁目
-
JR函館本線苗穂駅
-
- お近くの店舗を探す
-
おすすめ物件
-
-

-
- 中古一戸建て
- 2,298万円
-
札幌市東区東苗穂十二条3丁目
-
札幌市東豊線元町
-
-
-

-
- 中古一戸建て
- 640万円
-
小樽市若竹町
-
JR函館本線小樽築港
-
-
-

-
- 中古一戸建て
- 99万円
-
小樽市奥沢3丁目
-
JR函館本線南小樽
-
-
-

-
- 中古一戸建て
- 1,200万円
-
北見市北進町7丁目
-
JR石北本線西北見
-
-
-

-
- 中古一戸建て
- 650万円
-
小樽市桜2丁目
-
JR函館本線小樽築港
-
-
-

-
- 中古一戸建て
- 750万円
-
網走郡美幌町字元町
-
JR石北本線美幌
-
-
-

-
- 中古一戸建て
- 250万円
-
岩見沢市日の出南4丁目
-
JR函館本線岩見沢
-
-
-

-
- 中古一戸建て
- 1,949万円
-
伊達市舟岡町
-
JR室蘭本線北舟岡
-
-
-

-
- 中古一戸建て
- 3,680万円
-
札幌市豊平区平岸四条14丁目
-
札幌市南北線南平岸
-
-
-

-
- 中古一戸建て
- 3,380万円
-
札幌市手稲区明日風1丁目
-
JR函館本線手稲
-










