新築戸建 東広島市八本松町米満 No.7
掲載情報更新日:2025年12月22日 次回更新予定日:2026年01月05日
- 3,740万円
-
- 借入ご希望金額
万円 - 借入期間
年 - 借入金利
% - 月々のお支払い金額
円
- 借入ご希望金額
※ 月々のお支払例は目安の試算となりますので、実際の金額とは異なる場合がございます。詳しくは店舗までお問合わせください。
- 東広島市八本松町米満
-
JR山陽本線『寺家』 車7分(約2.8km)
『磯松中学校バス停』 徒歩5分 (約400m)
新築戸建 東広島市八本松町米満 No.7一戸建て | 物件情報
堂々完成!限定3棟♪4LDKで4台駐車可能! シューズクロークやファミリークロークなど収納充実!
物件の設備
- オール電化
- 公営水道
- 浄化槽
- 給湯
- 食器洗浄乾燥機
- 食品庫
- IHクッキングヒータ
- コンロ三口
- システムキッチン
- オープンキッチン
- バス
- ユニットバス
- オートバス
- バス1坪以上
- 追焚機能
- 浴室暖房
- 浴室乾燥機
- 浴室に窓
- トイレ
- トイレ2箇所
- 温水洗浄便座
- 室内洗濯機置場
- 洗髪洗面化粧台
- ディンプルキー
- ダブルロックキー
- モニタ付インターホン
- 火災警報器/報知機
- LDK15畳以上
- LDK18畳以上
- 2面採光
- 全室2面採光
- 複層ガラス
- 全居室複層ガラス
- フローリング
- 24時間換気システム
- クローゼット
- クローゼット2箇所
- クローゼット3箇所
- ウォークインクローゼット
- ウォークスルークローゼット
- 全居室収納
- シューズWIC
- シューズボックス
- シューズインクローク
- ワイドバルコニー
物件の特徴
- 南向
- 制震構造
- 前道6m以上
- 南側道路面す
- 緑豊かな住宅地
- 閑静な住宅街
- 田園風景
- 通風良好
- 陽当り良好
- 2階建
- 整形地
- 開発分譲地内
- 外壁サイディング
- 新築
- 増改築設計図書
物件詳細情報
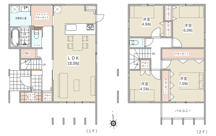
| 価格 | 3,740万円 | 間取り | 4LDK |
|---|---|---|---|
| 物件種別 | 新築一戸建て | ||
| 所在地 | 広島県東広島市八本松町米満 7号地 | ||
| アクセス |
|
||
| 建物面積 | 106㎡ | 駐車場 | あり 普通:4台 |
| 築年月 | 2025年(令和7年)10月築 | 建築確認 | |
| 建物構造 | 木造 2階建 | 工法 | |
| 主要採光 | 南向 | バルコニー | |
| 保証・評価 | |||
| 分譲情報 | |||
| 土地面積 | 166.83㎡(50.46坪) | 接道 | 南側(公道)幅 約6.0m 間口 約10.00m |
| 私道 | セットバック | ||
| 地目 | 宅地 | 地勢 | |
| 権利 | 所有権 |
||
| 都市計画 | 用途地域 | ||
| 建ぺい/容積率 | 60% / 200% | 土地国土法 | |
| 許可番号 | 建築基準法 | ||
| 法令制限 | 景観法・宅地造成工事規制区域 | ||
| 小学区 | 平岩小学校 徒歩18分 (約1400m) | 中学区 | 磯松中学校 徒歩5分 (約400m) |
| 現況 | 完工済 | 引渡 | 相談 |
| その他費用 | その他負担金:132000円 水道負担金 |
||
| 周辺環境 | 東広島市立磯松中学校 徒歩11分 (約850m) 高橋ホームクリニック 徒歩21分 (約1630m) 東広島市立川上小学校 徒歩22分 (約1740m) 八本松東郵便局 徒歩24分 (約1860m) ゆめマート八本松 徒歩22分 (約1740m) ウォンツ八本松店 徒歩31分 (約2430m) ショージ寺家店 徒歩25分 (約1930m) JR山陽本線 寺家駅 徒歩28分 (約2230m) ローソン東広島寺家駅前店 徒歩29分 (約2300m) |
||
| 備考 | ZEH水準 制震ダンパー設置 瑕疵保険料80,000円別途要 |
||
| 物件番号 | 4227261 | 取引態様 | 媒介 |
取扱店舗情報
ハウスドゥ 八本松正力 株式会社ノア・コーポレーション 店舗詳細ページへ
| 電話番号 | 082-490-3341 |
|---|---|
| 所在地 | 〒739-0132 広島県東広島市八本松町正力1089-6 |
| 営業時間 | 9:00~18:00 |
| 定休日 | 水曜日、年末年始 |
| 宅建免許番号 | 広島県知事(1)第11474号 |
| アクセス | 店舗への地図はこちら |

来店ご予約
広島県東広島市で価格が似ている物件はこちら
- 広島県
マイページ物件数 - 4,901件
最近見た物件
-
-

-
- 新築一戸建て
- 2,990万円
-
あま市新居屋鶴田
-
名鉄津島線七宝
-
-
-

-
- 中古一戸建て
- 1,260万円
-
室蘭市白鳥台4丁目
-
「白鳥台4丁目」停
-
-
-

-
- 土地
- 1,400万円
-
豊橋市南大清水町字藤ケ谷
-
豊橋鉄道渥美線大清水
-
広島県新築一戸建て新着物件
-
-

-
- 新築一戸建て
- 2,580万円
-
福山市青葉台2丁目
-
JR山陽本線大門駅
-
-
-

-
- 新築一戸建て
- 2,480万円
-
福山市青葉台2丁目
-
JR山陽本線大門駅
-
-
-

-
- 新築一戸建て
- 2,480万円
-
福山市青葉台2丁目
-
JR山陽本線大門駅
-
-
-

-
- 新築一戸建て
- 2,280万円
-
福山市駅家町大字近田
-
JR福塩線近田駅
-
-
-

-
- 新築一戸建て
- 2,280万円
-
福山市駅家町大字近田
-
JR福塩線近田駅
-
-
-

-
- 新築一戸建て
- 4,590万円
-
広島市南区仁保2丁目
-
4号線地方バス停1分
-
-
-

-
- 新築一戸建て
- 2,850万円
-
東広島市八本松飯田4丁目
-
JR山陽本線八本松駅
-
- お近くの店舗を探す
-





















