リーブルガーデン岐阜市敷島町8丁目第2 全2棟 1号棟
掲載情報更新日:2025年10月24日 次回更新予定日:2025年11月07日
- 3,480万円
-
- 借入ご希望金額
万円 - 借入期間
年 - 借入金利
% - 月々のお支払い金額
円
- 借入ご希望金額
※ 月々のお支払例は目安の試算となりますので、実際の金額とは異なる場合がございます。詳しくは店舗までお問合わせください。
- 岐阜市敷島町8丁目
-
JR東海道本線『西岐阜』 徒歩14分 (約1120m)
JR東海道本線『岐阜』 徒歩30分 (約2400m)
岐阜バス『「森屋」停』 徒歩9分 (約689m)
リーブルガーデン岐阜市敷島町8丁目第2 全2棟 1号棟一戸建て | 物件情報
【各種生活施設が徒歩圏内で便利な住環境】南向きで日当たり良好◎
\あれこれ不動産サイトを見なくても当店で解決/
当店はエリア内の物件の大半を最・新・情・報で掲載!
ほかのページで気になる物件もご相談ください。
◆本荘小学校/本荘中学校
◆岐阜バス「森屋」停徒歩約9分
◆小学校まで徒歩10分圏内
◆2沿線以上利用可
◆全居室収納
※写真をクリックすると、詳細をご覧いただけます。
=========================
《実際に現地を体感してみませんか?》
気になる点はお気軽にお問い合わせください!
お客様の理想のお住まいを一緒に見つけましょう!
=========================
物件の設備
- 電気
- 公営水道
- 公共下水
- 都市ガス
- 浄水器
- システムキッチン
- 追焚機能
- 浴室乾燥機
- 洗髪洗面化粧台
- ディンプルキー
- モニタ付インターホン
- 24時間換気システム
- 床下収納
物件詳細情報
| 価格 | 3,480万円 | 間取り | 4LDK |
|---|---|---|---|
| 物件種別 | 新築一戸建て | ||
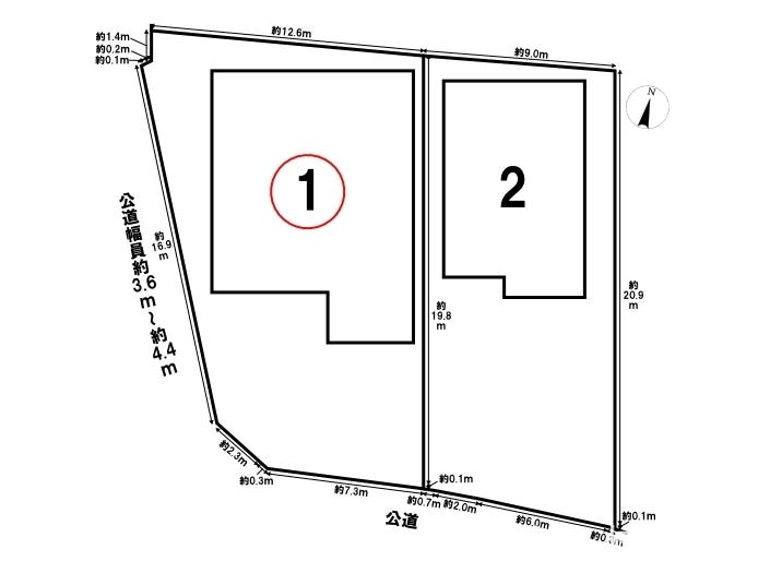
| 所在地 | 岐阜県岐阜市敷島町8丁目 1号棟 | ||
| アクセス |
|
||
| 建物面積 | 96.06㎡ | 駐車場 | なし |
| 築年月 | 2025年(令和7年)11月予定 | 建築確認 | ビスKS125-0410-54608 |
| 建物構造 | 木造 1階建 | 工法 | |
| 主要採光 | バルコニー | ||
| 保証・評価 | |||
| 分譲情報 | |||
| 土地面積 | 218.03㎡(65.95坪) | 接道 | |
| 私道 | セットバック | ||
| 地目 | 宅地 | 地勢 | |
| 権利 | 所有権 |
||
| 都市計画 | 市街化区域 |
用途地域 | 2種住居 |
| 建ぺい/容積率 | 60% / 200% | 土地国土法 | |
| 許可番号 | 建築基準法 | ||
| 法令制限 | 準防火地域・下水道処理区域 | ||
| 小学区 | 本荘小学校 徒歩7分 (約500m) | 中学区 | 本荘中学校 徒歩11分 (約850m) |
| 現況 | 建築中 | 引渡 | 期日指定:2025年11月以降 |
| その他費用 | |||
| 周辺環境 | 本荘小学校 徒歩8分 (約570m) 本荘中学校 徒歩11分 (約850m) みのり幼稚園 徒歩6分 (約460m) 本荘保育園 徒歩8分 (約600m) 三心鏡島店 徒歩11分 (約830m) スギ薬局鏡島東店 徒歩15分 (約1160m) いちだクリニック 徒歩6分 (約460m) 本荘公園 徒歩17分 (約1320m) ミニストップ 岐阜敷島町店 徒歩4分 (約280m) 岐阜中央郵便局 徒歩36分 (約2850m) |
||
| 備考 | |||
| 物件番号 | 4382946 | 取引態様 | 媒介 |
取扱店舗情報
ハウスドゥ 岐阜長良 ファミリアホームサービス株式会社 店舗詳細ページへ
| 電話番号 | 058-215-8510 |
|---|---|
| 所在地 | 〒502-0803 岐阜県岐阜市上土居1丁目5番2号プラズマビル1階A号室 |
| 営業時間 | 10:00~18:00 |
| 定休日 | 第3火曜日、水曜日、年末年始 |
| 宅建免許番号 | 国土交通大臣(2)第9218号 |
| アクセス | 店舗への地図はこちら |

来店ご予約
岐阜県岐阜市で価格が似ている物件はこちら
- 岐阜県
マイページ物件数 - 4,572件
岐阜県新築一戸建て新着物件
- お近くの店舗を探す
-
おすすめ物件
-
-

-
- 新築一戸建て
- 3,180万円
-
美濃加茂市本郷町4丁目
-
JR高山本線古井
-
-
-

-
- 新築一戸建て
- 2,480万円
-
岐阜市宇佐2丁目
-
JR東海道本線西岐阜
-
-
-

-
- 新築一戸建て
- 2,690万円
-
岐阜市日野南3丁目
-
JR東海道本線岐阜
-
-
-

-
- 新築一戸建て
- 2,980万円
-
岐阜市手力町
-
名鉄各務原線手力
-
-
-

-
- 新築一戸建て
- 3,450万円
-
可児市下恵土
-
名鉄広見線新可児
-
-
-

-
- 新築一戸建て
- 3,880万円
-
岐阜市則武西2丁目
-
JR東海道本線岐阜
-
-
-

-
- 新築一戸建て
- 2,580万円
-
岐阜市野一色1丁目
-
JR高山本線長森
-
-
-

-
- 新築一戸建て
- 2,890万円
-
岐阜市日野南3丁目
-
JR東海道本線岐阜
-
-
-

-
- 新築一戸建て
- 3,980万円
-
岐阜市鏡島精華1丁目
-
JR東海道本線西岐阜
-
-
-

-
- 新築一戸建て
- 3,450万円
-
岐阜市旦島5丁目
-
JR東海道本線西岐阜
-














担当エージェント:袴田 将孝
《お問合せからすぐご案内!》
見るだけOK、聞くだけOK。
実際に現地を体感してみてください。