リーブルガーデン岐阜市敷島町8丁目第2 全2棟 1号棟
掲載情報更新日:2025年10月24日 次回更新予定日:2025年11月07日
- 3,480万円
-
- 借入ご希望金額
万円 - 借入期間
年 - 借入金利
% - 月々のお支払い金額
円
- 借入ご希望金額
※ 月々のお支払例は目安の試算となりますので、実際の金額とは異なる場合がございます。詳しくは店舗までお問合わせください。
- 岐阜市敷島町8丁目
-
JR東海道本線『西岐阜』 徒歩14分 (約1120m)
JR東海道本線『岐阜』 徒歩30分 (約2400m)
岐阜バス『「森屋」停』 徒歩9分 (約689m)
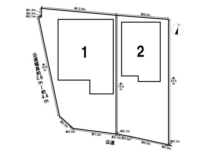
リーブルガーデン岐阜市敷島町8丁目第2 全2棟 | 分譲区画
- 見学予約・資料請求する
- ■お電話はこちら 通話料無料 0120-77-8510
岐阜県岐阜市で価格が似ている物件はこちら
- 岐阜県
マイページ物件数 - 4,570件
岐阜県新築一戸建て新着物件
- お近くの店舗を探す
-
おすすめ物件
-
-

-
- 新築一戸建て
- 2,990万円
-
岐阜市下奈良2丁目
-
JR東海道本線西岐阜
-
-
-

-
- 新築一戸建て
- 2,580万円
-
岐阜市大縄場3丁目
-
JR東海道本線岐阜
-
-
-

-
- 新築一戸建て
- 2,880万円
-
岐阜市薬師町
-
名鉄名古屋本線岐南
-
-
-

-
- 新築一戸建て
- 3,980万円
-
岐阜市鏡島精華1丁目
-
JR東海道本線西岐阜
-
-
-

-
- 新築一戸建て
- 2,980万円
-
羽島郡笠松町田代
-
名鉄竹鼻・羽島線柳津
-
-
-

-
- 新築一戸建て
- 2,880万円
-
岐阜市薬師町
-
名鉄名古屋本線岐南
-
-
-

-
- 新築一戸建て
- 2,580万円
-
岐阜市野一色1丁目
-
JR高山本線長森
-
-
-

-
- 新築一戸建て
- 4,050万円
-
大垣市藤江町3丁目
-
JR東海道本線大垣
-
-
-

-
- 新築一戸建て
- 2,390万円
-
大垣市青木町
-
JR東海道本線大垣
-
-
-

-
- 新築一戸建て
- 2,390万円
-
大垣市昼飯町
-
JR東海道本線大垣
-







