鹿児島市坂之上6丁目の新築戸建
掲載情報更新日:2025年10月19日 次回更新予定日:2025年11月02日
- 2,880万円
-
- 借入ご希望金額
万円 - 借入期間
年 - 借入金利
% - 月々のお支払い金額
円
- 借入ご希望金額
※ 月々のお支払例は目安の試算となりますので、実際の金額とは異なる場合がございます。詳しくは店舗までお問合わせください。
- 鹿児島市坂之上6丁目
-
JR指宿枕崎線『坂之上』 徒歩10分 (約800m)
鹿児島市坂之上6丁目一戸建て | 物件情報
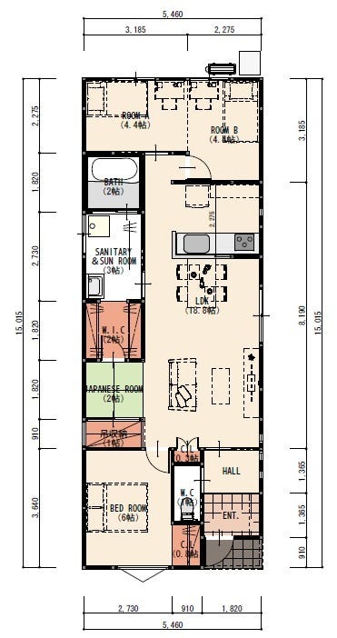
サンルーム・畳コーナー等がうれしい平屋の3LDK建売が登場!
※マウスを乗せると画像が切り替わります。
【アピールポイント】
〇楽家事動線
〇LDKを見渡せるキッチン
〇サンルームあり
【ライフインフォメーション】
〇福平小学校まで約2100m(徒歩約27分)
〇福平中学校まで約2400m(徒歩約31分)
〇坂之上保育園まで約430m(徒歩約8分)
〇タイヨー光山店まで約450m(徒歩約6分)
〇セブンイレブン鹿児島坂之上6丁目店まで約210m(徒歩約3分)
〇鹿児島銀行坂之上支店まで約430m(徒歩約6分)
物件の設備
- 電気
- オール電化
- 上水道
- 公営水道
- 下水道
- 給湯
- 食器洗浄乾燥機
- IHクッキングヒータ
- 電気コンロ
- コンロ二口
- グリル
- システムキッチン
- バス
- ユニットバス
- オートバス
- バス1坪以上
- 追焚機能
- 浴室暖房
- 浴室乾燥機
- トイレ
- 温水洗浄便座
- 室内洗濯機置場
- 洗髪洗面化粧台
- エアコン
- 照明器具
- ダウンライト
- 人感照明センサー
- ディンプルキー
- モニタ付インターホン
- 火災警報器/報知機
- LDK18畳以上
- 和室
- 天井高2.5m以上
- 複層ガラス
- フローリング
- クッションフロア
- 24時間換気システム
- 網戸
- クローゼット
- ウォークインクローゼット
- サンルーム
物件の特徴
- 高断熱住宅
- 地盤調査済
- スーパーが近い
- 閑静な住宅街
- 周辺交通量少なめ
- 山が見える
- 眺望良好
- 平坦地
- 外壁サイディング
- 建築確認完了検査済証
- BELS/省エネ基準適合
- 省エネルギー対策
物件詳細情報
価格 | 2,880万円 | 間取り | 3LDK |
---|---|---|---|
物件種別 | 新築一戸建て | ||
所在地 | 鹿児島県鹿児島市坂之上6丁目8-6 | ||
アクセス |
|
||
建物面積 | 実80.32㎡ | 駐車場 | あり 普通:2台 |
築年月 | 2025年(令和7年)06月築 | 建築確認 | 第R05確認建築鹿児島市1230136号 |
建物構造 | 木造 1階建 | 工法 | |
主要採光 | 東向 | バルコニー | |
保証・評価 | |||
土地面積 | 公196.34㎡(59.39坪) | 接道 | 東側(公道)幅 約4.0m 間口 約2.68m |
私道 | 別:公16.47㎡ | セットバック | |
地目 | 宅地 | 地勢 | 平坦 |
権利 | 所有権 |
||
都市計画 | 市街化区域 |
用途地域 | 1種低層 |
建ぺい/容積率 | 50% / 80% | 土地国土法 | |
許可番号 | 建築基準法 | ||
法令制限 | |||
小学区 | 福平小学校 徒歩27分 (約2100m) | 中学区 | 福平中学校 徒歩30分 (約2400m) |
現況 | 完工済 | 引渡 | 相談 |
その他費用 | |||
周辺環境 | 鹿児島坂之上6丁目店 徒歩4分 (約260m) タイヨー光山店 徒歩8分 (約590m) 坂之上保育園 徒歩9分 (約670m) 福平小学校 徒歩28分 (約2170m) 福平中学校 徒歩29分 (約2280m) |
||
備考 | |||
物件番号 | 4255702 | 取引態様 | 売主 |
取扱店舗情報
電話番号 | 0995-73-3778 |
---|---|
所在地 | 〒899-5431 鹿児島県姶良市西餅田134番地14 |
営業時間 | 8:30~17:30 |
定休日 | 水曜日、木曜日 |
宅建免許番号 | 鹿児島県知事(4)第5597号 |
アクセス | 店舗への地図はこちら |
来店ご予約
鹿児島県鹿児島市で価格が似ている物件はこちら
-
- 新築一戸建て 2022.08.08
-
-
- 2,980万円
-
鹿児島市西陵3丁目
-
JR鹿児島本線「広木駅」まで徒歩33分
- 3LDK
-
-
- 新築一戸建て 2023.09.16
-
-
- 2,780万円
-
鹿児島市坂元町
-
JR日豊本線「鹿児島駅」まで車12分
- 3LDK
-
-
- 新築一戸建て 2023.09.23
-
-
- 2,798万円
-
鹿児島市田上台4丁目
-
JR鹿児島本線「広木駅」まで徒歩18分
- 4LDK
-
-
- 新築一戸建て 2023.11.06
-
-
- 2,980万円
-
鹿児島市星ヶ峯3丁目
-
JR鹿児島本線「広木駅」まで徒歩15分
- 3LDK+S
-
-
- 新築一戸建て 2023.11.06
-
-
- 2,980万円
-
鹿児島市星ヶ峯3丁目
-
JR鹿児島本線「広木駅」まで徒歩17分
- 3LDK
-
-
- 新築一戸建て 2024.05.10
-
-
- 2,880万円
-
鹿児島市吉野町
-
JR日豊本線「鹿児島駅」まで車15分
- 3LDK+S
-
-
- 新築一戸建て 2024.05.26
-
-
- 2,880万円
-
鹿児島市吉野町
-
南国帯迫まで徒歩2分
- 3LDK+S
-
-
- 新築一戸建て 2024.08.30
-
-
- 2,980万円
-
鹿児島市坂之上1丁目
-
JR指宿枕崎線「坂之上駅」まで徒歩11分
- 3LDK+S
-
-
- 新築一戸建て 2024.10.04
-
-
- 2,880万円
-
鹿児島市川上町
-
南国立平バス停まで徒歩5分
- 3LDK+S
-
-
- 新築一戸建て 2024.10.10
-
-
- 2,880万円
-
鹿児島市川上町
-
JR鹿児島本線「鹿児島中央駅」バス乗車38分 バス停「立平」まで徒歩5分
- 3LDK
-
-
- 新築一戸建て 2024.10.23
-
-
- 2,880万円
-
鹿児島市川上町
-
JR日豊本線「鹿児島駅」まで車20分
- 3LDK
-
-
- 新築一戸建て 2024.10.23
-
-
- 2,880万円
-
鹿児島市吉野3丁目
-
南国立平まで徒歩4分
- 3LDK+S
-
-
- 新築一戸建て 2024.11.01
-
-
- 2,980万円
-
鹿児島市下伊敷3丁目
-
JR九州新幹線「鹿児島中央駅」まで車20分
- 3LDK+S
-
-
- 新築一戸建て 2024.11.28
-
-
- 2,880万円
-
鹿児島市下福元町
-
JR指宿枕崎線「五位野駅」まで徒歩14分
- 2LDK+S
-
-
- 新築一戸建て 2025.02.04
-
-
- 2,980万円
-
鹿児島市吉野町
-
南国神社入り口バス停まで徒歩6分
- 3LDK
-
-
- 新築一戸建て 2025.04.01
-
-
- 2,830万円
-
鹿児島市玉里町
-
JR日豊本線「鹿児島駅」まで車12分
- 4LDK+S
-
-
- 新築一戸建て 2025.04.01
-
-
- 2,830万円
-
鹿児島市玉里町
-
JR鹿児島本線「鹿児島中央駅」まで徒歩43分
- 4LDK+S
-
-
- 新築一戸建て 2025.04.12
-
-
- 2,880万円
-
鹿児島市吉野4丁目
-
南国吉野中学校前バス停まで徒歩8分
- 4LDK
-
-
- 新築一戸建て 2025.04.28
-
-
- 2,830万円
-
鹿児島市玉里町
-
市営女子高前バス停まで徒歩4分
- 4LDK+S
-
-
- 新築一戸建て 2025.04.29
-
-
- 2,830万円
-
鹿児島市玉里町
-
JR鹿児島本線「鹿児島駅」まで徒歩40分
- 4LDK+S
-
-
- 新築一戸建て 2025.05.09
-
-
- 2,830万円
-
鹿児島市玉里町
-
JR九州新幹線「鹿児島中央駅」まで徒歩39分
- 4LDK
-
-
- 新築一戸建て 2025.05.20
-
-
- 2,980万円
-
鹿児島市田上台4丁目
-
JR鹿児島本線「広木駅」まで徒歩19分
- 3LDK
-
-
- 新築一戸建て 2025.05.27
-
-
- 2,880万円
-
鹿児島市中山町
-
JR指宿枕崎線「谷山駅」まで車5分
- 4LDK+S
-
-
- 新築一戸建て 2025.05.29
-
-
- 2,850万円
-
鹿児島市西伊敷3丁目
-
JR鹿児島本線「鹿児島中央駅」バス乗車18分 バス停「西伊敷三丁目」まで徒歩4分
- 3LDK
-
-
- 新築一戸建て 2025.05.29
-
-
- 2,830万円
-
鹿児島市玉里町
-
JR鹿児島本線「鹿児島駅」まで徒歩41分
- 4LDK+S
-
-
- 新築一戸建て 2025.05.30
-
-
- 2,880万円
-
鹿児島市下伊敷3丁目
-
JR九州新幹線「鹿児島中央駅」まで車17分
- 4LDK
-
-
- 新築一戸建て 2025.05.30
-
-
- 2,850万円
-
鹿児島市西伊敷3丁目
-
市営西伊敷三丁目バス停まで徒歩4分
- 3LDK
-
-
- 新築一戸建て 2025.06.02
-
-
- 2,880万円
-
鹿児島市中山町
-
JR指宿枕崎線「谷山駅」まで徒歩37分
- 4LDK+S
-
-
- 新築一戸建て 2025.06.29
-
-
- 2,980万円
-
鹿児島市吉野町
-
南国神社入り口バス停まで徒歩6分
- 2LDK
-
-
- 新築一戸建て 2025.07.04
-
-
- 2,850万円
-
鹿児島市西伊敷3丁目
-
JR九州新幹線「鹿児島中央駅」まで車23分
- 3LDK
-
-
- 新築一戸建て 2025.07.13
-
-
- 2,898万円
-
鹿児島市日之出町
-
市電谷山線「二軒茶屋駅」まで徒歩3分
- 3LDK
-
-
- 新築一戸建て 2025.07.14
-
-
- 2,898万円
-
鹿児島市日之出町
-
市電谷山線「二軒茶屋駅」まで徒歩4分
- 3LDK
-
-
- 新築一戸建て 2025.07.17
-
-
- 2,848万円
-
鹿児島市西坂元町
-
JR鹿児島本線「鹿児島中央駅」バス乗車20分 バス停「バス第一交通前」まで徒歩9分
- 4LDK
-
-
- 新築一戸建て 2025.07.22
-
-
- 2,780万円
-
鹿児島市春山町
-
JR鹿児島本線「上伊集院駅」まで徒歩33分
- 4LDK
-
-
- 新築一戸建て 2025.07.22
-
-
- 2,780万円
-
鹿児島市春山町
-
JR鹿児島本線「上伊集院駅」まで徒歩33分
- 4LDK
-
-
- 新築一戸建て 2025.07.26
-
-
- 2,780万円
-
鹿児島市和田3丁目
-
JR指宿枕崎線「慈眼寺駅」まで徒歩22分
- 3LDK
-
-
- 新築一戸建て 2025.08.01
-
-
- 2,880万円
-
鹿児島市下伊敷3丁目
-
市営さつま団地入口バス停まで徒歩4分
- 4LDK
-
-
- 新築一戸建て 2025.08.02
-
-
- 2,880万円
-
鹿児島市下伊敷3丁目
-
JR九州新幹線「鹿児島中央駅」まで車18分
- 4LDK+S
-
-
- 新築一戸建て 2025.08.02
-
-
- 2,980万円
-
鹿児島市吉野町
-
JR日豊本線「鹿児島駅」まで車17分
- 3LDK+S
-
-
- 新築一戸建て 2025.08.04
-
-
- 2,980万円
-
鹿児島市吉野町
-
JR日豊本線「鹿児島駅」まで車17分
- 3LDK+S
-
-
- 新築一戸建て 2025.08.04
-
-
- 2,880万円
-
鹿児島市西陵2丁目
-
JR鹿児島本線「広木駅」まで徒歩31分
- 4LDK
-
-
- 新築一戸建て 2025.08.04
-
-
- 2,880万円
-
鹿児島市西陵2丁目
-
JR鹿児島本線「広木駅」まで徒歩31分
- 4LDK
-
-
- 新築一戸建て 2025.08.04
-
-
- 2,880万円
-
鹿児島市西陵2丁目
-
南国西陵二丁目バス停まで徒歩4分
- 4LDK
-
-
- 新築一戸建て 2025.08.04
-
-
- 2,880万円
-
鹿児島市西陵2丁目
-
JR鹿児島本線「広木駅」まで徒歩32分
- 4LDK
-
-
- 新築一戸建て 2025.08.04
-
-
- 2,880万円
-
鹿児島市西陵2丁目
-
南国西陵二丁目バス停まで徒歩4分
- 4LDK
-
-
- 新築一戸建て 2025.08.04
-
-
- 2,880万円
-
鹿児島市西陵2丁目
-
JR鹿児島本線「広木駅」まで徒歩32分
- 4LDK+S
-
-
- 新築一戸建て 2025.08.05
-
-
- 2,880万円
-
鹿児島市西陵2丁目
-
JR鹿児島本線「広木駅」まで車8分
- 4LDK
-
-
- 新築一戸建て 2025.08.05
-
-
- 2,880万円
-
鹿児島市西陵2丁目
-
JR鹿児島本線「広木駅」まで車8分
- 4LDK
-
-
- 新築一戸建て 2025.08.05
-
-
- 2,880万円
-
鹿児島市西陵2丁目
-
南国交通西陵2丁目まで徒歩4分
- 4LDK
-
-
- 新築一戸建て 2025.08.05
-
-
- 2,880万円
-
鹿児島市西陵2丁目
-
南国交通西陵2丁目まで徒歩4分
- 4LDK
-
-
- 新築一戸建て 2025.08.08
-
-
- 2,880万円
-
鹿児島市西陵2丁目
-
西陵2丁目まで徒歩4分
- 4LDK
-
-
- 新築一戸建て 2025.08.08
-
-
- 2,880万円
-
鹿児島市西陵2丁目
-
西陵2丁目まで徒歩4分
- 4LDK
-
-
- 新築一戸建て 2025.08.18
-
-
- 2,898万円
-
鹿児島市日之出町
-
市電谷山線「二軒茶屋駅」まで徒歩4分
- 3LDK
-
-
- 新築一戸建て 2025.08.21
-
-
- 2,780万円
-
鹿児島市春山町
-
鹿交春山東バス停まで徒歩5分
- 4LDK+S
-
-
- 新築一戸建て 2025.08.23
-
-
- 2,950万円
-
鹿児島市下伊敷3丁目
-
市営伊敷ニュータウン玉里台バス停まで徒歩9分
- 5LDK+S
-
-
- 新築一戸建て 2025.08.25
-
-
- 2,880万円
-
鹿児島市西陵2丁目
-
南国交通バス西陵2丁目まで徒歩4分
- 4LDK
-
-
- 新築一戸建て 2025.08.31
-
-
- 2,780万円
-
鹿児島市西坂元町
-
JR日豊本線「鹿児島駅」まで車11分
- 4LDK
-
-
- 新築一戸建て 2025.09.01
-
-
- 2,780万円
-
鹿児島市西坂元町
-
鹿交上野原団地バス停まで徒歩2分
- 4LDK
-
-
- 新築一戸建て 2025.09.01
-
-
- 2,780万円
-
鹿児島市西坂元町
-
JR鹿児島本線「鹿児島駅」まで徒歩32分
- 4LDK
-
-
- 新築一戸建て 2025.09.02
-
-
- 2,780万円
-
鹿児島市西坂元町
-
市電唐湊線「鹿児島駅前駅」まで徒歩30分
- 4LDK
-
-
- 新築一戸建て 2025.09.14
-
-
- 2,898万円
-
鹿児島市田上台4丁目
-
JR鹿児島本線「広木駅」まで徒歩18分
- 4LDK
-
-
-
新築一戸建て
2025.09.20
-
-
- 2,880万円
-
鹿児島市下伊敷3丁目
-
市営さつま団地入口バス停まで徒歩1分
- 4LDK
-
-
新築一戸建て
2025.09.20
-
-
新築一戸建て
2025.09.22
-
-
- 2,980万円
-
鹿児島市西陵2丁目
-
南国西陵2丁目バス停まで徒歩4分
- 4LDK
-
-
新築一戸建て
2025.09.22
-
-
新築一戸建て
2025.09.23
-
-
- 2,980万円
-
鹿児島市西陵2丁目
-
南国西陵二丁目まで徒歩2分
- 4LDK
-
-
新築一戸建て
2025.09.23
-
-
新築一戸建て
2025.09.23
-
-
- 2,980万円
-
鹿児島市西陵2丁目
-
JR鹿児島本線「広木駅」まで車8分
- 4LDK
-
-
新築一戸建て
2025.09.23
-
-
新築一戸建て
2025.09.25
-
-
- 2,980万円
-
鹿児島市西陵2丁目
-
JR鹿児島本線「鹿児島中央駅」まで徒歩48分
- 4LDK
-
-
新築一戸建て
2025.09.25
-
-
新築一戸建て
2025.09.28
-
-
- 2,780万円
-
鹿児島市春山町
-
あいばす平和団地入口バス停まで徒歩3分
- 3LDK
-
-
新築一戸建て
2025.09.28
-
-
新築一戸建て
2025.09.30
-
-
- 2,980万円
-
鹿児島市西陵2丁目
-
JR鹿児島本線「広木駅」まで徒歩31分
- 4LDK
-
-
新築一戸建て
2025.09.30
-
-
新築一戸建て
2025.10.05
-
-
- 2,880万円
-
鹿児島市中山町
-
JR指宿枕崎線「谷山駅」まで徒歩41分
- 4LDK+S
-
-
新築一戸建て
2025.10.05
-
-
新築一戸建て
2025.10.06
-
-
- 2,798万円
-
鹿児島市西陵2丁目
-
南国西陵二丁目バス停まで徒歩5分
- 3LDK
-
-
新築一戸建て
2025.10.06
-
-
新築一戸建て
2025.10.07
-
-
- 2,798万円
-
鹿児島市西陵2丁目
-
JR鹿児島本線「広木駅」まで徒歩32分
- 3LDK
-
-
新築一戸建て
2025.10.07
- 鹿児島県
マイページ物件数 - 5,653件
鹿児島県新築一戸建て新着物件
- お近くの店舗を探す
-
おすすめ物件
-
-
-
- 新築一戸建て
- 3,080万円
-
鹿児島市若葉町
-
市営北営業所前バス停
-
-
-
-
- 新築一戸建て
- 2,298万円
-
鹿児島市大明丘1丁目
-
南国大明ヶ丘西バス停
-
-
-
-
- 新築一戸建て
- 3,498万円
-
鹿児島市谷山中央2丁目
-
JR指宿枕崎線谷山
-
-
-
-
- 新築一戸建て
- 2,198万円
-
鹿児島市吉野町
-
南国松十文字バス停
-
-
-
-
- 新築一戸建て
- 3,598万円
-
鹿児島市宇宿6丁目
-
JR指宿枕崎線宇宿
-
-
-
-
- 新築一戸建て
- 2,280万円
-
霧島市隼人町真孝
-
JR日豊本線隼人
-
-
-
-
- 新築一戸建て
- 2,880万円
-
鹿児島市川上町
-
南国立平バス停
-
-
-
-
- 新築一戸建て
- 3,780万円
-
鹿児島市稲荷町
-
南国皷川バス停
-
-
-
-
- 新築一戸建て
- 3,898万円
-
鹿児島市和田2丁目
-
JR指宿枕崎線坂之上
-
-
-
-
- 新築一戸建て
- 3,599万円
-
鹿児島市和田2丁目
-
JR指宿枕崎線坂之上
-
現地案内(事前に必ずお問合せください♪)
時間/10:00~17:30(時間外でのご希望もお気軽にご相談ください!)
【ご相談の所要時間や内容等】
◆現地・物件ご見学(20分~)
◆ご希望条件のご相談(15分~)
◆資金計画のご相談(15分~)
◆住宅ローンのお話(15分~)
◆土地・家の探し方のご相談(30分~)
〇現地ご見学会を随時受け付けております。
〇お客様のご都合に合わせて「知りたい情報だけ」という短時間のご案内も可能です!
〇事前にこんな情報が欲しい!こんなことを聞いてみたい!といったお声などもお気軽にお寄せください!